EasyManua.ls Logo

Bosch SM048 - Wiring Diagrams: Main Unit; Main Unit Wiring Diagram (Figure #116); Wiring Diagram Notes

Bosch SM048
100 pages
Print Icon
To Next Page IconTo Next Page
To Next Page IconTo Next Page
To Previous Page IconTo Previous Page
To Previous Page IconTo Previous Page
Loading...
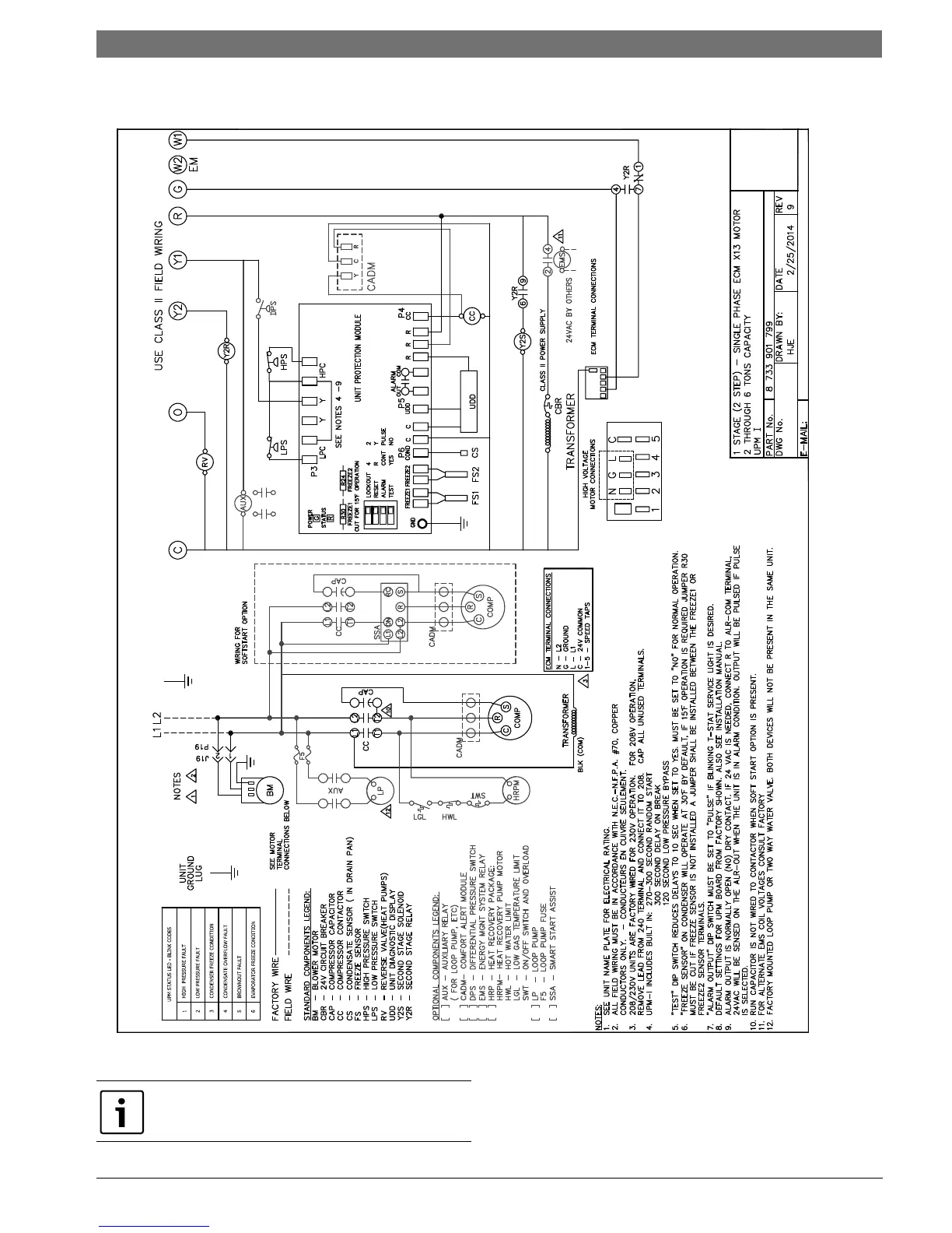
Wiring Diagrams | 65SM Series Heat Pump
6 720 220 406 (2015/02)Revised 02-15
WIRING DIAGRAMS
Figure # 116
NOTE: FOR REFERENCE ONLY Actual unit wiring
may vary from this example. Always refer to the
wiring diagram attached to the unit

Table of Contents

Other manuals for Bosch SM048

Related product manuals