EasyManua.ls Logo

Bosch SM048 - Wiring Harness Drawings: Constant Airflow Motor; Constant Airflow Motor Harness Diagram (Figure #124)

Bosch SM048
100 pages
Print Icon
To Next Page IconTo Next Page
To Next Page IconTo Next Page
To Previous Page IconTo Previous Page
To Previous Page IconTo Previous Page
Loading...
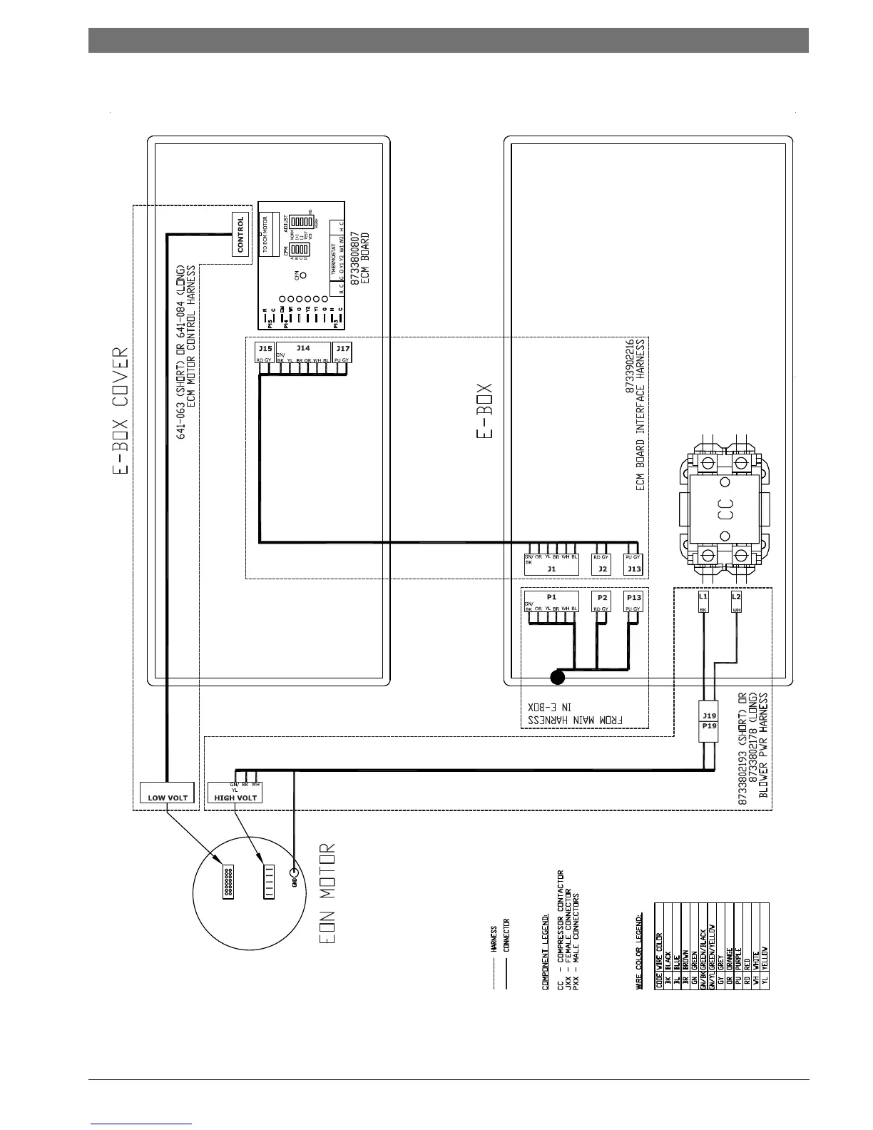
WIRING HARNESS DRAWINGS | 73SM Series Heat Pump
6 720 220 406 (2015/02)Revised 02-15
Constant Airflow Motor (SM0**-***-***-A*)
Figure # 124

Table of Contents

Other manuals for Bosch SM048

Related product manuals