EasyManua.ls Logo

Bosch SM048 - Wiring Diagrams: Soft Start and ECM Motors; Soft Start Option and ECM Motor Wiring Diagram (Figure #118); Wiring Diagram Notes

Bosch SM048
100 pages
Print Icon
To Next Page IconTo Next Page
To Next Page IconTo Next Page
To Previous Page IconTo Previous Page
To Previous Page IconTo Previous Page
Loading...
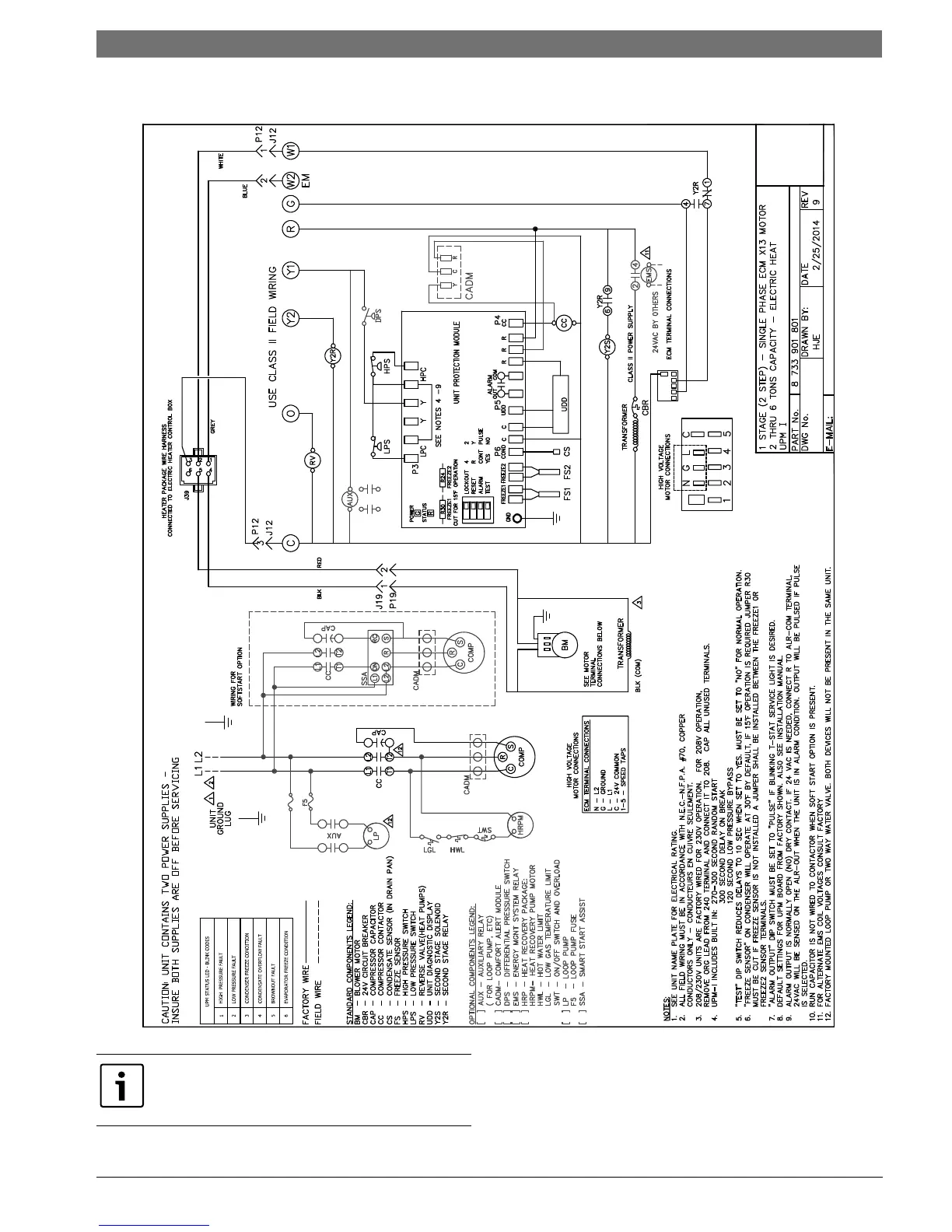
Wiring Diagrams | 67SM Series Heat Pump
6 720 220 406 (2015/02)Revised 02-15
Figure # 118
NOTE: FOR REFERENCE ONLY Actual unit
wiring may vary from this example. Always refer
to the wiring diagram attached to the unit.

Table of Contents

Other manuals for Bosch SM048

Related product manuals