EasyManua.ls Logo

Bosch WT 11 AM1 E - Horizontal Flue and Restrictor Plate; Horizontal Flue Installation; Fitting Restrictor Plate (Horizontal)

Bosch WT 11 AM1 E
48 pages
Print Icon
To Next Page IconTo Next Page
To Next Page IconTo Next Page
To Previous Page IconTo Previous Page
To Previous Page IconTo Previous Page
Loading...
6 720 607 800 (2016/02)
Flue accessories | 13
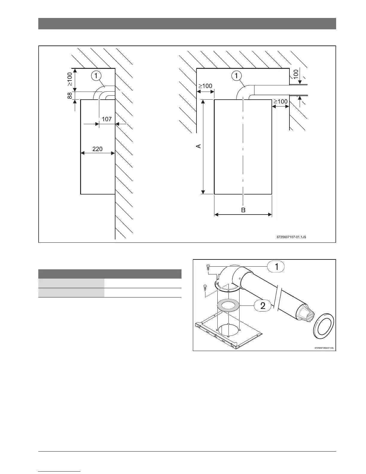
4.1.3 Horizontal flue
Fig. 10 Recommended clearance (mm)
[1] AZ 388
4.1.4 Fitting the restrictor plate
Depending on flue exhaust and installations conditions, a
restrictor plate may need to be fitted (Fig. 11) under the
accessory (table 11 and 12).
In order to assure a good appliance functioning, correct
restrictor plates should be used.
Fig. 11 Restrictor plate
Loosen accessory fixing screws (Fig. 11, [1]).
Place restrictor plate (Fig. 11, [2]) between the accessory
and the appliance.
Reassemble the accessory in the appliance using the 4
screws (Fig. 11, [1]).
WT11
A 670
B 340
Table 10

Related product manuals