EasyManua.ls Logo

Bosch WT 11 AM1 E - Page 38

Bosch WT 11 AM1 E
48 pages
Print Icon
To Next Page IconTo Next Page
To Next Page IconTo Next Page
To Previous Page IconTo Previous Page
To Previous Page IconTo Previous Page
Loading...
6 720 607 800 (2016/02)
Rookgasafvoer | 11
6 Rookgasafvoer
6.1 Rookgasafvoer accessoires
De rookgasafvoer heeft een binnendiameter van 60mm en een
buitendiameter van 100mm.
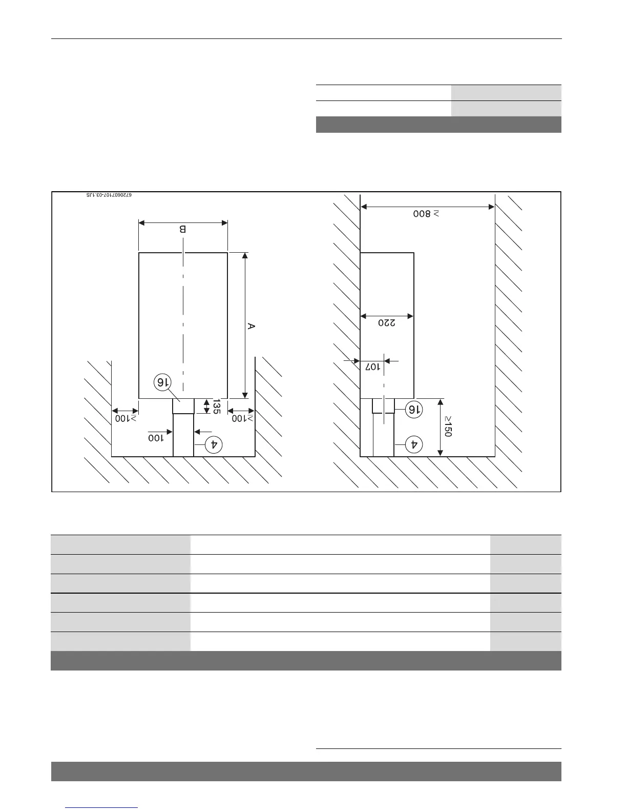
6.1.1 Vertikale schoorsteen
Afb. 7 Aanbevolen vrije ruimte (mm)
[4] AZ 396
[16] Concentrische aansluitstuk Ø 60/100mm
6.1.2 Montage van adapter en restrictiering
Afhankelijk van de rookgasafvoerleiding en de installatieom-
standigheden kan het nodig zijn een restrictiering te monteren
(Afb. 8, [2]) onder de adapter (Afb. 8, [1]). De adapter wordt
niet met het toestel meegeleverd en dient besteld te worden.
Om er zeker van te zijn dat het toestel goed functioneert, moet
de juiste restrictiering gebruikt worden (zie tabel 11 en12).
Type Benaming Bestelnr.
AZ388 Muurdoorvoerset 7 716 050 063
--- Concentrische verlengpijp 350 mm 7 736 995 059
--- Concentrische verlengpijp 750 mm 7 736 995 063
--- Concentrische 45° bocht 7 736 995 071
--- Concentrische 90° bocht 7 736 995 079
AZ396 Dakdoorvoerset 7 716 050 071
Tabel 7 Rookgasafvoer accessoires Ø60-100mm
WT11
A 670
B 340
Tabel 8

Related product manuals