EasyManua.ls Logo

Bosch ZSB18 - 2A - Circuit Diagram

Bosch ZSB18 - 2A
68 pages
Print Icon
To Next Page IconTo Next Page
To Next Page IconTo Next Page
To Previous Page IconTo Previous Page
To Previous Page IconTo Previous Page
Loading...
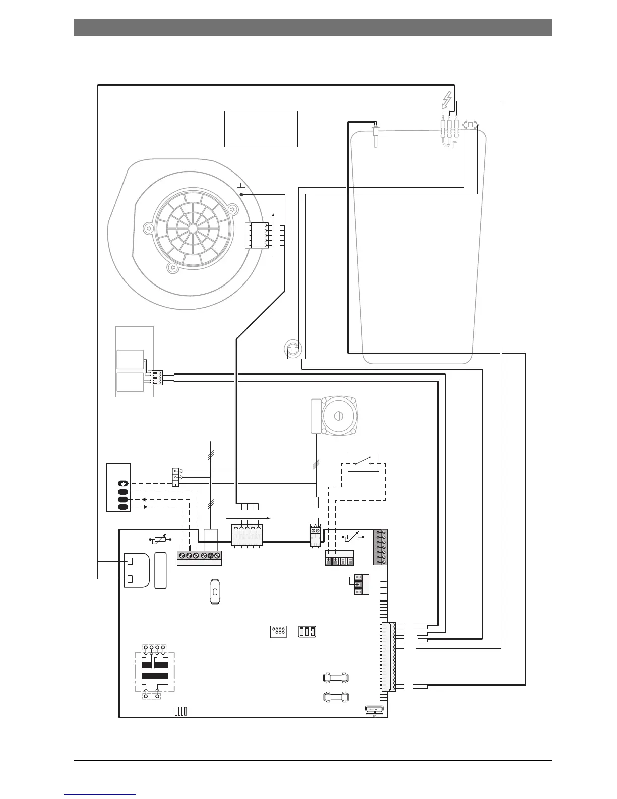
Fault finding and diagnosis | 63AU/NZ
6 720 646 195a (2010/11)
7.1.1 Circuit diagram
FAN
FSFR NP LP
L
N
S
N
L
SLR
ST8
ST9
ST17
ST18
ST5 ST4
ST10
Earth
MAINS
SUPPLY
PUMP
SUPPLY
SPARK
TRANSFORMER
ST1
DIAGNOSTIC
INTERFACE
CODE PLUG
Fuse F1, slow
2.5 A, AC 230 V
Fuse F3, slow T 0.5 A
Fuse F2, slow T1.6 A
ST6
EXTERNAL
FROST STAT
(OPTIONAL)
CH TEMPERATURE
CONTROL
Neutral Supply
230V WIRING CENTER/
JUNCTION BOX
BOSCH 24V CONTROLS
PLUG IN POINT
(NOT USED)
Live Supply
Live Return
Neutral
Live
Colour sequence †
Purple
Purple
Red
Red
Orange
Orange
7
8
9
Colour sequence †
SL
L
N
230V/AC
9V 25V
*
PRE WIRED LINK
*
*
EMS BUS contacts
(for FX controls not used)
B
B
4
2
1
A
F
PUMP
GAS
VALVE
SAFETY
SOLENOID
SAFETY
SOLENOID
FLAME SENSE
ELECTRODE
SPARK
ELECTRODES
OVERHEAT
STAT
FLUE
OVERHEAT
STAT
Green
DHW TEMPERATURE
CONTROL (NOT USED)
6720646195-23.1Wo
FLOW TEMP.
SENSOR (NTC)
† Fan wiring:
Live = purple
Neutral = brown
SI1
SI2
SI3
Blue
Blue

Table of Contents

Related product manuals