EasyManua.ls Logo

Bryant 330AAV - Confined Space

Bryant 330AAV
24 pages
Print Icon
To Next Page IconTo Next Page
To Next Page IconTo Next Page
To Previous Page IconTo Previous Page
To Previous Page IconTo Previous Page
Loading...
For Example:
330AAV FURNACE HIGH-FIRE
INPUT BTUH
MINIMUM SQ FT WITH
7-1/2 FT CEILING
40,000 267
60,000 400
80,000 534
100,000 667
120,000 800
133,000 887
If the unconfined space is of unusually tight construction, air for
combustion and ventilation MUST come from either the outdoors
or spaces freely communicating with the outdoors. Combustion
and ventilation openings must be sized the same as for a confined
space as defined below. Return air must not be taken from the
room unless an equal or greater amount of air is supplied to the
room.
B. Confined Space
A confined space is defined as a space whose volume is less than
50 cu ft per 1000 Btuh of total input ratings of all appliances
installed in that space. A confined space MUST have provisions
for supplying air for combustion, ventilation, and dilution of flue
gases using 1 of the following methods. (See Fig. 3 and Table 2.)
NOTE: In determining free area of an opening, the blocking
effect of louvers, grilles, and screens must be considered. If free
area of louver or grille design is unknown, assume that wood
louvers have a 20 percent free area and metal louvers or grilles
have a 60 percent free area. Screens, when used, must not be
smaller than 1/4-in. mesh. Louvers and grilles must be constructed
so they cannot be closed.
The size of the openings depends upon whether air comes from
outside of the structure or an unconfined space inside the structure.
1. All air from inside the structure requires 2 openings (for
structures not usually tight):
a. Each opening MUST have at least 1 sq in. of free area
per 1000 Btuh of total input for all equipment within the
confined space, but not less than 100 sq in. per opening.
(See Fig. 3 and Table 2.) The minimum dimension of air
openings shall not be less than 3 in.
b. If building is constructed unusually tight, a permanent
opening directly communicating with the outdoors shall
be provided. See item 2 below.
c. If furnace is installed on a raised platform to provide a
return-air plenum, and return air is taken directly from
hallway or space adjacent to furnace, all air for combus-
tion must come from outdoors.
2. Air from outside the structure requires 1 of the following
methods:
a. If combustion air is taken from outdoors through 2
vertical ducts, the openings and ducts MUST have at
least 1 sq in. of free area per 4000 Btuh of total input for
all equipment within the confined space. (See Fig. 4 and
Table 2.)
b. If combustion air is taken from outdoors through 2
horizontal ducts, the openings and ducts MUST have at
least 1 sq in. of free area per 2000 Btuh of total input for
all equipment within the confined space. (See Fig. 4 and
Table 2.)
c. If combustion air is taken from outdoors through a single
opening or duct (horizontal or vertical) commencing
within 12 in. of the top of the confined space, opening
and duct MUST have at least 1 sq in. of free area per
3000 Btuh of the total input for all equipment within the
confined space and not less than the sum of the areas of
all vent connectors in the confined space. (See Fig. 4 and
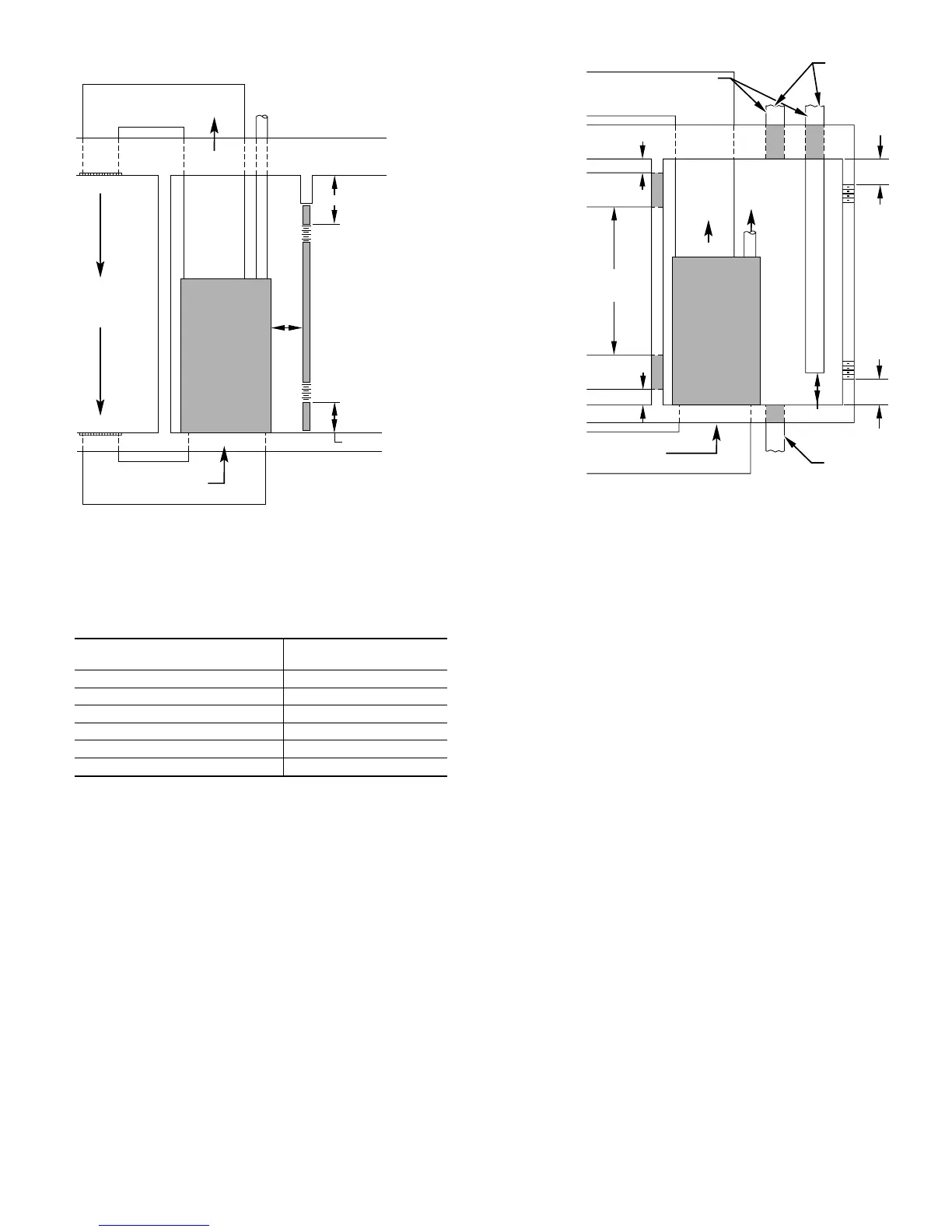
Fig. 3Confined Space: Air for Combustion and Ventilation
from an Unconfined Space
A89012
SUPPLY
AIR
6 MIN
(FRONT)
RETURN AIR
VENT THROUGH ROOF
1 SQ IN.
PER 1000
BTUH
*
IN DOOR
OR WALL
12
MAX
1 SQ IN.
PER 1000
BTUH
*
IN DOOR
OR WALL
12
MAX
INTERIOR
HEATED
SPACE
* Minimum opening size is 100 sq in. with
minimum dimensions of 3 in.
Minimum of 3 in. when type-B1 vent is used.
UNCONFINED
SPACE
CONFINED
SPACE
Fig. 4Confined Space: Air for Combustion and Ventilation
from Outdoors
A89013
1 SQ IN.
PER
4000
BTUH*
DUCTS
TO
OUTDOORS
1 SQ IN.
PER 4000
BTUH
*
SUPPLY
AIR
VENT
THROUGH
ROOF
D
B
A
C
E
1 SQ IN.
PER 4000
BTUH
*
DUCT
TO
OUTDOORS
RETURN AIR
1 SQ IN.
PER 2000
BTUH
*
1 SQ IN.
PER 2000
BTUH
*
DUCTS
TO
OUTDOORS
12 MAX
12
MAX
12 MAX
Use any of the following
combinations of openings:
A & B C & D D & E F & G
NOTE:
*Minimum dimensions of 3 in.
CONFINED
SPACE
12
MAX
12
MAX
OUTDOORS
1 SQ IN.
PER
4000
BTUH*
F
G
5

Other manuals for Bryant 330AAV

Related product manuals