EasyManua.ls Logo

Bryant 925TA - Page 6

Bryant 925TA
86 pages
Print Icon
To Next Page IconTo Next Page
To Next Page IconTo Next Page
To Previous Page IconTo Previous Page
To Previous Page IconTo Previous Page
Loading...
6
6 15/16
[176.1]
3
[76.2]
3
[76.2]
6 11/16
[170.1]
23 5/16
[592.9]
25 1/8
[638.7]
26 3/8
[670.0]
26 11/16
[678.1]
21
[534.0]
26 5/16
[668.8]
17 5/16
[439.2]
16 9/16
[420.9]
20 1/4
[513.9]
25 3/16
[639.1]
28 3/16
[715.9]
28 5/8
[726.4]
32 5/8
[829.5]
28 3/4
[730.5]
26 3/8
[669.9]
26 11/16
[678.1]
21 15/16
[557.4]
21 1/16
[535.8]
26 5/16
[668.8]
3
[76.2]
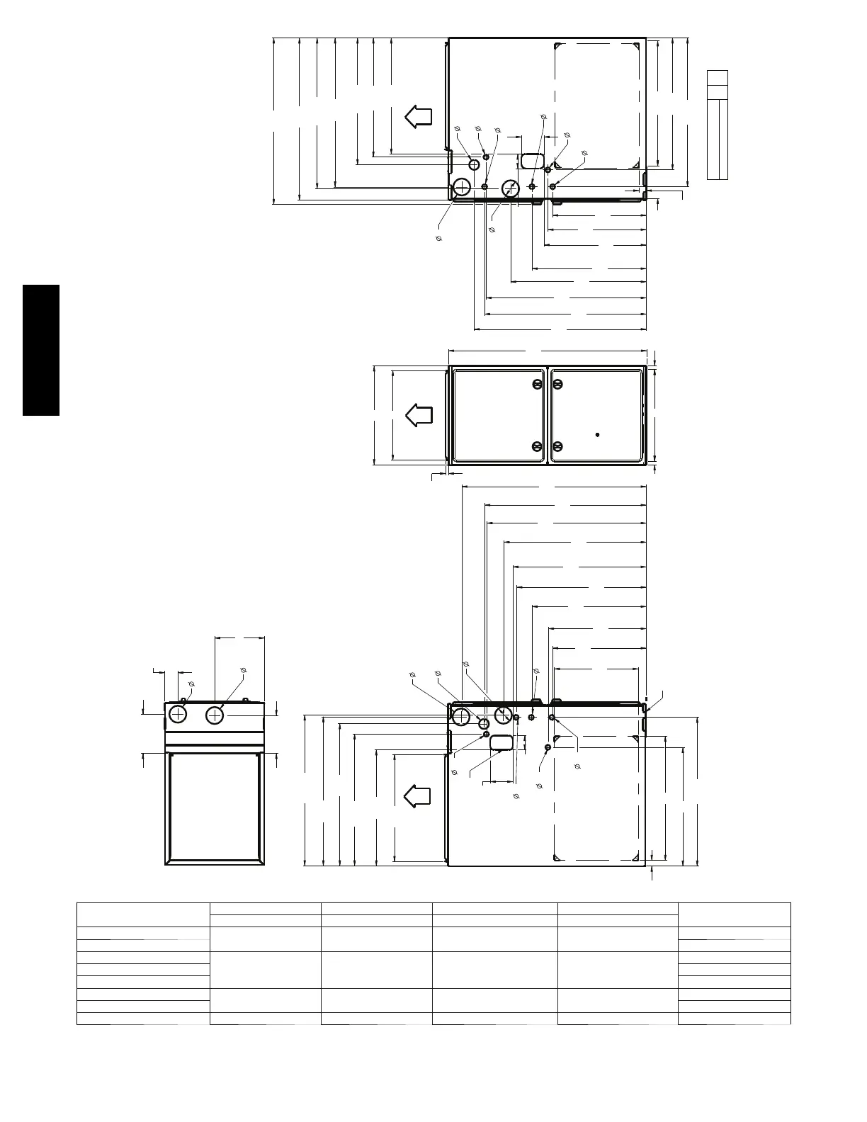
AIR INTAKE
1 3/4
[44.5]
GAS CONN
7/8
[22.2]
7/8
[22.2] POWER CONN
7/8
[22.2]
THERMOSTAT ENTRY
7/8
[22.2]
3
[76.2]
AIR INTAKE
1 3/4
[44.5]
GAS CONN
7/8
[22.2]
7/8
[22.2]
3
[76.2 ]
7/8
[22.2]
7/8
[22.2]
THERMOSTAT ENTRY
22 15/16
[581.9]
16 9/16
[420.9]
17 7/16
[442.3]
20 1/4
[513.9]
24
[609.7]
28 3/8
[720.4]
28 5/8
[726.9]
29 13/16
[757]
23 3/8
[592.0]
3
[76.2]
VENT
1 (BOTH SIDES)
[25.4]
D
2 3/10
[58.4]
C
BOTTOM RETURN
WIDTH
11/16
[17.5]
11/16
[17.5]
B
OUTLET WIDTH
A
22
[558.3] (BOTH SIDES)
14 13/16
[376.3]
35
[889.0]
5/8
[15.8]
1 5/16
[33.3]
29 1/2
[749.3]
19 1/8
[485.8]
20 5/8
[522.7]
23 7/16
[595.6]
[101.6]
4
[63.5]
2 1/2
18 1/16
[458.6]
2 1/2
[63.5]
4
[101.6]
20 5/8
[522.7]
BOTTOM INLET
21 5/8
[549.5]
6 1/16
[154.0]
PART NUMBER
SD5024-4
SHT
1
REV
E
NEXT SHEET
2
VENT
AIR INTAKE
AIR FLOW
AIR FLOW
SIDE INLET
SIDE INLET
CONDENSATE DRAIN TRAP
LOCATION
NOTE: ALL DIMENSIONS IN INCH [MM]
[22.2]
7/8
7/8
[22.2] POWER CONN
AIR FLOW
SEE NOTE #3
NOTES:
1. Doors may vary by model.
2. Minimum return-air openings at furnace, based on metal duct. If ex duct is used,
see ex duct manufacturer's recommendations for equivalent diameters.
a. For 800 CFM-16-in. (406 mm) round or 14 1/2 x 12-in. (368 x 305 mm) rectangle.
b. For 1200 CFM-20-in. (508 mm) round or 14 1/2 x 19 1/2-in. (368 x 495 mm) rectangle.
c. For 1600 CFM-22-in. (559 mm) round or 14 1/2 x 22 1/16-in. (368 x 560mm) rectangle.
d. Return air above 1800 CFM at 0.5 in. w.c. ESP on 24.5" casing, requires one of the following
congurations: 2 sides, 1 side and a bottom or bottom only. See Air Delivery table in this
document for specic use to allow for sucient airow to the furnace.
3. Vent and Combustion air pipes through blower compartment must
use accessory “Vent Kit - Through the Cabinet”. See accessory list for
current part number.
TOP VIEW
A12267
925TA FURNACE SIZE
A B C D
SHIP WT.
LB (KG)
CABINET WIDTH OUTLET WIDTH BOTTOM INLET WIDTH AIR INTAKE
30040
14---3/16 (361) 12---1/2 (319) 12---9/16 (322) 7---1/8 (181)
125.0 (56.8)
36060 136.0 (61.7)
36040
17---1/2 (445) 15---7/8 (403) 16 (406) 8---3/4 (222)
135.0 (61.2)
42060 146.0 (66.4)
48080 156.0 (70.9)
60080
21 (533) 19---3/8 (492) 19---1/2 (495) 10---1/2 (267)
160.5 (73.0)
60100 170.5 (77.5)
66120 24---1/2 (622) 22---7/8 (581) 23 (584) 12---1/4 (311) 194.5 (88.4)
Fig. 1 -- Dimensional Drawing
925TA

Other manuals for Bryant 925TA

Related product manuals