EasyManua.ls Logo

BuckMaster 36 - Page 47

BuckMaster 36
53 pages
Print Icon
To Next Page IconTo Next Page
To Next Page IconTo Next Page
To Previous Page IconTo Previous Page
To Previous Page IconTo Previous Page
Loading...
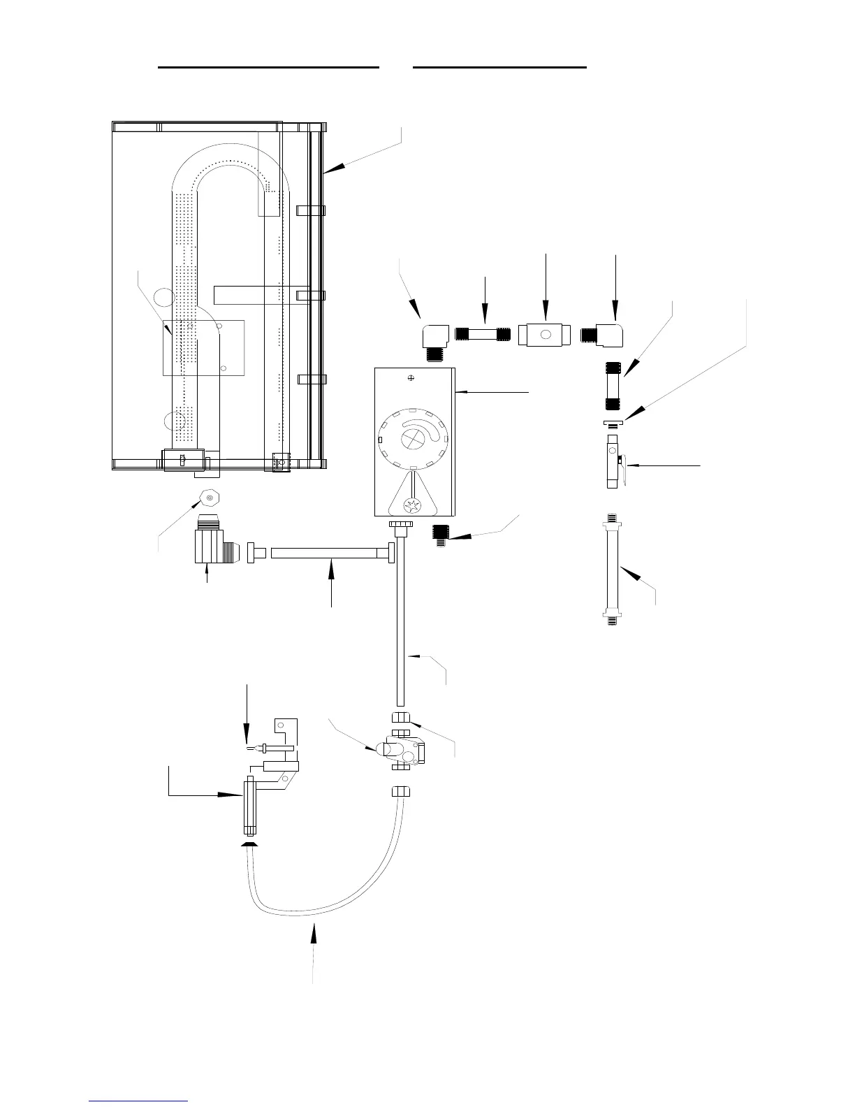
Page 43
10
PILOT
O
F
F
H
I
L
O
Sit
9
1
2
3A
16
18
3B
4
7
5
8
6
12
13
11
12
17
15
14
19
SIT MODULATING VALVE OR SIT MANUAL VALVE 19GL BASE