EasyManua.ls Logo

CADDX xGenConnect - Installation; E) Wiring Diagram

Default Icon
166 pages
Print Icon
To Next Page IconTo Next Page
To Next Page IconTo Next Page
To Previous Page IconTo Previous Page
To Previous Page IconTo Previous Page
Loading...
xGenConnect Installation and Programming Guide 17
Installation
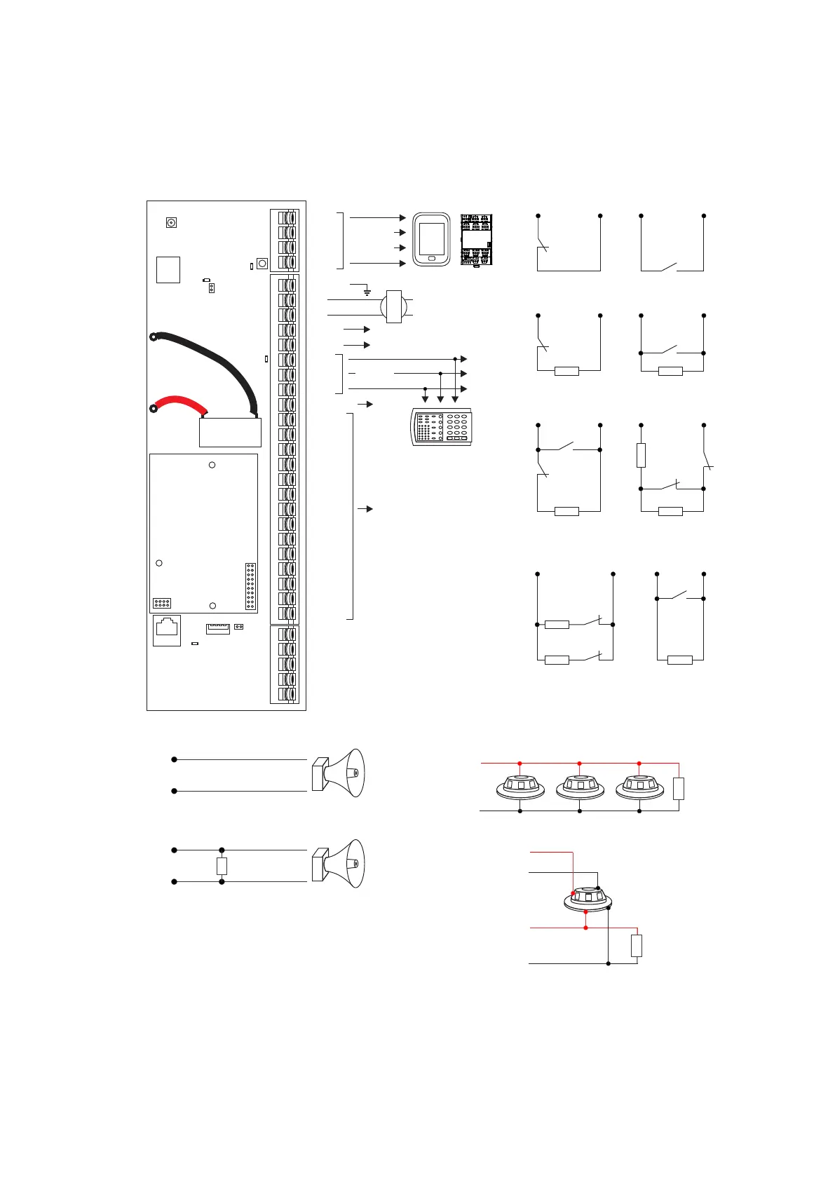
NXG-8(E) Wiring Diagram
Z WAVE
XGEN
LAN
TERM
LEARN
BUS
12 V 7 Ah
NXG-7002(-SIM)
J14
USBUP
TAMPER
ETHERNET
LAN
OUTPUT 2
OUTPUT 3
OUTPUT 4
AUX+
ZONE 1
COM
ZONE 3
ZONE 4
ZONE 5
COM
ZONE 6
ZONE 7
COM
ZONE 8
AUX+
COM
SMOKE
POS
COM
DATA
BELL
BELL+
AC
AC
EARTH
POS
NEG
LAN+
OUTPUT 1
ZONE 2
COM
(B)
(A)
(C)
NX BUS
XGEN LAN
(F), (G)
+
(D), (E)
J11
C
Zn
NC
C
Zn
NO
CZn
NC
EOL
CZn
NC
EOL
NO
NC T
(1) (2)
(5) (6)
(F)
C
Zn
EOL
C
Zn
EOL (1-8)
NO
(8)(7)
3.74K
EOL (9-16)
6.98K
3.74K
NC
NC
(G)
C
Zn
NC
EOL
C
Zn
NO
EOL
(3) (4)
BELL-
BELL+
-
+
(C)
BELL-
BELL+
(1)
(2)
-
+
EOL
3.3 kΩ
EOL
820 Ω
SMOKE-
AUX+
(D)
EOL
3.3 kΩ
AUX+
OUTPUT x-
ZONE n
COM
(E)

Table of Contents