EasyManua.ls Logo

Calorex aa300 - Water Connections

Calorex aa300
46 pages
Print Icon
To Next Page IconTo Next Page
To Next Page IconTo Next Page
To Previous Page IconTo Previous Page
To Previous Page IconTo Previous Page
Loading...
Page 12
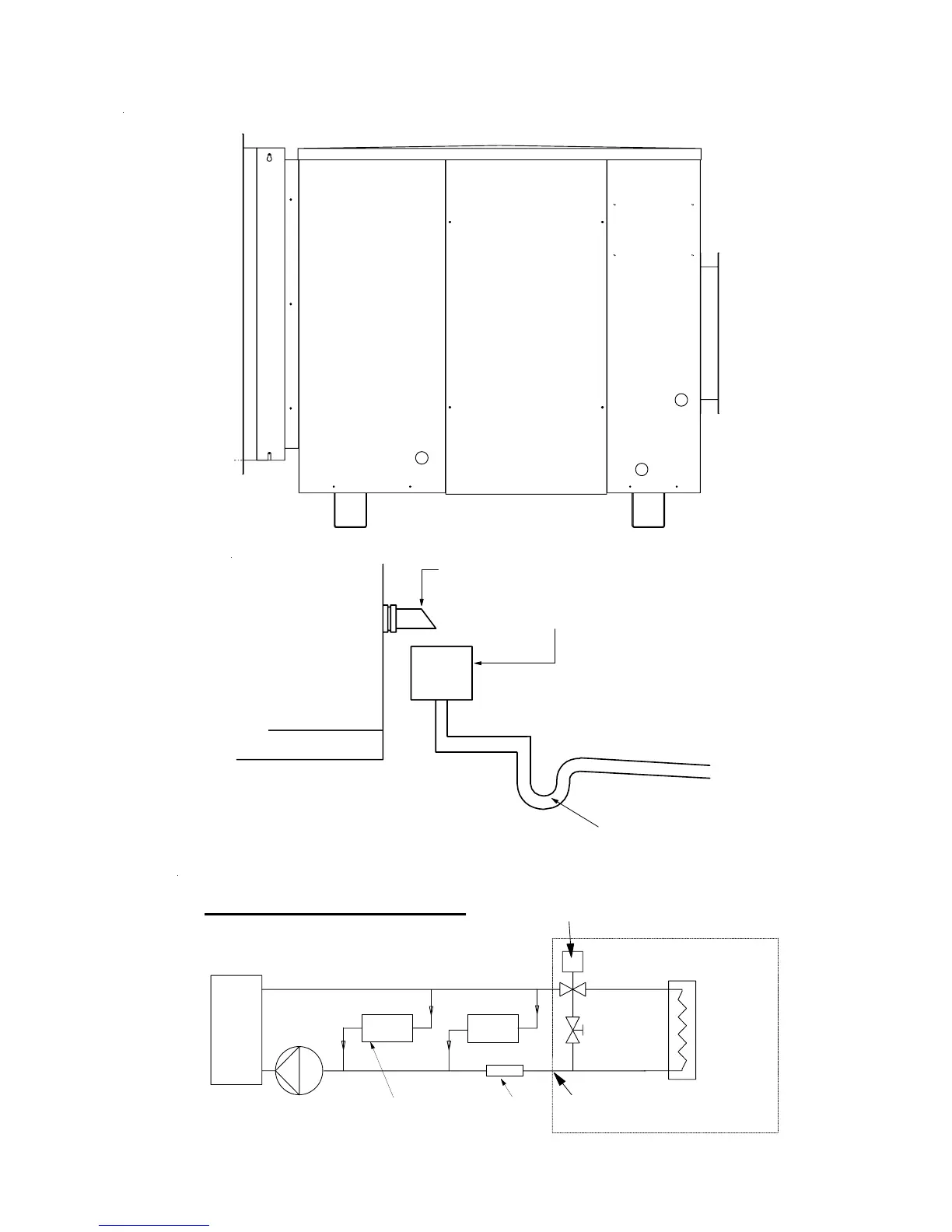
BOILER WATER SCHEMATIC
BOILER
PUMP
RADIATORS IF
FITTED
FLOW
BALANCE
VALVE
INTERNAL 3 WAY MOTORISED VALVE
(DIVERTING) CONTROLLED BY VARIHEAT .
FLOW METER
LPHW
CONNECTIONS
AW300AVHF
CABINET
(FACTORY
SET)
CONDENSATE DRAIN 3/4" BSPM
BOILER WATER OUT 3/4" BSPM
BOILER WATER IN 3/4" BSPM
CUSTOMERS "TUN DISH"
COPPER STUB
DRAIN TO WASTE
U TRAP
AA300 DRAIN
AA300 UNIT
2.2 WATER CONNECTIONS
(also see SECTION 2.1)

Related product manuals