EasyManua.ls Logo

CAME BXL04AGS - Control Devices and Safety Inputs

CAME BXL04AGS
96 pages
Go to English
Print Icon
To Next Page IconTo Next Page
To Next Page IconTo Next Page
To Previous Page IconTo Previous Page
To Previous Page IconTo Previous Page
Loading...
A B 1 2 3P 7
10 TS
2
R800
OK
p. 17 - Manual FA00000-EN - 02/2018 - © CAME S.p.A. - "Translated original instructions"
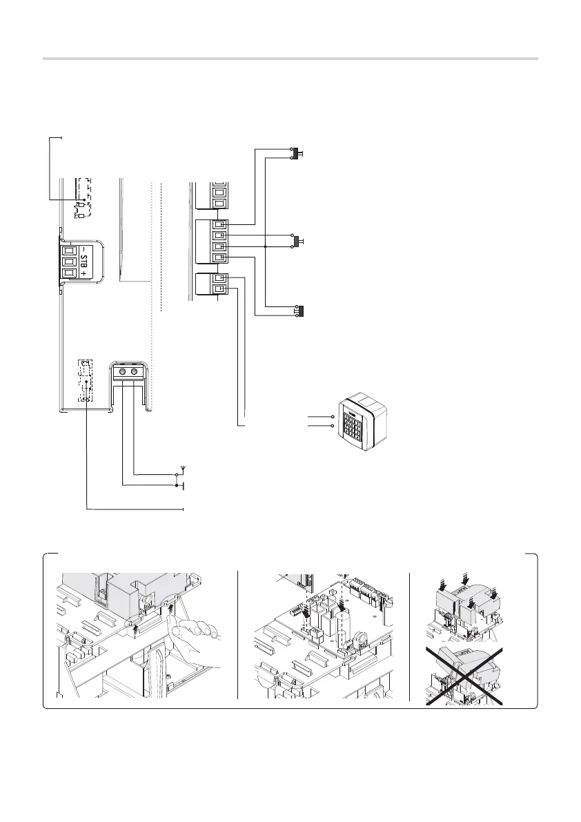
To be able to snap in the cards into the dedicated connectors, raise the card cover.
Blue
White
Connector for the R800 card (the
R800 card is for using the keypad
selector)
OPEN-CLOSE-INVERT function (step-step) from
control device (NO contact). Alternatively, from
functions programming you can activate the
OPEN-STOP-CLOSE-STOP command.
STOP STOP(N.C. contact). For stopping the gate
while excluding automatic closing. To resume mo-
vement press the control button or use another
control device.
If unused, it should be deactivated during pro-
gramming.
Connector for AF card (AF868 or AF43S) for remote control
PARTIAL OPENING feature from command device
(NO contact).
Antenna RG58 cable for remote control
Keypad selector
COMMAND AND CONTROL DEVICES
WARNING! For the system to work properly, before fitting any plug-in card, such as the AF or R800 one, you
MUST CUT OFF THE MAINS POWER SUPPLY and, if present, disconnect any batteries.

Other manuals for CAME BXL04AGS

Related product manuals