EasyManua.ls Logo

CAME BXL04AGS

CAME BXL04AGS
96 pages
Go to English
To Next Page IconTo Next Page
To Next Page IconTo Next Page
To Previous Page IconTo Previous Page
To Previous Page IconTo Previous Page
Loading...
A B 1 2 3P 7
10 TS
2
R800
OK
Page 17 - Manuel FA00000-FR - 02/2018 - © CAME S.p.A. - « Traduction des instructions originales »
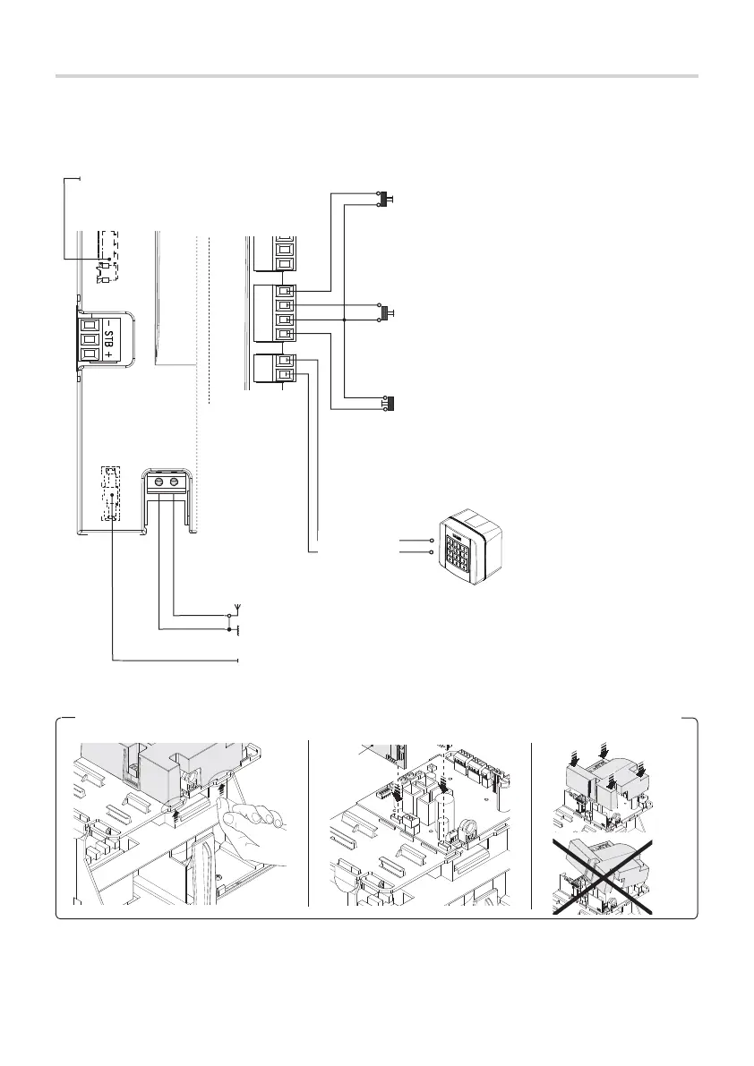
Soulever le volet de la carte pour pouvoir insérer les cartes enfichables dans les connecteurs dédiés.
Bleu
Blanc
Connecteur pour carte R800 (la carte
R800 permet l'utilisation du sélecteur
à clavier)
Fonction OUVERTURE-FERMETURE-INVERSION
(pas-à-pas) depuis un dispositif de commande
(contact NO). Il est également possible d'activer
la commande OUVERTURE-ARRÊT-FERME-
TURE-ARRÊT depuis la programmation des
fonctions.
Bouton d'ARRÊT (contact NF). Permet l'arrêt du
portail avec désactivation de la fermeture automa-
tique. Pour reprendre le mouvement, appuyer sur le
bouton de commande ou sur un autre dispositif de
commande.
S'il n'est pas utilisé, le désactiver dans le menu
de programmation.
Connecteur pour carte AF (AF868 ou AF43S) pour la commande radio
Fonction OUVERTURE PARTIELLE depuis un
dispositif de commande (contact NO).
Antenne avec câble RG58 pour la commande à distance
Clavier à code
DISPOSITIFS DE COMMANDE
ATTENTION ! Avant l'insertion d'une carte enfichable (ex. : AF, R800), il est OBLIGATOIRE DE METTRE
HORS TENSION et de déconnecter les éventuelles batteries.

Other manuals for CAME BXL04AGS

Related product manuals