EasyManua.ls Logo

Carrier BT30RF- EXPR - Page 36

Carrier BT30RF- EXPR
111 pages
Print Icon
To Next Page IconTo Next Page
To Next Page IconTo Next Page
To Previous Page IconTo Previous Page
To Previous Page IconTo Previous Page
Loading...
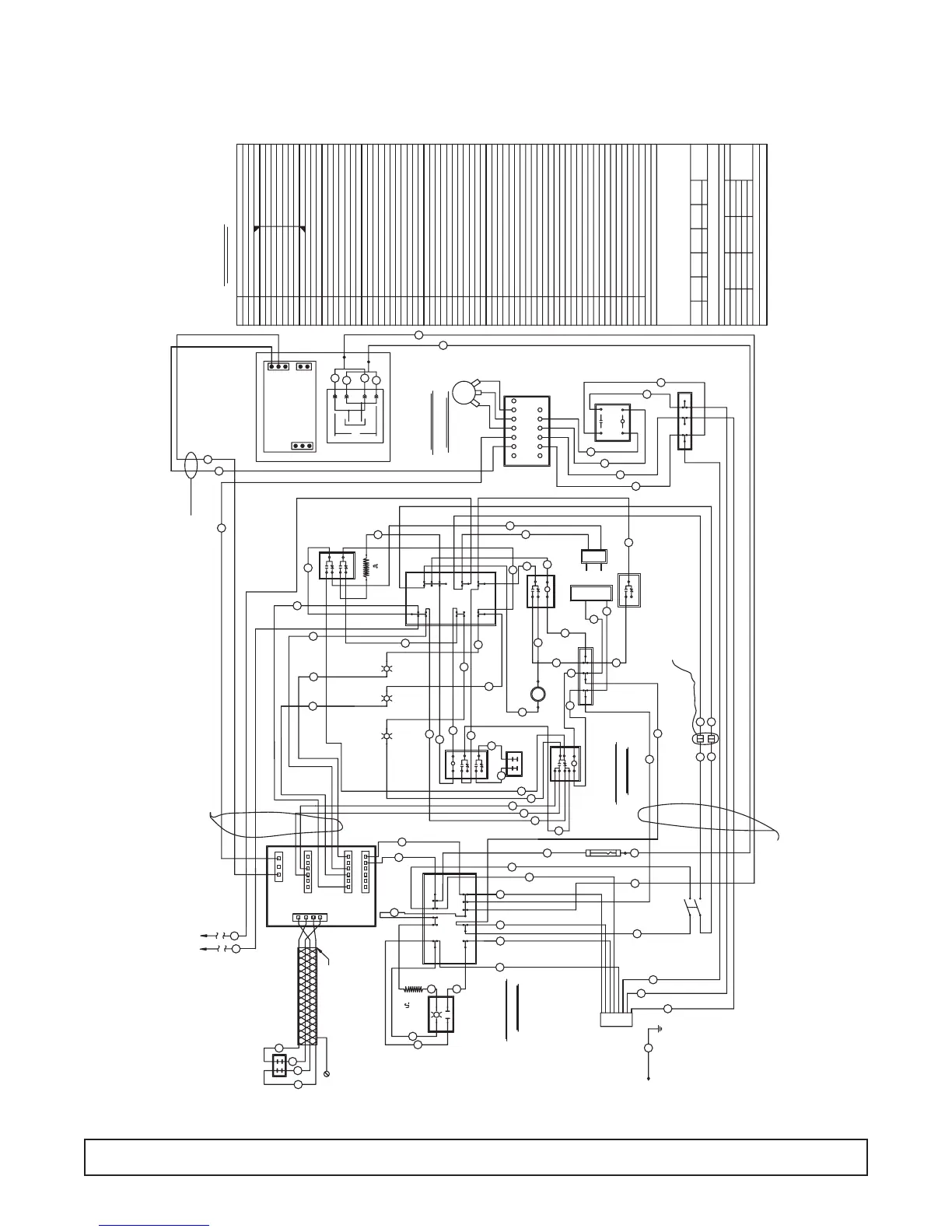
CONTROL PANEL WIRING DIAGRAM – 00-0017-12
115V
230V
TRANSFORMER
COM
NC
NO
RTD
GND(-)
4-20mA(+)
CIRCUIT BOARD
ALARM
GROUND
33
L
6V ALARM
RELAY
33
TERMINAL STRIP
65
64
62
61
C
L
LL
POWER
FAILURE
INDICATOR
LOW
TEMP.
INDICATOR
HIGH
TEMP.
INDICATOR
C
+
-
TIME DELAY
RELAY
R
E
C
P
T
A
C
L
E
1
1
5
A
V
C
C
H
A
R
G
E
1
2
V
D
C
AUDIO SILENCE
GROUND
48
37
20
12
18
9
9
13
13
28
28
36
36
23
16
17
12
19
30
29
27
31
32
4
1
26
34
6
860
59
21
14
24
25
7
7
11
10
2
5
3
LOW VOLTAGE
RACEWAY
BATTERY
+
-
INTERIOR
LIGHT
SWITCH
15
15
51
19
52
68
67
66
53
35
63
54
47K
RESISTOR
RESISTOR
15
15
POWER
RELAY
SWITCH
POWER
ON/OFF
+
-
00-C-0017-12
RM
2-26-96
HIGH VOLTAGE
RACEWAY
RED
PINK
PUSH TO TEST
DIGIT DISPLAY
MODULE #1
69
39
38
TO MATING PLUG
ON ELECTRICAL
BOX SEE DIAGRAM
MODULE #2
ALARM SYSTEM
SONALERT
CHKD
DATE
APPR
DATE
REV
XX
XX
XXX
XX
X
X
WIRE
CODE
DETAIL
GA
LTH
IN
CLR
WIRE
TERM
IN
THK
(64)
WIRE
TYPE
DATE
DRAWN
:
:
PART NO.
RD = RED
BK = BLACK
BE = BLUE
BN = BROWN
WE = WHITE
OE = ORANGE
GN = GREEN
PE = PURPLE
PK = PINK
GY = GRAY
TN = TAN
COLOR CODE
ITEM NO
WIRE CODE
YW
=
YELLOW
1
2
3
4
5
6
7
8
9
10
11
12
13
14
15
16
17
18
19
20
21
22
23
24
25
26
27
28
29
30
31
32
33
34
35
36
37
38
39
40
41
42
43
44
45
46
47
48
49
50
51
52
53
54
55
56
57
58
59
60
61
62
63
64
65
66
67
68
69
BLACK & WHITE LEAD
18RD008GR2A
18RD054GQ2A
BLACK LEAD
18PK054GQ2A
18PK016GL2A
18RD020GS2A
18GY016GL2A
18YW020QS2A
18PE020RS2A
18BE020RS2A
18RD004GQ2A
18YW008QR2A
18BN008GR2A
18YW008GR2A
18YW008GQ2A
18GY004GQ2A
18RD004QQ2A
RESISTOR W/LEADS
18PE008GQ2A
18PE008GG2A
18PE008DG2A
18YW004GR2A
18GY008GG2A
18GY012DG2A
18PE008GR2A
18OE004GR2A
18OE008GG2A
18WE008GQ2A
18BK008GQ2A
BLACK LEAD
WHITE LEAD
18BE008GQ2A
18BK024GG2A
18WE024GG2A
18BN004GR2A
18GY032SS2A
18BK036GG2A
18WE036GG2A
18RD008GS2A
18OE008GR2A
18WE004GG2A
18BK004GX2A
18BN008GX2A
18BN008GS2A
18WE008GS2A
18PE008GS2A
18PK008GX2A
18GY008GX2A
WHITE LEAD
BLACK LEAD
BROWN LEAD
ORANGE LEAD
YELLOW LEAD
RED LEAD
PURPLE LEAD
BLUE LEAD
GREEN LEAD
55
56
22
70 FUSE 1AMP 19-A-1049-00
FUSE 1.0 AMP
70
D
1
2
-
+
3
4
44
45
46
47
22
50
13
12
11
10
9
8
1
2
3
4
5
6
TEMPERATURE
CONTROLLER
SOLID STATE
RELAY
DESCRIPTION
WIRING DIAGRAM (CONTROL PANEL)
18RD008DG2A
18PK024SS2A
18OE024SS2A
18YW008AD2A
18BN008AD2A
18BE008AG2A
7
RED
WHITE
BLACK
19-1020-00
HARNESS
(44)
(45)
(46)
(47)
(48)
(49)
(50)
(51)
(52)
(53)
(54)
(55)
(56)
(58)
(59)
(60)
(37)
(36)
(35)
(34)
(33)
(30)
(29)
(28)
(27)
(26)
(25)
(24)
(23)
(22)
(21)
(20)
(18)
(17)
(16)
(15)
(14)
(13)
(12)
(11)
(10)
(09)
(08)
(07)
(06)
(05)
(03)
(02)
RD
BE PE
BUTTON
E
-
+
NO
C
WE
BK OE
3
4
1
2
8
4
3
2
1
7
6
5
8
TERM. BOARD
8
5
6
7
3
1
4
2
ALARM
BUTTON
NO
NC
NO
NC
C
C
19-0998-00
TERMINAL
BOARD
RD
YW
BN
GY
PK
PE
ON PANELS W/ALARM MODULE OPTION.
THESE CONNECTIONS ARE MADE IN THE RACEWAY
YW
WE
BN
OE BK
WE
TERMINAL
BOARD
115V
2
6
8
4
WE
BK
OE
BN
YW
RD
PE
BE
19-1004-00
RED
RED
RED
TERMINAL
BOARD
POTENTIOMETER
58
58
TERMINAL
STRIP
44
SENSOR
44
CONTROLLER/MONITOR
*SHIELDED CABLE
19-A-1151-00
*
*
SHIELDED CABLE ASSEMBLY
P/N 19-A-1151-00
DOOR AJAR
MODULE
#3
38
39
71
49
NOTE: WHEN CHART RECORDER IS NOT
PRESENT WIRE #48 IS CONNECTED
TO J4/pin3 ON CONTROLLER/MONITOR
AND WIRE #37 IS NOT USED.
CHART RECORDER
72
BLACK 19-A-1054-05
WHITE 19-A-1054-04
71
72
71
72
J4
J3
J2
J1
J5
1
4
6
1
1
3
1
6
6
1
WIRING DIAGRAM 35

Related product manuals