EasyManua.ls Logo

Carrier BT30RF- EXPR - Component Identification

Carrier BT30RF- EXPR
111 pages
Print Icon
To Next Page IconTo Next Page
To Next Page IconTo Next Page
To Previous Page IconTo Previous Page
To Previous Page IconTo Previous Page
Loading...
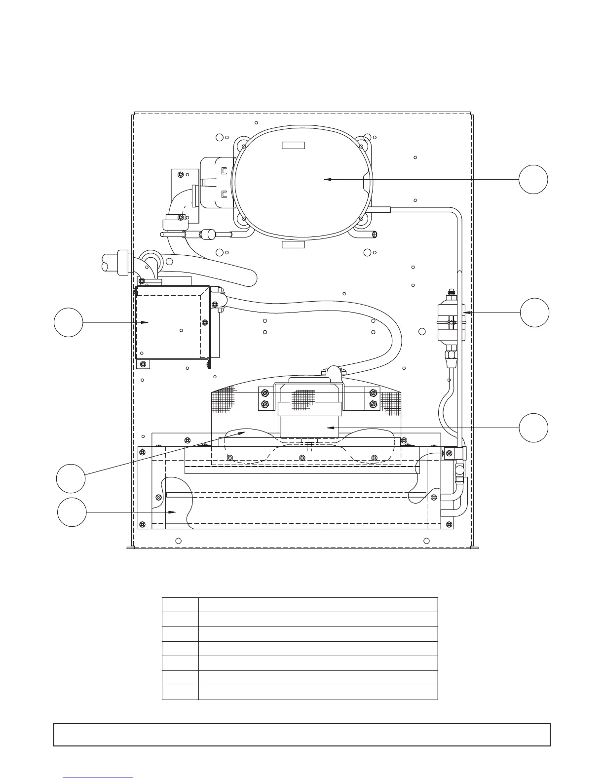
COMPRESSOR AREA MEDIUM TEMP.
Component Identification
START COMPONENT ASS'Y,
CONDENSER COIL
FAN MOTOR
COMPRESSOR
DESCRIPTION
FILTER/DRIER
FAN BLADE
2
6
3
5
4
ITEM
1
6
4
3
2
5
1
100 COMPRESSOR AREA ILLUSTRATION

Related product manuals