EasyManua.ls Logo

Carver Pump GH - Page 12

Default Icon
38 pages
Print Icon
To Next Page IconTo Next Page
To Next Page IconTo Next Page
To Previous Page IconTo Previous Page
To Previous Page IconTo Previous Page
Loading...
I-120
GH Pump 120 – 16.02.EN
6
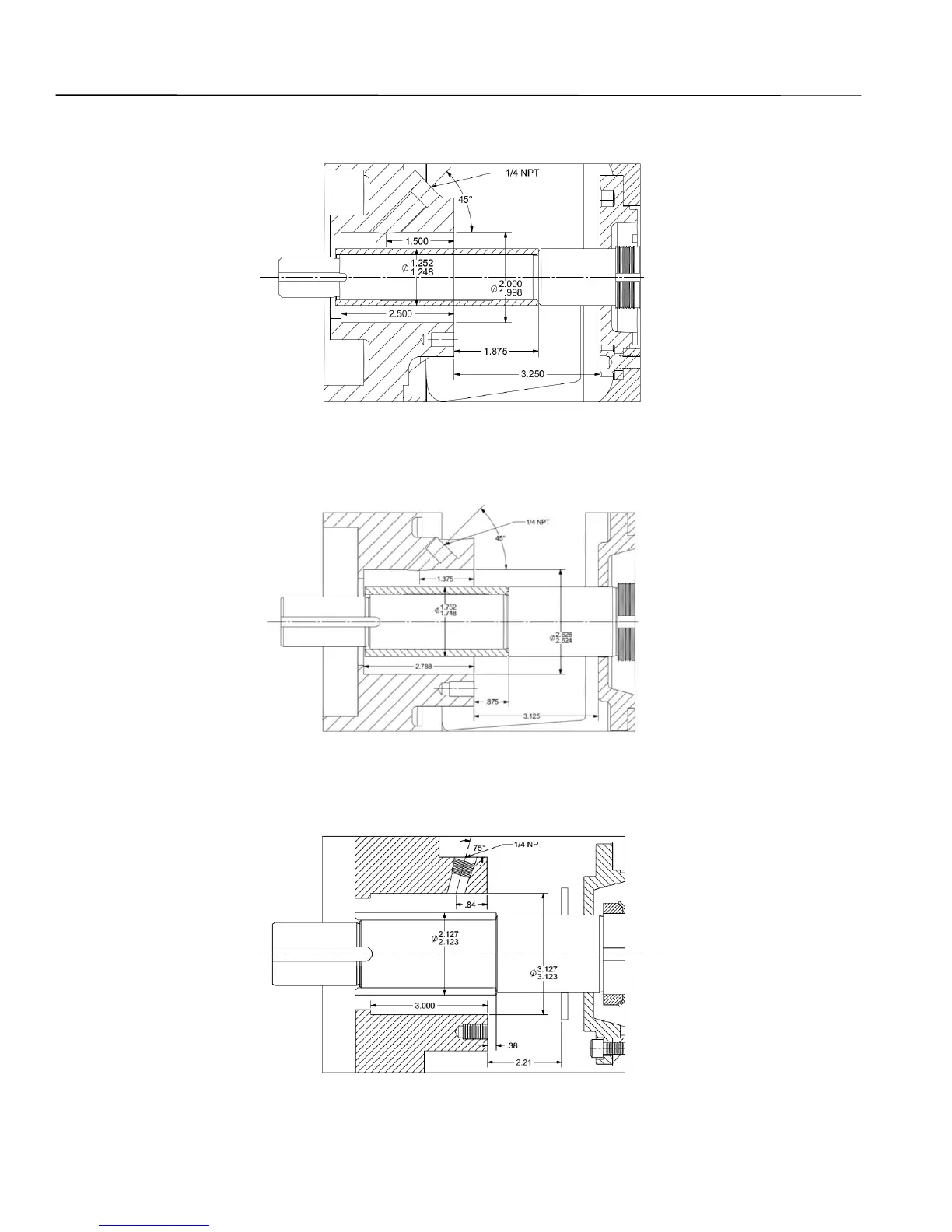
10P Bearing Frame
20P Bearing Frame
30P Bearing Frame
Figure 1. Stuffing Box Dimensions

Table of Contents

Related product manuals