EasyManua.ls Logo

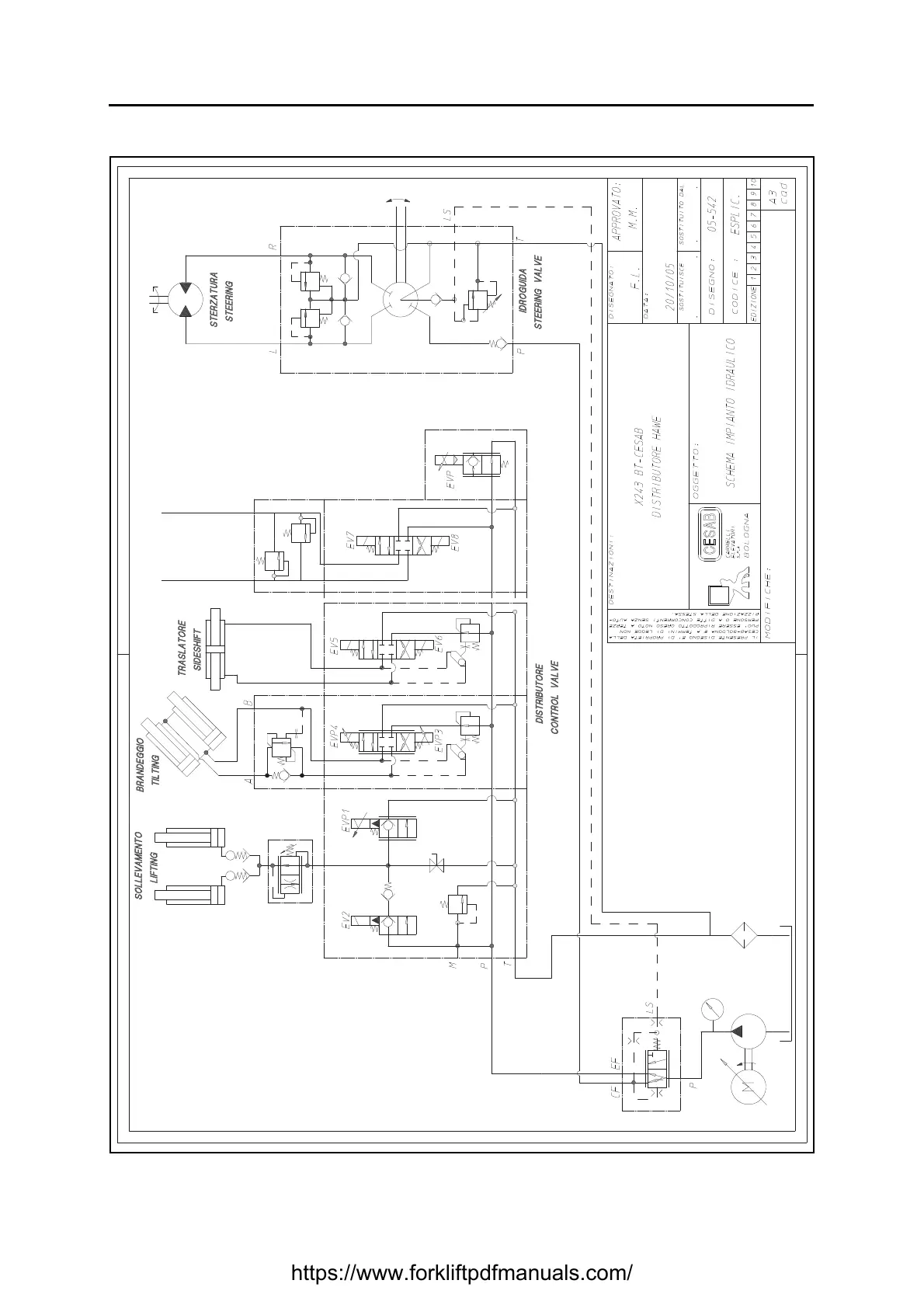
CESAB B 215 - HYDRAULIC DIAGRAM (Electro-Proportional Distributor Version)

Default Icon
460 pages
Print Icon
To Next Page IconTo Next Page
To Next Page IconTo Next Page
To Previous Page IconTo Previous Page
To Previous Page IconTo Previous Page
Loading...
7-4
HYDRAULIC DIAGRAM (electro-proportional distributor version)
https://www.forkliftpdfmanuals.com/

Table of Contents

Related product manuals