EasyManua.ls Logo

CH M1.1 - Bridge Mode; Passive Bi-Amplification Mode

Default Icon
42 pages
Print Icon
To Next Page IconTo Next Page
To Next Page IconTo Next Page
To Previous Page IconTo Previous Page
To Previous Page IconTo Previous Page
Loading...
Monaural mode
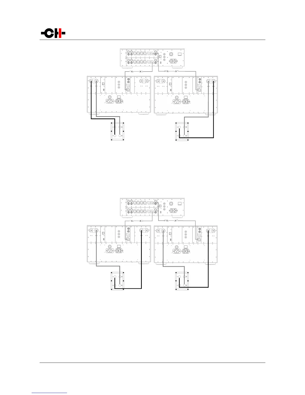
3.4.3 Bridge mode
This configuration should be used when low efficiency high impedance loudspeakers are used in large rooms. This configuration
also exhibits a better signal-to-noise ratio. The picture below shows how a pair of M1s should be connected in this mode:
Bridge mode
3.4.4 Passive bi-amplification mode
In this mode, each M1.1 operates its two power amplification channels in parallel, each channel driving a different loudspeaker
terminal from an identical signal. Feedback and gain can be adjusted independently for each channel to best match the individual
speaker sections. The picture below shows how the M1s should be connected in this mode:
20 M1.1 User Manual Rev 3.0
L1 Preamplifier
M1 Left Mono Power Amplifier
Left Speaker Binding Post
Right Speaker Binding Post
Balanced XLR cables
M1 Right Mono Power Amplifier
L1 Preamplifier
M1 Left Bridged Power Amplifier
Left Speaker Binding Post
Right Speaker Binding Post
Balanced XLR cables
M1 Right Bridged Power Amplifier

Related product manuals