EasyManua.ls Logo

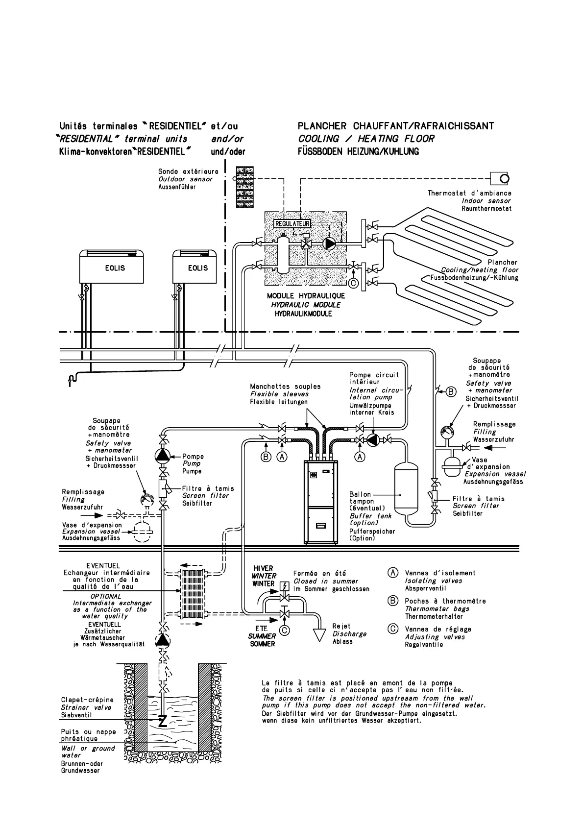
CIAT AUREA 40 - Installation Diagram: Well or Ground Water

CIAT AUREA 40
34 pages
Print Icon
To Next Page IconTo Next Page
To Next Page IconTo Next Page
To Previous Page IconTo Previous Page
To Previous Page IconTo Previous Page
Loading...
30
  
 
  

 
 
   


  
  

Related product manuals