EasyManua.ls Logo

CIAT AUREA Series - Pump and Valve Control

CIAT AUREA Series
34 pages
Print Icon
To Previous Page IconTo Previous Page
To Previous Page IconTo Previous Page
Loading...
34
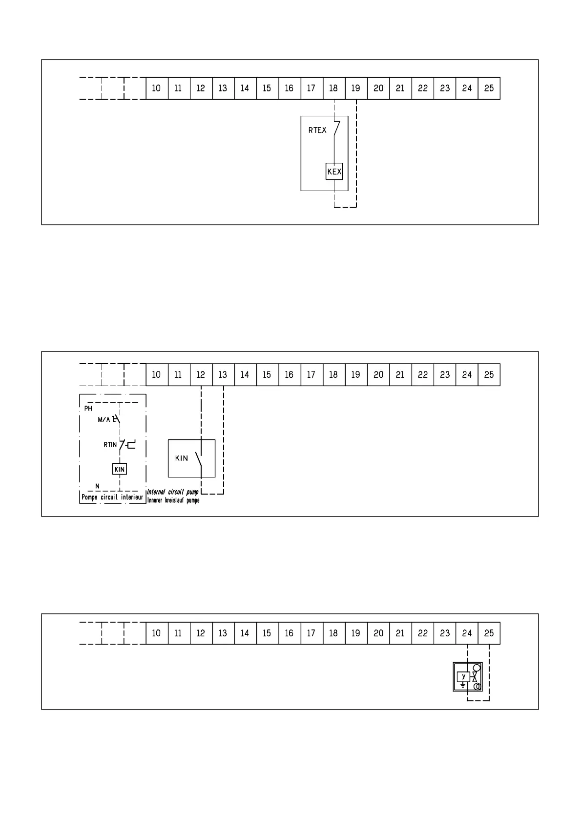
Commande pompe à eau
échangeur extérieur
External exchanger water
pump control
Steuerung Wasserpumpe
für äuß. Wärmetauscher
Nota : intensité maxi 500 VA
Note : max. intensity 500 VA
   
Raccorder le contacteur de la pompe
entre les bornes 18 et 19 du bornier.
Vérifier le paramétrage sur le régulateur.
Paramètre généraux “H”
– si H5 = 1 pompe en fonctionnement
continu
si H5 = 2 pompe asservie au compres-
seur (valeur par défaut)
Commande pompe à eau
échangeur intérieur
Connect the pump contactor between
terminals 18 and 19.
Check the parameter settings on the
controller.
General parameters “H”
– if H5 = 1, pump operates continuously
– if H5 = 2, pump operation linked to
compressor (default value).
Internal exchanger water
pump control
      
      
      

    
     

Steuerung Wasserpumpe
für inneren Wärmetauscher
Nota : intensité maxi 500 VA
Note : max. intensity 500 VA
   
Raccorder un contact de la pompe à
échangeur intérieur entre les bornes 12
et 13 en série avec le M/A (éventuel).
La pompe fonctionnera en continue à la
mise sous tension de l’appareil.
Vanne électrique de
régulation FROID / CHAUD
Connect a contact from the internal
exchanger pump between terminals 12
and 13, in series with the on/off switch if
fitted. The pump will operate continu-
ously when the machine is switched on.
Electric Heating / Cooling
control valve
     
   
        
       

Elektrisches Regelventil
zum Heizen / Kühlen
Nota : intensité maxi 500 VA
Note : max. intensity 500 VA
   
Voir procédure de réglage page 9.
Cette vanne sert à bipasser le débit
d’eau pendant le fonctionnement
chaud.
Raccorder la vanne solénoide entre les
bornes 24 et 25 du bornier.
Tension d’alimentation 230 V.
See adjustment procedure on page 9.
This pump is used to bypass the water
flow during heating operation.
Connect a solenoid valve between ter-
minals 24 and 25.
Power supply voltage 230 V
    
      
  
     
   
 

Related product manuals