EasyManua.ls Logo

Cisco NCS 5508 - Page 35

Cisco NCS 5508
146 pages
Print Icon
To Next Page IconTo Next Page
To Next Page IconTo Next Page
To Previous Page IconTo Previous Page
To Previous Page IconTo Previous Page
Loading...
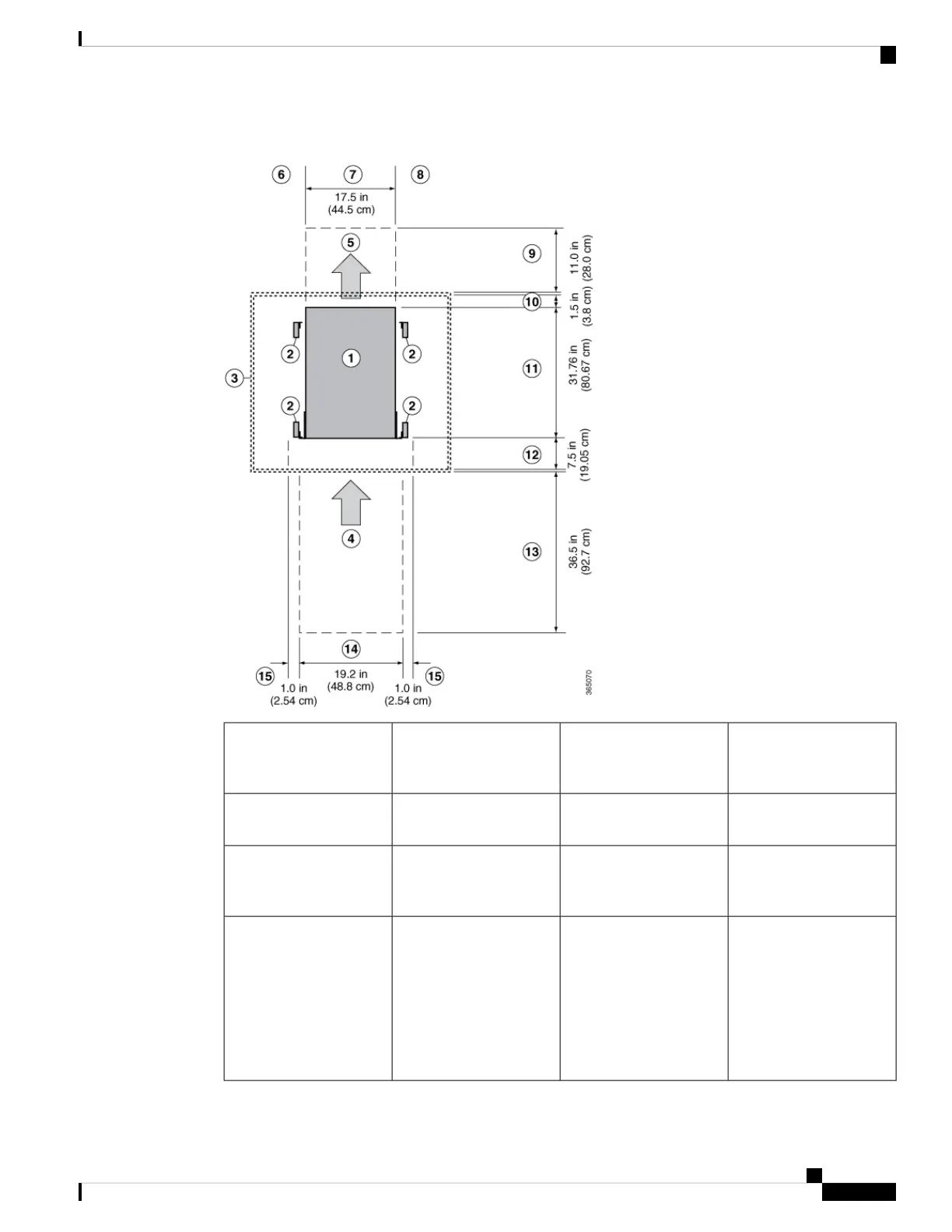
Figure 7: Clearances Required Around the Chassis for NCS 5508 and NCS 5516
Rear service clearance
required to replace fan
trays and fabric cards
9Chassis1
Clearance required for
module handles
10Vertical rack-mount posts
and rails
2
Chassis depth11Nearest object or inside of
cabinet (no side clearance
required)
3
Clearance required
between the front of the
chassis and the inside of
the cabinet (if used) or the
edge of the cold aisle (if
not cabinet) for the
optional side filter and
front door
12Air intake from the cold
aisle for all modules and
power supplies
4
Hardware Installation Guide for Cisco NCS 5500 Series Modular Routers
29
Prepare for Installation
Clearance Requirements

Table of Contents

Related product manuals