EasyManua.ls Logo

Cleaver-Brooks CFV - Page 13

Cleaver-Brooks CFV
16 pages
Print Icon
To Next Page IconTo Next Page
To Next Page IconTo Next Page
To Previous Page IconTo Previous Page
To Previous Page IconTo Previous Page
Loading...
CFV Startup Guide
Part No. 750-288 13
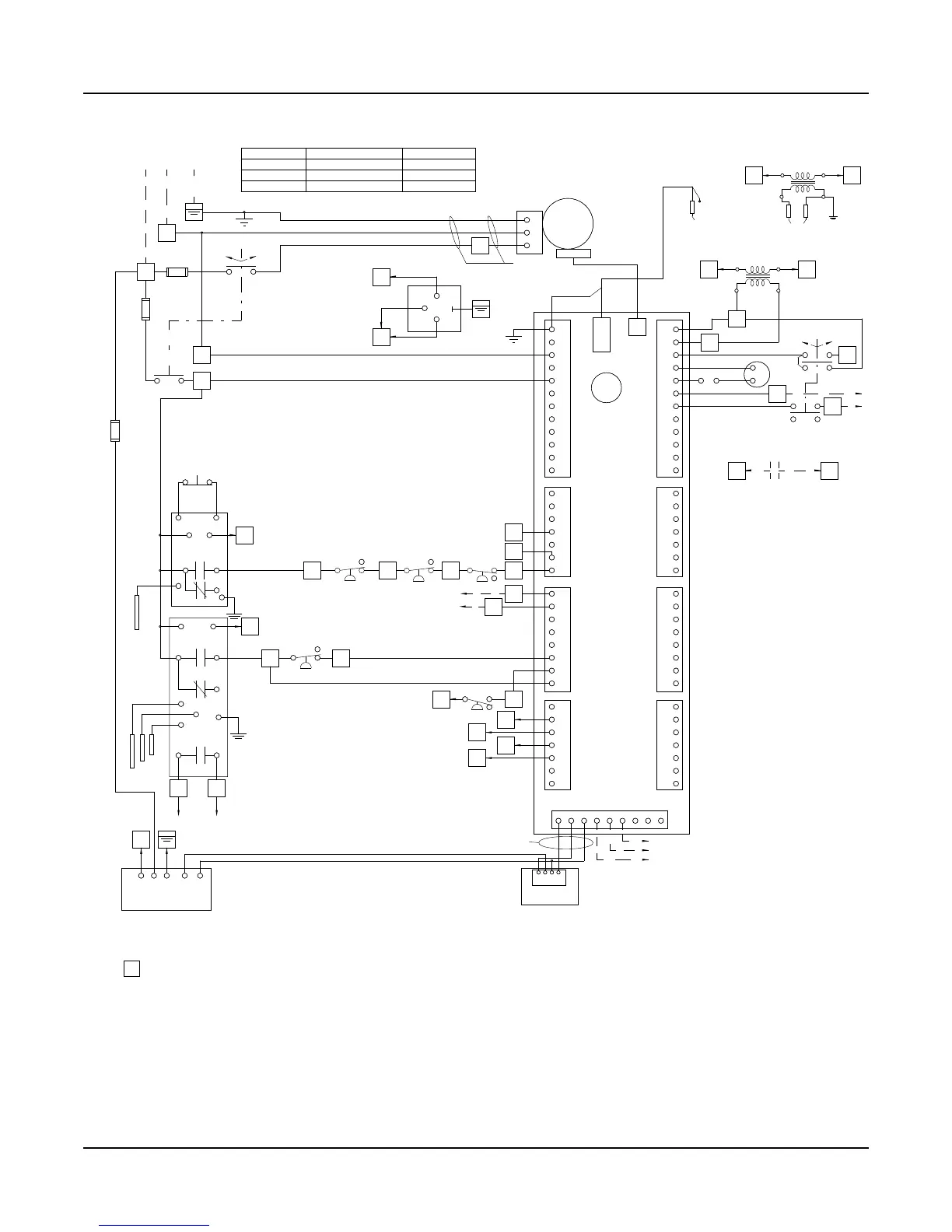
Figure 15 CFV Wiring Diagram
DENOTES CONTROL PANEL TERMINAL
5
LGPS
HGPS
(1)
(2)
MR
FUSE
BLOWER
OFF
ON
CNTRL
CIRC
5 AMP
BLOWER
AC POWER
CONNECTOR
CONNECTOR
G
L
N
G
LL1
115V/1PH AC FUSED
POWER SUPPLY W/
J2
3
4
VALVE
GAS
(3)
(2)
ELECTRODES
IGNITION
IGNITION
IONIZATION
ELECTRODE
TRANSFORMER
12
11
9
7
8
J4
3
6
4
1
2
FALCON
J1
4
CFV STEAM
MR
MR
GROUND
ALWCO
(COM)
(L2)
(L1)
(NO)
W
BK
GROUNDED NEUTRAL
TRANSFORMER
4
24 VAC
2
5
7
6
9
8
10
12
10
5
11
1
2
3
4
24
N
J8
1
J3
7
5
2
1
4
6
3
J5
J9
4
5
3
1
2
4
6
5
7
6
3
5
7
4
2
J6
8
1
5
2
4
6
3
1
J7
7
CANISTER
BURNER
J10
J11
DC CONTROL
2
CAPS
LCI
INTLK
EXT IGN
3
FUEL VALVE
PRE-IGN INTLK
9
10
11
ALARM
14
13
(COM)
(NO)
POWER
DEMAND
REM
LOC
(G)
(L1)
LWCO DF16
(L2)
4
(H)
PROBES
(8)
(7)
RESET
(MOM)
PB
1
9
COMMS
PS
(L)
(N)
(G)
(V+) (V-)
4
12 VDC
8
ANNUN #1/IAS
ANNUN #2/LWCO
8
NOTES:
TERMINALS: LL1,N,G,1,2,3,4-4-4,5-5-5,6,7,8,9,10,11,12,13,14,15,16,
CUSTOMER CONNECTIONS:
REMOTE ON-OFF 24 & 25
(24V 1A)
53
52
56
80
81
DASHED LINES INDICATE CUSTOMER CONNECTIONS
C1
C2
3C 18AWG
1 AMP
DISPLAY
51
12
ANNUN #3/ALWCO
PS FUSE
9
10
ANNUN #4/HLC
ANNUN #5/HGPS
ANNUN #6/LGPS
(R)
(C)
BL
W
11
6
7
5
4
3
2
1
6
7
5
4
3
2
1
8
ALARM
HLC
(4)
(1)
REMOTE
WH
BLK
RED
4
50
49
REMOTE ON-OFF
FUSE
(NC)
SHIELDED
21
29
30
22
23
24
25
26
28
27
14
15
16
17
18
19
20
10
11
12
13
8
9
6
7
4
5
2
3
1
REMOTE 4-20MA INPUT 26 & 27
(REF. 14)
(REF. 15)
(REF. 15)
(REF. 8)
(REF. 8)
(REF. 8)
(REF. 8)
BK
W
(REF. 8)
(REF. 9)
(REF. 15)
(REF. 15)
BLOWER MOTOR FUSE SELECTION
CFV HP
BLOWER MODEL RATING, CLASS CC
10 - 30
G1G170-AB05-20 6 A
40
G3G200-GN26-01 12 A
50 - 60
G3G250-GN39-01 15 A
(REF. 8)
57
(6)
RLY1
(COM)
(NO)
RLY2
6 7
FW PUMP
FW PUMP ON/OFF 6 & 7
PROBE
(LLCO)
54
(L)
55
(A)
(B)
(C)
OLC
8
DATA +
DATA -
COMMON
ACB
GLOBAL MODBUS
CONNECTIONS
14 GAUGE
ALL CONTROL WIRE IS #18 AWG UNLESS OTHERWISE NOTED
REMOT
E
26
+
-
XMTR
BK
BR
PRESS
-
+
4-20MA
23
25
(V-) (V+)
27
(REF. 25)
24 25
16
15
26,27,
23,24,25,
OFF
MODBUS RS485 J3-MB2 - A,B,C
REMOTE ALARM 15 & 16
(NC)
PR BL BL
BK
(G)
R
B/R
W
G
G
R
B/R
W
G
G
GY
OR
DISPLAY
Y
G
+-
ACB
MB1
MB2
LOCAL
(REF. 7)
(REF. 8)

Related product manuals