EasyManua.ls Logo

ClimateMaster Tranquility Series - Unit Dimensional Data

ClimateMaster Tranquility Series
26 pages
Print Icon
To Next Page IconTo Next Page
To Next Page IconTo Next Page
To Previous Page IconTo Previous Page
To Previous Page IconTo Previous Page
Loading...
7
Tranquility
®
Digital Air Handler (TAH)
Rev.: 11 Feb., 2013
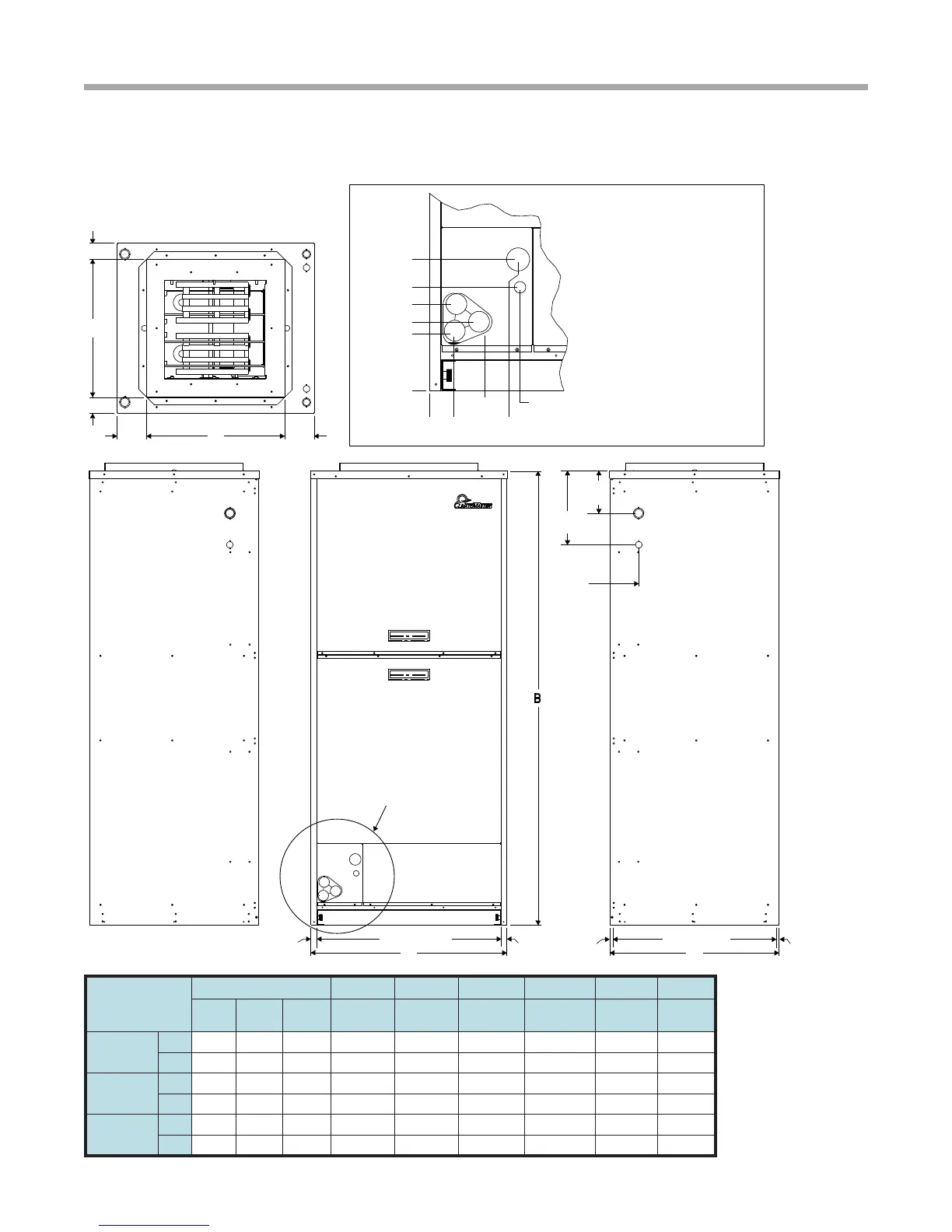
Unit Dimensional Data
0.0 1.6
[4.0]
3.6
[9.1]
5.8
[14.7]
5.9
[15.0]
0.0
3.7 [9.4]
4.5 [11.4]
5.6 [14.2]
6.7 [17.0]
8.5 [21.6]
Detail A
Scale 5/32
[0.4]
C
5.5
[14.0]
See Detail A
A
FD
G
H
E
J
R.A. Opening
0.625
[1.6]
0.625
[1.6]
R.A. Opening
0.875
[2.2]
0.75
[1.9]
8.5
[21.6]
3.6
[9.4]
Detail A
A = Primary Drain - Vertical,
Horizontal and Downflow
Configuration
B = Secondary Drain - Vertical
and Downflow Configuration
C = Secondary Drain - Horizontal
Configuration
A
B
C
Cabinet
Size
Overall Cabinet 1 2 3 4 5 6
A
Width
B
Height
C
Depth
D E F G H J
A - Cabinet
in. 18.5 44.0 22.0 14.0 14.0 2.3 2.3 4.1 4.1
cm. 47.0 111.8 55.9 35.6 35.5 5.8 5.8 10.3 10.3
B - Cabinet
in. 22.0 55.0 22.0 18.0 18.0 2.1 2.1 2.1 2.1
cm. 55.9 139.7 55.9 45.7 45.7 5.2 5.2 5.2 5.2
C - Cabinet
in. 25.5 59.0 22.0 18.0 18.0 3.8 3.8 2.1 2.1
cm. 64.8 149.9 55.9 45.7 45.7 9.9 9.9 5.2 5.2

Related product manuals