EasyManua.ls Logo

CLIVET ELFOROOM 3 - Page 108

CLIVET ELFOROOM 3
Print Icon
To Next Page IconTo Next Page
To Next Page IconTo Next Page
To Previous Page IconTo Previous Page
To Previous Page IconTo Previous Page
Loading...
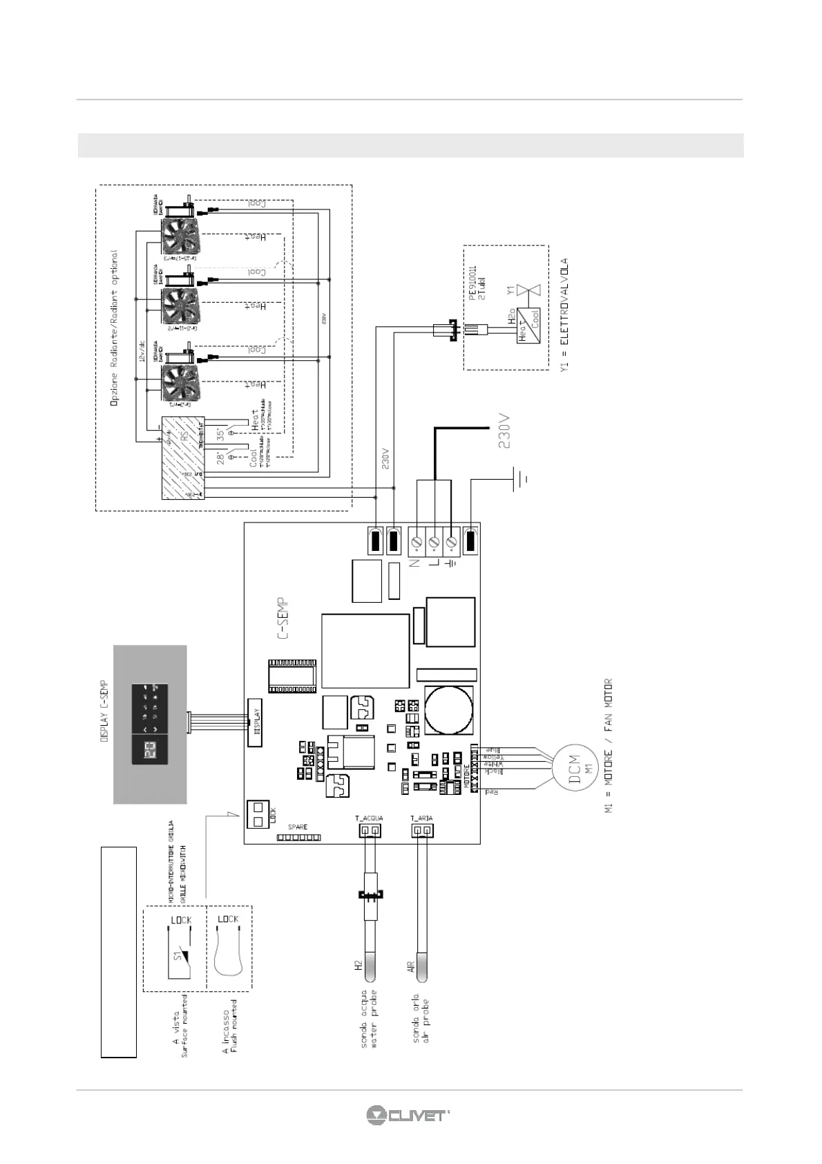
5 - RACCORDEMENTS ELECTRIQUES
5.10 Raccordement avec contrôle électronique à 4 vitesses
AIR capteur de température air
H2 capteur de température eau
S1 micro-interrupteur de sécurité grille
Y1 électrovalve eau
INSTALLATION 2 TUBES
108

Table of Contents

Related product manuals