EasyManua.ls Logo

Comestero Group World Key - Installation of Accessories; Installing KPM Board

Comestero Group World Key
54 pages
Print Icon
To Next Page IconTo Next Page
To Next Page IconTo Next Page
To Previous Page IconTo Previous Page
To Previous Page IconTo Previous Page
Loading...
World Key/World Key Lite/World Key Move - operating manual
30
5.4. Installation of accessories
N.B.:
The boards are intended exclusively for the normal World Key and cannot be applied to
World Key Lite.
General installation information:
Position the boards correctly, being careful not to rest them directly against the
metal parts.
Be careful of possible uncovered wiring especially near high voltage parts.
Provide the system with appropriate ventilation
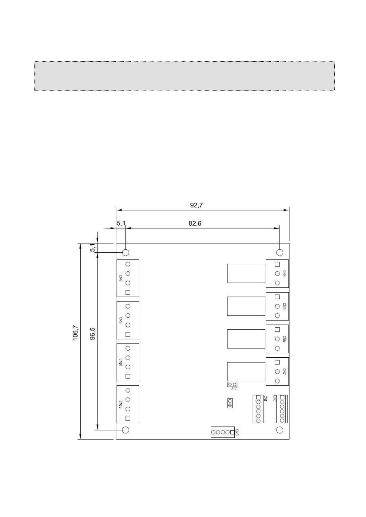
5.4.1 Installing KPM board
This is an additional board intended exclusively for World Key. It makes it possible to
manage up to 4 services simultaneously (4 relay outputs for service activation and 8
inputs, of which 4 to choose the service and 4 for inhibit/busy signal).

Related product manuals