EasyManua.ls Logo

Comestero Group World Key - Installing KPD Board

Comestero Group World Key
54 pages
Print Icon
To Next Page IconTo Next Page
To Next Page IconTo Next Page
To Previous Page IconTo Previous Page
To Previous Page IconTo Previous Page
Loading...
31
EN
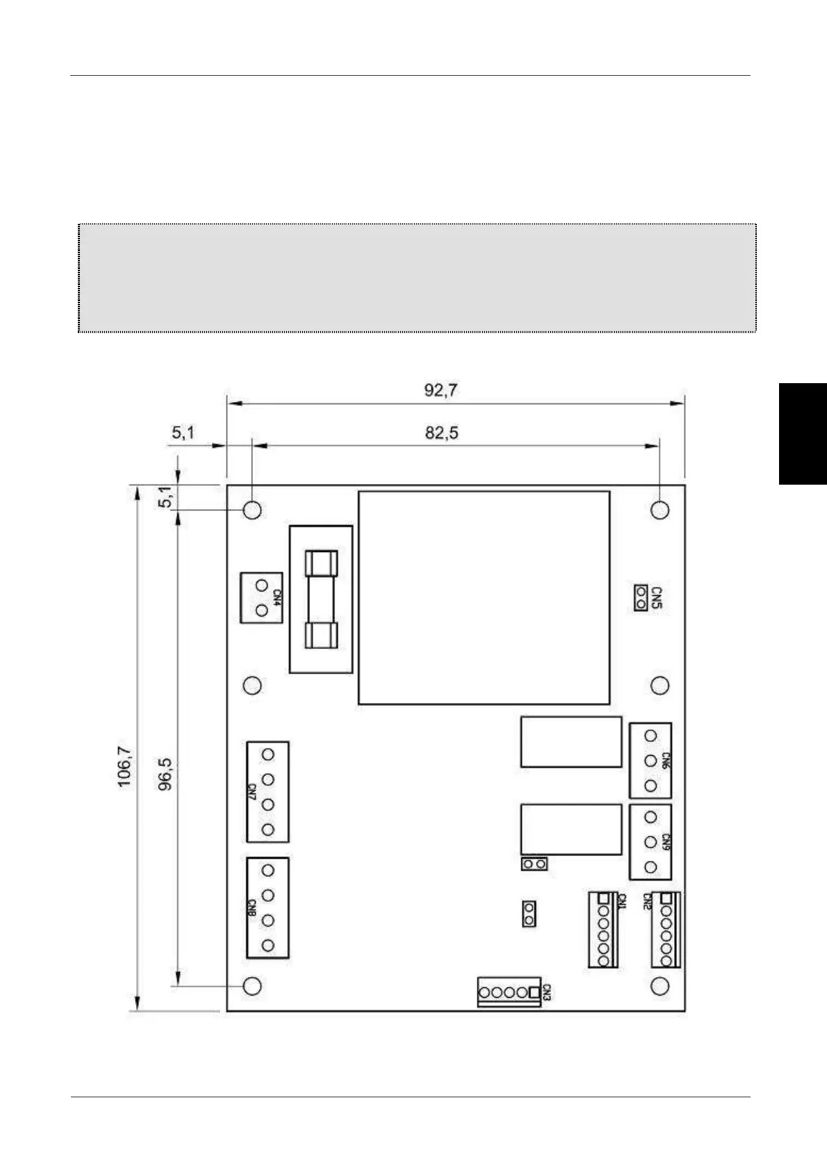
5.4.2 Installing KPD board
This is an additional board intended exclusively for World Key. It makes it possible to
manage up to 2 services simultaneously (2 relay outputs for service activation and 4
inputs, of which 2 to choose the service and 2 for inhibit/busy signal). It is equipped
with a network transformer.
N.B.:
The specified data of the transformer on the KPD is 230 Vac/24 Vac (15W).
The overall consumption of the connected peripherals must be lower than the limits set by
the specified data.

Related product manuals