EasyManua.ls Logo

Comestero Group World Key - World Key Lite CPU Connections

Comestero Group World Key
54 pages
Print Icon
To Next Page IconTo Next Page
To Next Page IconTo Next Page
To Previous Page IconTo Previous Page
To Previous Page IconTo Previous Page
Loading...
37
EN
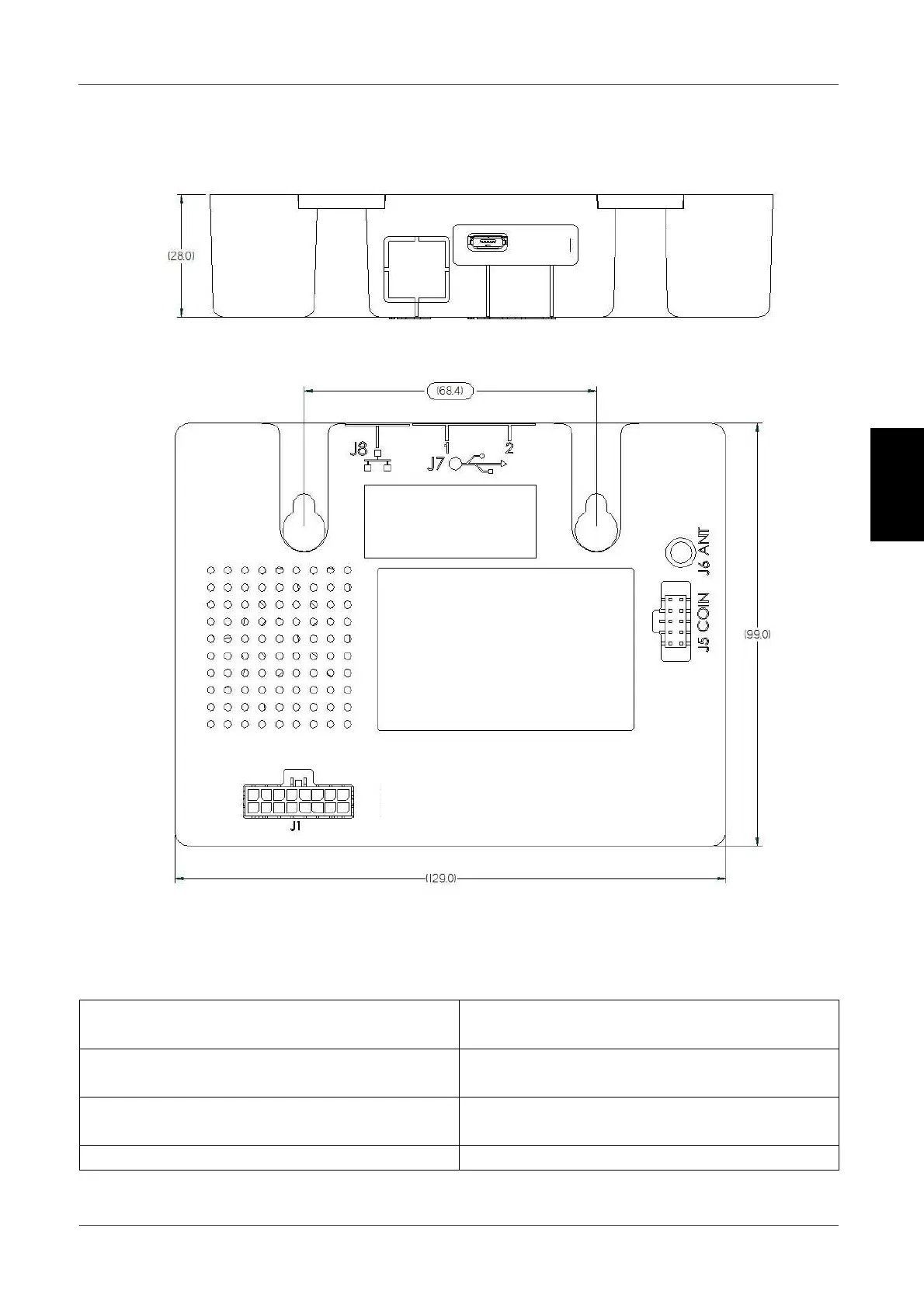
5.5.2 World Key Lite CPU connections
J1 = microfit 3mm 16 poles Connection of VMC and payment devices
power supply
J5 = strip 2.54mm 10poles Connection of coin validator
12 Vdc ± 10% 0.5 A ± 10%
J6 = MCX 50 Ohm Connection of Moon, Sky, Galaxy reading
heads coaxial cable
J7 = MICRO USB Connection to USB Host devices (PC)

Related product manuals