EasyManua.ls Logo

Community R.5 - R.25 Input Connection Guide; R.25 Dimensions; R.25 Yoke Mounting Bracket (included)

Community R.5
40 pages
Print Icon
To Next Page IconTo Next Page
To Next Page IconTo Next Page
To Previous Page IconTo Previous Page
To Previous Page IconTo Previous Page
Loading...
Community R-Series Installation/Operation Manual for Models R.5 and R.25 — Page 29
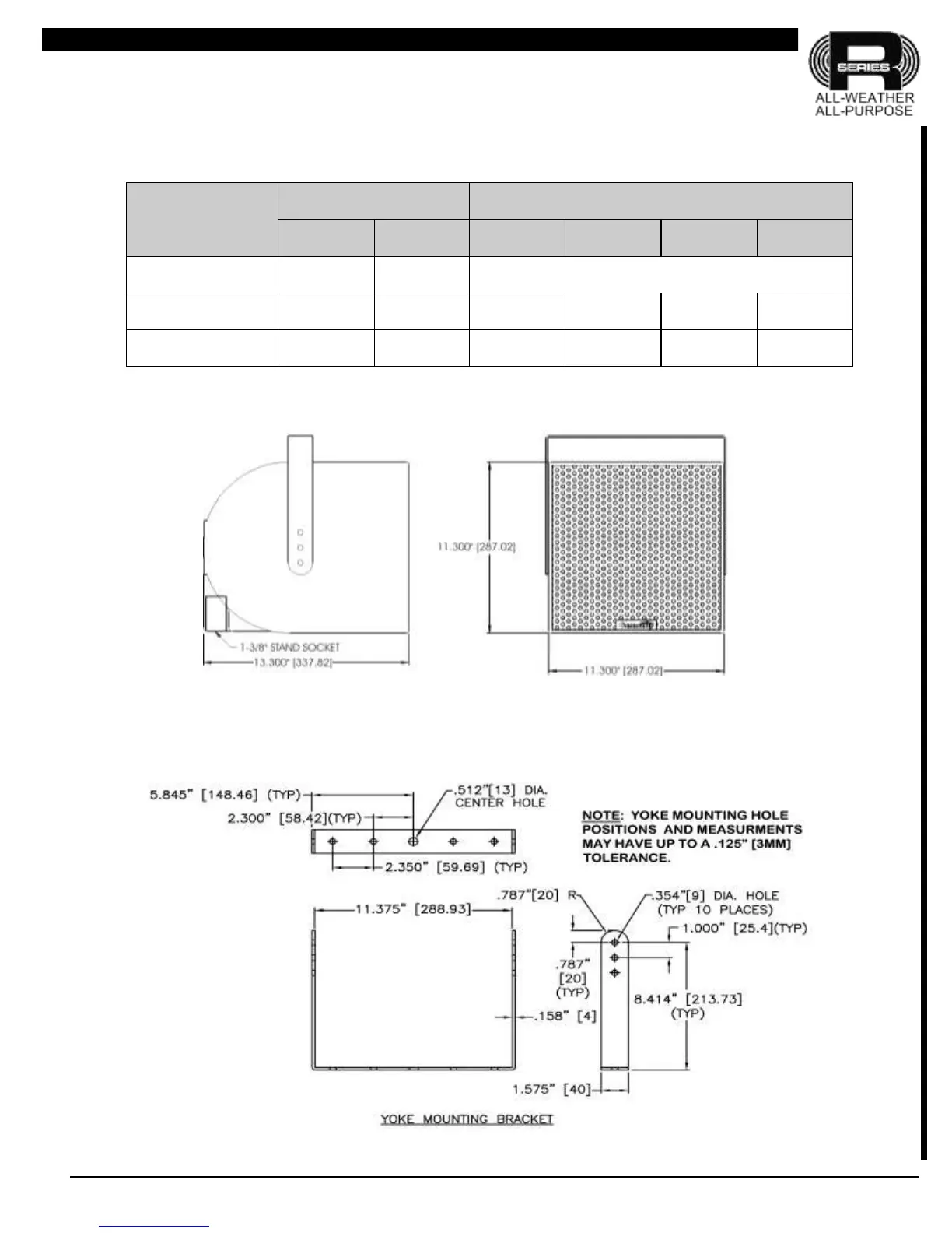
R.25 Dimensions
Cable 70V/100V Selector Switch
Version
Black White Pos. 1 Pos. 2 Pos. 3 Pos. 4
R.25-94Z Negative Positive N/A
R.25-94TZ (70V) Negative Positive 25W 50W 100W 200W
R.25-94TZ (100V) Negative Positive 50W 100W 200W N/A
R.25 Input Connection Guide
R.25 Yoke Mounting Bracket (included)
R.25 SPECIFICATIONS*

Related product manuals