EasyManua.ls Logo

Comunello CU - 230V - HP - Page 13

Comunello CU - 230V - HP
Print Icon
To Next Page IconTo Next Page
To Next Page IconTo Next Page
To Previous Page IconTo Previous Page
To Previous Page IconTo Previous Page
Loading...
13
COMUNELLO ®Copyright 2019 - All rights reserved
ITALIANO
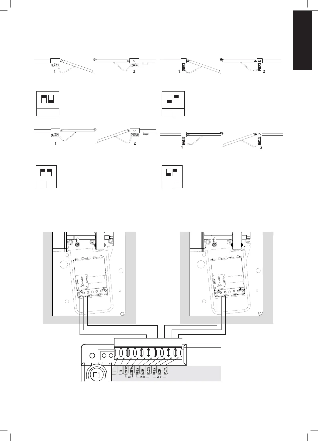
5.5 CONDOR 500 / CONDOR 500 S - schema di collegamento dei motori
Congurazione con apertura ritardata del MOTORE n°2
1 2
1
2
CONDOR 500 CONDOR 500 S
2
MOTORS
DELAY
MOT. 2
1
ON
2
SW1
DIP1 ON = congurazione a 2
motori
DIP2 OFF = Ritardo motore 2
INV
OFF
INV
MOT. 2
1
ON
2
SW2
DIP1 OFF = inversione MOTORE
1 disattivata
DIP2 ON = inversione MOTORE
2 attivata
Congurazione con apertura ritardata del MOTORE n°1
1 2
1 2
CONDOR 500 CONDOR 500 S
2
MOTORS
DELAY
MOT. 1
1
ON
2
SW1
DIP1 ON = congurazione a 2
motori
DIP2 ON = Ritardo motore 1
INV
OFF
INV
MOT. 2
1
ON
2
SW2
DIP1 OFF = inversione MOTORE
1 disattivata
DIP2 ON = inversione MOTORE
2 attivata
Collegamento lare SENZA ENCODER dei motori alla centrale di comando
Congurazione - MOTORE N.1 SULLA SINISTRA, MOTORE N.2 SULLA DESTRA
Collegamento lare dei motori alla centrale di comando
MOTORE n.1 (a sinistra)
NERO con OP1
BLU con CM1
MARRONE con CL1
MOTORE n.2 (a destra)
NERO con OP2
BLU con CM2
MARRONE con CL2
CN1
L
N
OP1
CM1
CL1
OP2
CM2
CL2
230V
230V

Related product manuals