EasyManua.ls Logo

Control Techniques Commander SK4403 - Page 24

Control Techniques Commander SK4403
60 pages
Print Icon
To Next Page IconTo Next Page
To Next Page IconTo Next Page
To Previous Page IconTo Previous Page
To Previous Page IconTo Previous Page
Loading...
Safety
Information
Product
Information
Mechanical
Installation
Electrical
Installation
Keypad and
Display
Parameters
Quick Start
Commissioning
Diagnostics Options Parameter List
UL Listing
Information
24 Commander SK Size 2 to 6 Getting Started Guide
www.controltechniques.com Issue Number: 2
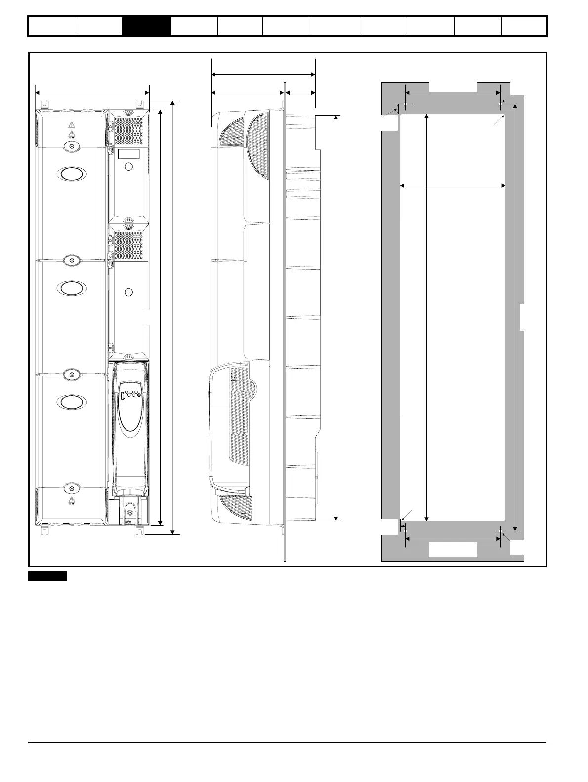
Figure 3-16 Through-panel mounting of a size 6 drive
In order to achieve IP54 rating and/or NEMA 12 for through-panel
mounting, an IP54 insert must be fitted (size 2) and the heatsink fan
must be replaced with an IP54 rated fan (size 2 to 4). Additionally, the
gasket provided should be fitted between the drive and the backplate to
ensure a good seal for the cubicle. See section 3.4 IP Rating (Ingress
Protection) on page 25
310mm (12.205in) 200mm (7.874in)
1105.6mm
(43.528in)
8.5mm
(0.335in)
8.5mm
(0.335in)
1131mm
(44.528in)
1179.3mm
(46.429in)
98mm
(3.858in)
298mm (11.732in)
258.6 0.5mm
(10.181 0.020in)
±
±
286.0 0.5mm
(11.260 0.020in)
±
±
1107.8 0.5mm
(43.614 0.020in)
±
±
27.1 0.5mm
(1.067 0.020in)
±
±
13.7±
±
0.5mm
(0.539 0.020in)
258.6 0.5mm
(10.181 0.020in)
±
±
1161.2
0.5mm
(45.717
0.020in)
±
±
R6.5mm
(0.256in)
R6.5mm
(0.256in)
NOTE

Related product manuals