EasyManua.ls Logo

COZY DVCF402D - Page 15

COZY DVCF402D
134 pages
Print Icon
To Next Page IconTo Next Page
To Next Page IconTo Next Page
To Previous Page IconTo Previous Page
To Previous Page IconTo Previous Page
Loading...
COUNTERFLOW DIRECT VENT GAS WALL HEATER 15
MODELS: DVCF40XD, DVCF60XD
a. Remove the manual spark igniter and bracket by
removing the (2) screws and disconnecting the wire at
the back of the igniter.
b. Disconnect the two (2) slip-on connectors (24 volt
wires) from the gas valve.
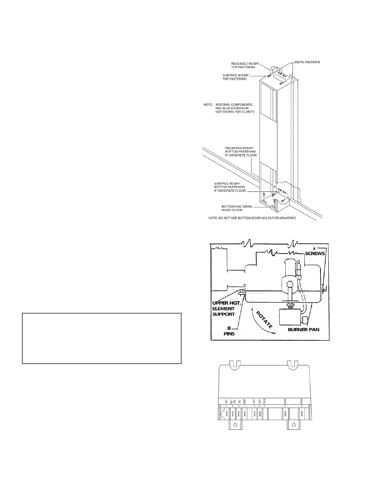
c. Remove the (3) screws ‘A’ holding burner pan to the
upper heating element support (Page 15, Figure 22).
Rotate the burner toward the front until the (3) pins ‘B’
disengage from the upper heating element support slots.
d. Remove the burner and control assembly from furnace.
NOTE: Attach vent tubes BEFORE mounting the furnace.
See Pages 13 & 14
2.
If furnace is recessed in the wall, clear the recess of all debris.
3. Be sure the gas is shut off at the meter.
4. Before placing the furnace in position, remove the gas
piping stub if necessary to locate the furnace.
5. After installing the vent tubes, carefully move the
furnace into position, being sure not to bend the
vent tubes.
FASTEN FURNACE BOTTOM
(SURFACE AND RECESSED MOUNT)
NOTE: Fasteners are not furnished because of different
requirements of various types of wall construction.
Fasten the furnace to the floor through the holes provided
in the furnace bottom. If you have concrete flooring, use
an alternate fastening method. See Page 15, Figure 21
If the burner and control assembly were removed, replace
them by reversing steps 1a through 1d.
IMPORTANT: When replacing the burner and control
assembly, be sure that pins “B” all enter the slots in the
upper heating element support. To prevent dam-
age to wiring, be careful not to pinch them between
furnace components and route them away from the
burner pan surface.
FASTEN FURNACE TOP (SURFACE MOUNTING)
Fasten the furnace top to wall using two (2) metal anchors
(packed in plastic bag with thermostat) by placing them
over the back flange of the furnace top and screwing
them to the wall. Refer to Figure 21.
FASTEN FURNACE TOP (RECESSED MOUNTING)
Fasten the furnace top by drilling two (2) holes through
the side flanges of the furnace top and securing it with
two (2) screws or nails into the wall studs. Refer to Figure 21.
FIGURE 21  FURNACE MOUNTING
FIGURE 22  BURNER PAN
FIGURE 23  IGNITION CONTROL
CAUTION: Be careful not to damage furnace components
or wiring when drilling holes.

Table of Contents

Related product manuals