EasyManua.ls Logo

COZY DVCF402D - Mounting Your Furnace

COZY DVCF402D
134 pages
Print Icon
To Next Page IconTo Next Page
To Next Page IconTo Next Page
To Previous Page IconTo Previous Page
To Previous Page IconTo Previous Page
Loading...
14 COUNTERFLOW DIRECT VENT GAS WALL HEATER
INSTALLING YOUR FURNACE
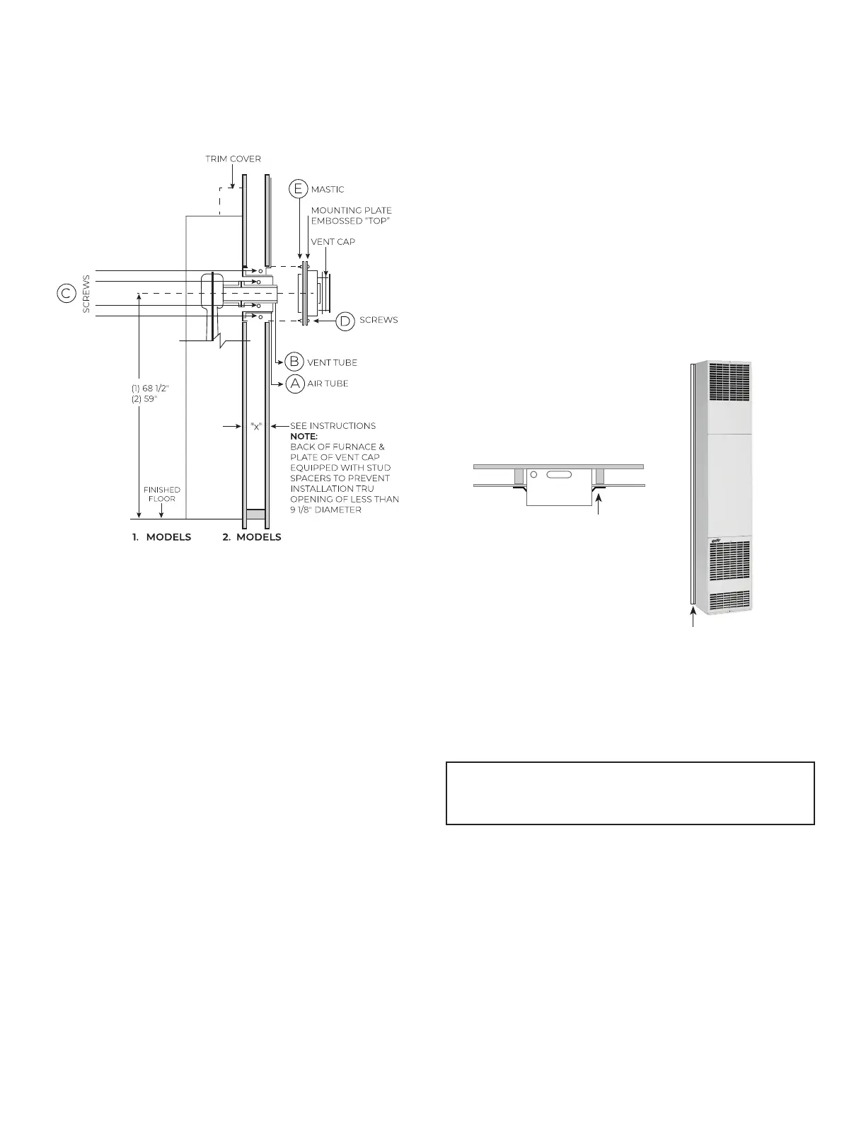
FIGURE 19  VENT INSTALLATION
Trim
To conceal the space between the furnace and wall, use
4701 Trip Strip Package (not furnished with furnace),
¾-inch round or other wood trim.
TRIM COVER
Place the trim cover on top of the furnace. See Page 14,
Figure 20. Drill through the top casing flange and fasten
each side with a sheet metal screw. This plate covers the
space between the top of the furnace and wall opening
after electrical connections are made.
MOUNT FURNACE THROUGH WALL
Mount the furnace through the wall using surface or
recessed mounting instructions. See Pages 11 - 15.
Refer to Figure 19 for the following steps.
1. Check to see that the air tube protrudes through wall
7/8-inch min. to 1-inch max. for proper seal in vent cap.
2. Check to see that the vent tube protrudes past the air
tube 1/8 inch min. to ¼- inch max. for proper seal in
vent cap.
3. Apply a single strip of mastic (“E” provided in the vent
cap carton) continuously around the outer edge of the
vent cap mounting plate.
4. Holding the vent cap in an upright position (embossed
“top” on the mounting plate towards the top of the
furnace), push it into place until the stops
are contacted. If the stops prevent the mounting plate
from reaching the wall, refer back to “DETERMINE
PROPER LENGTHSPage 13.
NOTE: The smaller tube in the vent cap must slide over
the vent “B”.
5. Fasten the vent cap mounting plate to the wall with
(4) 1½-inch wood screws “D’’ provided.
6. On masonry construction, drill into the wall and use
plugs or anchors. Additional sealant (silicone) may be
required if the mounting surface is uneven.
FIGURE 20  FURNACE TRIM STRIPS
Mounting Your Furnace
To obtain adequate clearance for fastening the furnace or
to install gas supply fittings, it may be necessary to remove
the burner and control assembly as follows:
CAUTION: Be careful not to damage burner pan
gasket when removing burner and control assembly.
1. Lay the furnace on its back for the following steps.
Remove burner compartment door by pulling the
door top out and up.
TOP VIEW OF FURNACE
TWO STRIPS ON EACH SIDE
TRIM STRIPS (2)
DVCF60XD DVCF40XD

Table of Contents

Related product manuals