EasyManua.ls Logo

COZY DVCF402D - Recessed Mount Installation

COZY DVCF402D
134 pages
Print Icon
To Next Page IconTo Next Page
To Next Page IconTo Next Page
To Previous Page IconTo Previous Page
To Previous Page IconTo Previous Page
Loading...
COUNTERFLOW DIRECT VENT GAS WALL HEATER 9
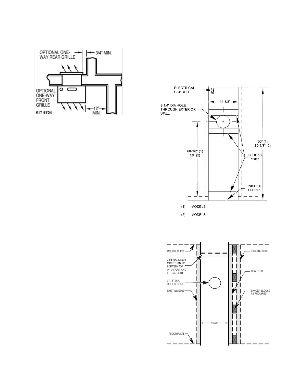
FIGURE 7
Recessed Mount Installation
FIND THE STUDS
Use a stud locator or small finishing nails. Repeatedly drive
and remove a nail into the wall in the area of the stud until
you find it. Then find one side. Leave the nail there. Drive
another nail just on the other side of the same stud.
Inside edge of the other stud should be about 14½-inches
from the one found. Drive finishing nail on inside edge of
this stud.
NOTE: If studs are not on 16-inch centers, see section
“Close off Stud Space”, below.
CUT WALL OPENING
1. Lay out the required opening to be cut in inside wall
(Figure 8). Mark center of the vent hole on wall. Using
a window, door or wall corner for reference, measure to
find where vent will be on outside wall. Check to
be sure clearances (Page 8, Figure 2, and Figures 4, 5,
6 and 7 on page 9) will be right.
2. Drill a ¼-inch hole through vent hole center to the
outside wall to mark vent location.
3. Make the required cutout in inside wall. (Figure 8).
4. Using the hole drilled through to the outside wall
as the center, cut a 9¼-inch diameter hole for the vent.
It may be better to work from outside, especially when
breaking through brick, stone or tile. (See Figure 8).
5. In new stud wall construction, install blocks as shown
in Figure 7 and install plaster grounds around inside of
wall opening.
6. The vertical height of the opening shown is 3-inches
greater than height of furnace to allow space for
connection of wiring after furnace is installed.
NOTE: Vertical measurements are from finished floor.
(Figure 7)
CLOSE OFF STUD SPACE (If Required)
If studs are not on 16-inch centers, cut the hole for the
furnace next to an existing stud and frame in the other
side using a 2”x 4” and spacer blocks as required. As shown
on Page 9, Figure 9.
If the distance from the top of the cutout to the ceiling
wall plate is more than 18-inches, it is recommended that
it be closed off.
Nail a 2”x 4” long enough to go between the studs at the
top of the opening to close off the stud space.
FIGURE 8  WALL OPENING FOR RECESSED MOUNT
FIGURE 9  CLOSE OFF STUD SPACE
DVCF40XD
DVCF60XD

Table of Contents

Related product manuals