EasyManua.ls Logo

COZY DVCF402D - Page 10

COZY DVCF402D
134 pages
Print Icon
To Next Page IconTo Next Page
To Next Page IconTo Next Page
To Previous Page IconTo Previous Page
To Previous Page IconTo Previous Page
Loading...
10 COUNTERFLOW DIRECT VENT GAS WALL HEATER
INSTALLING YOUR FURNACE
GAS AND ELECTRICAL SUPPLY OPENINGS
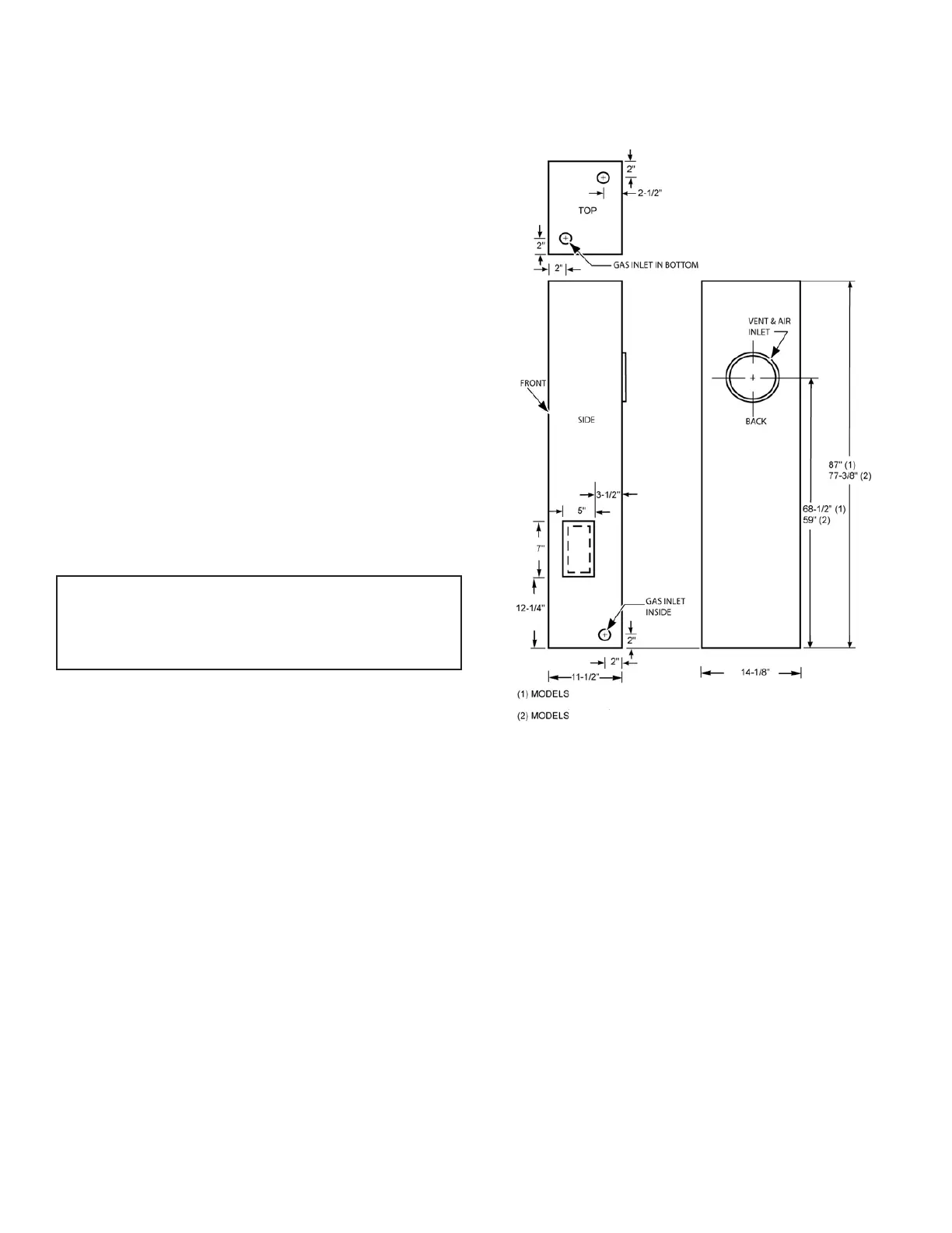
Holes must be drilled for the gas line and electrical supply.
Holes must be located from each side of furnace as shown
in Figure 10.
Decide whether the gas line will come through the floor
or wall.
Drill a 1½ -inch hole in wall or floor as needed.
Gas line can be run at this time or done after furnace is
mounted, see section GAS SUPPLY AND PIPING,
on Page 16.
The electrical supply opening should be at the lower
portion of the furnace, to match openings shown in Figure
10. Mark ceiling wall plate and drill holes. If not practical
to run wiring from the attic, drill holes through wall stud
and run wires up through adjoining stud space from crawl
space or basement.
Run the electrical supply with the ground wire and
thermostat cable to the openings. Leave enough length to
connect in the junction box after the furnace is installed.
See section “Electrical Wiring,on page 15.
CAUTION: Do not run wire in any location where it
might be damaged. Avoid splicing thermostat wire
unless the spliced wires are properly cleaned, soldered,
and taped.
OFFSET WALL INSTALLATION
To mount the wall furnace on an offset wall, the area
behind the furnace must be made flush or flat.
Use lumber (2"x 4"s, 2"x 6"s etc.) to make the surface flush
with other portion of wall.
Use sheet rock or paneling etc. to finish area.
Follow procedures under Surface Mount Installation.
SURFACE MOUNT INSTALLATION - FIND THE STUDS
1. Find two studs at spot where furnace is to be placed.
Use a stud indicator or small finishing nails. Repeatedly
drive and remove a nail into the wall in the area of the
stud until you find it. Then find one side. Leave the nail
there. Drive another nail just on the other side of the
same stud.
2. Inside edge of the other stud should be about 14½-inches
from the one found. Drive finishing nail on inside
edge of this stud.
CUT VENT OPENINGS
1. Lay out and mark the center of the hole to be cut
through the wall for the vent (Page 9, Figure 8). Using
a window, door, or wall corner for reference, measure to
find where vent will be on outside wall. Check to be sure
clearances are correct. (See Pages 7-9, Figures 2, 4, 5, 6 &
7)
.
FIGURE 10  GAS AND ELECTRICAL OPENINGS
2. Drill a ¼-inch hole through vent hole center to the
outside. Cut the 9¼-inch diameter hole through inside
wall. Using the ¼-inch hole as the center, cut a
matching hole in outside wall. It may be better to
work from the outside, especially when breaking
through brick, stone or tile.
GAS AND ELECTRICAL SUPPLY OPENINGS
Holes must be drilled for the gas line and electrical supply.
Holes must be located from each side of furnace as shown
on Page 10, Figure 10.
Drill a 1½-inch hole in floor or wall for gas line.
Gas line can be run at this time or done after furnace is
mounted, see section: Gas Supply and Piping, Page 16.
Mark ceiling or wall to match wall furnace openings and
drill a 1-inch hole for the power supply and a ½-inch hole
for the thermostat cable. Run the electrical supply and
ground wires to the opening. Leave enough length to
connect in the junction box after the furnace is installed.
See section “Electrical Wiring,Page 15.
DVCF40XD
DVCF60XD

Table of Contents

Related product manuals