EasyManua.ls Logo

COZY DVCF402D - Page 11

COZY DVCF402D
134 pages
Print Icon
To Next Page IconTo Next Page
To Next Page IconTo Next Page
To Previous Page IconTo Previous Page
To Previous Page IconTo Previous Page
Loading...
COUNTERFLOW DIRECT VENT GAS WALL HEATER 11
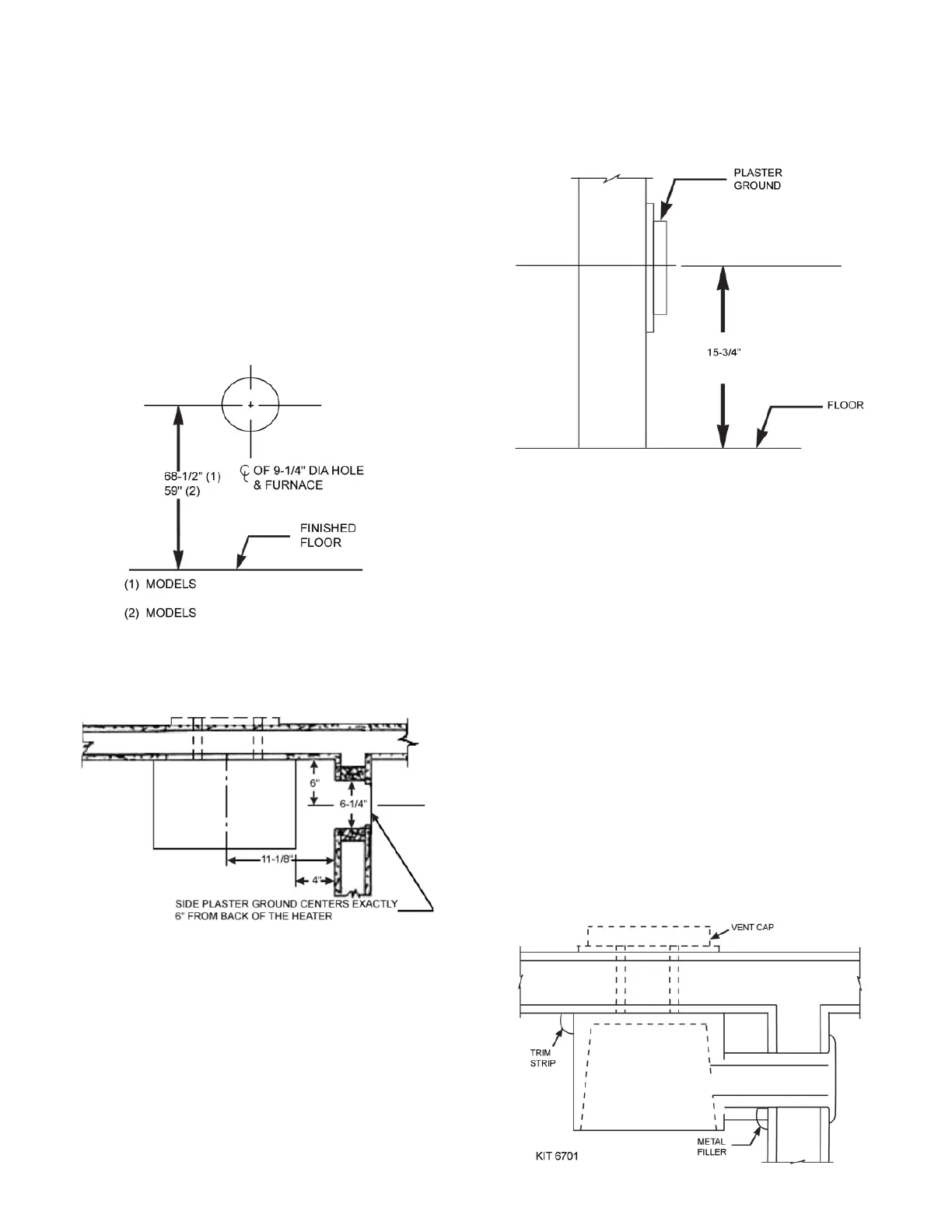
ROUGH-IN OPTIONAL SIDE OUTLET NO. 6701
Install plaster ground as shown in Figures. 12 & 13. Flanges
of plaster ground extend the thickness of normal plaster. If
“dry-wall” or other thin material, flanges must be trimmed
off flush with wall surface.
Follow measurements given carefully, and note that when
a side outlet is used, the furnace casing must be exactly
4 inches from surface of adjacent wall except minimum
clearance may be ¾-inch when optional 1-way Diffusing
Grille Kit 6704 is used.
FIGURE 11  WALL OPENING SURFACE MOUNT
FIGURE 12  PLASTER GROUND INSTALLATION
FIGURE 13  PLASTER GROUND INSTALLATION
MOUNTING OPTIONAL SIDE OUTLET GRILLE
KIT NO. 6701 Refer to Figure 14.
1. Before setting furnace into position, cut 5”x 7” rectan
gular opening in furnace outer casing where marked.
See Page 10, Figure 10.
2. Place the outer boot against casing with inner flanges
exactly on edges of cut hole, mark screw location, re
move boot and drill #33 holes for the sheet metal screws.
3. Remove the knockout plate and knockouts for screws
from the inner liner.
4. Secure 1”x 1” wood strip (not included with this kit) to
the wall next to the side outlet as a backup for metal
filler strips.
5. Fasten metal filler strips to the side of the furnace
casing with the front surface exactly opposite the front
of wood backup strip.
6. After the furnace is placed in position, place the outer
boot through the plaster ground tight against the
furnace casing. Then mark and cut off the outer end
flush with the wall surface.
7. Press the inner boot against liner, mark and cut it off
flush with the wall surface. Install the outer boot first,
then the inner boot, fastening through all holes with
the screws provided.
FIGURE 14  MOUNTING GRILLE KIT 6701
DVCF40XD
DVCF60XD

Table of Contents

Related product manuals