EasyManua.ls Logo

COZY DVCF402D - Instalacion del Montaje Empotrado

COZY DVCF402D
134 pages
Print Icon
To Next Page IconTo Next Page
To Next Page IconTo Next Page
To Previous Page IconTo Previous Page
To Previous Page IconTo Previous Page
Loading...
CALEFACTOR DE PARED CON CONTRAFLUJO Y CON VENTILACION DIERCTA 9
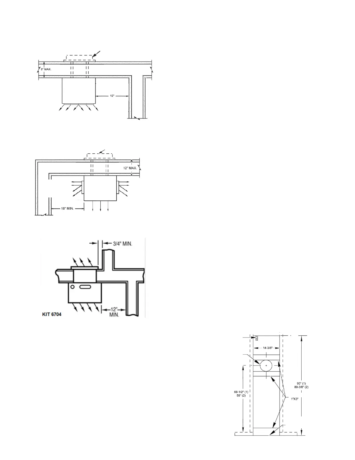
FIGURA 5
FIGURA 6
FIGURA 7
Instalacion del Montaje
Empotrado
ENCUENTRE LOS MONTANTES
Use un localizador de travesaños o pequeños clavos de
acabado. Repetidamente conducir y quitar un clavo en
la pared en el área de la viga hasta que se encuentra. A
continuación, busque el borde interior del montante.
Deje el clavo en esta ubicación.
El otro perno debe estar a unas 14 ½ pulgadas desde el
que se encuentra. Coloque los clavos de acabado en su
interior.
NOTA: Si los montantes no están a 16 ", vea “Cierre el
espacio de montantes”, abajo.
HAGA LA ABERTURA EN LA PARED
1. Coloque la abertura necesaria para ser cortada en
la pared interior (Fig. 8). Marque el centro del orificio
de ventilación en la pared. Usando una ventana, puerta
o esquina como referencia, mida para encontrar ventilación
en el muro exterior. Revise para asegurarse de espacios
libres, Figura 2, y Figura 4, 5, 6 y 7 adecuados.
2. Haga un agujero ¼ pulg a través del centro del
agujero de ventilación en la pared exterior para
marcar su posición.
3. Perfore adecuadamente desde el interior. Figura 8
4. Usando el agujero perforado a través de la pared
exterior como centro, corte un agujero de 9-¼ pulg
de diámetro para la ventilación. Puede ser mejor
trabajar desde fuera, sobre todo cuando a través de
ladrillos, piedra o cerámica. Figura 8
5. En el nuevo marco, instale los bloques como se
muestra en la figura 7 y ponga la base de yeso por el i
nterior de la abertura.
6. La altura vertical de la abertura que se muestra
es 3-pulgadas mayor que la altura del calefactor
para permitir espacio para la conexión de cableado
después de que se instala el calefactor.
NOTA: Medidas verticales desde el suelo acabado. Figura 7
CIERRE EL ESPACIO DE MONTANTES (Si es necesario)
Si los montantes no están a centros de 16 ", corte el agujero
para el calefactor cerca de un tacoy el marco existente
en el otro lado usando un 2 "x 4 " y separadores según se
requiera. Como se muestra en la Figura 9.
Si la distancia desde la parte superior del recorte de
la placa de pared de techo es más de 18 pulgadas, se
recomienda cerrar.
Clave un 2 "x 4 " lo suficiente para ir entre los postes de
madera en la parte superior de la apertura para cerrar
el espacio montante.
FIGURA 8  ABERTURA EN LA PARED PARA
MONTAJE EMPOTRADO
MIN 12 “ SI SE USA EL KIT OPCIONAL
6703 SE USA LA REJILLA FRONTAL
DE DIFUSIÓN EN DOS SENTIDOS
TAPA DE VENTILACIÓN
TAPA DE VENTILACIÓN
SALIDA
OPCIONAL
6702
SALIDA
OPCIONAL
6702
REJILLA TRESERA OPCIONAL
DE UN SENTIDO
REJILLA FRONTAL
OPCIONAL DE
UN SENTIDO
CONDUCTO
ELÉCTRIO
AGUJERO DE
DIAMETRO 9 14
" A TRAVES DE
MURO EXTERIOR
BLOQUES
SUELO
ACABADO
MODELOS 1:
DVCF60XD
MODELOS 2:
DVCF40XD

Table of Contents

Related product manuals