EasyManua.ls Logo

COZY DVCF402D - Page 44

COZY DVCF402D
134 pages
Print Icon
To Next Page IconTo Next Page
To Next Page IconTo Next Page
To Previous Page IconTo Previous Page
To Previous Page IconTo Previous Page
Loading...
8 AÉROTHERME MURAL À GAZ À ÉVACUATION DIRECTE À CONTRE-COURANT
INSTALLATION DE VOTRE FOURNAISE
FIGURE2  DÉGAGEMENTS MINIMUMS
11. Assurez-vous de prévoir un dégagement et un accès pour
entretien adéquats. L’avant de la fournaise doit faire face à
la salle ouverte.
12. Choisissez un emplacement situé à environ 1,5m (5pi)
au-dessus du sol sur un mur intérieur pour le thermostat
(facultatif). Le câble du thermostat fourni avec votre
fournaise fait 6m (20pi) de long, ce qui devrait suffire
pour l’acheminer à travers le grenier d'une maison à
étage unique, de sorte que le thermostat puisse se
trouver à une distance maximale de 5m (16pi) de la
fournaise en ligne droite, ou à environ 2,5m (8pi) de la
fournaise si le câble passe sous le plancher. Utilisez un
câble de calibre plus important si un câble de plus de
6m (20pi) est requis. Le thermostat devrait détecter la
température ambiante moyenne.
ÉVITEZ CE QUI SUIT:
POINTS CHAUDS:
Tuyaux ou conduits dissimulés
Foyers
Registres
Téléviseurs
Radios
Lampes
Lumière directe du soleil
Cuisine
POINTS FROIDS:
Tuyaux ou conduits dissimulés
Cages d’escalier – tirages
Portes – tirages
Pièces non chauffées de l’autre
côté du mur
POINTS MORTS
Derrière les portes
Coins et alcôves
13. Après avoir choisi un emplacement qui répond aux
exigences, inspectez le mur, le plancher et les zones
extérieurs. Assurez-vous qu’il n’existe aucun tuyau,
câblage ou autre susceptibles de nuire à l’installation
de la fournaise, de l’évent ou du thermostat. Au besoin,
déplacez-les ou choisissez un nouvel emplacement.
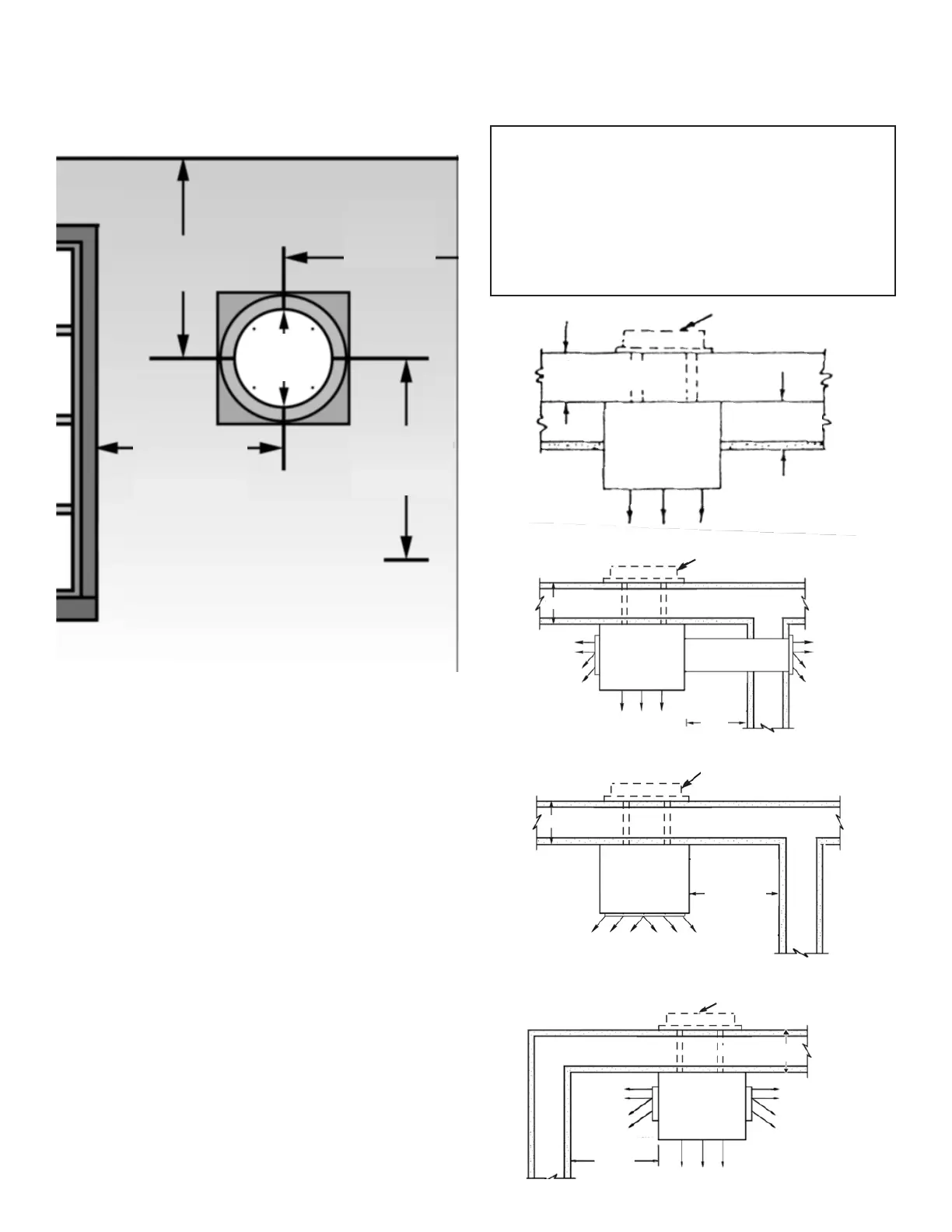
FIGURE3  DÉGAGEMENT D'INSTALLATION ENCASTRÉE
NOTE RELATIVE AU DÉGAGEMENT DES INSTALLATIONS
ENCASTRÉES: Une partie de la fournaise encastrée dans
un mur d’une cavité maximale de 25,4cm (10po) peut
comprendre un dégagement de (0) zéropo par rapport
aux matériaux combustibles. (Voir figure3). Tous les autres
dégagements de la portion non encastrée doivent être
respectés. Un mur extérieur de 2cm (3/4pouce) à 13cm
(5po) nécessite la trousse d'accessoires de bague pour mur
mince9307.
46 cm (18 po)
minimum sous tout
surplomb
Dégagement
latéral
minimal de
46 cm (18 po)
46 cm (18 po)
minimum au-
dessus de toute
obstruction
46 cm (18 po)
min. de tout mur,
obstruction ou
fenêtre
Diamètre
de 23,5 cm
(9 1⁄4 po)
FIGURE4
CAPUCHON D’ÉVENT
CAPUCHON D’ÉVENT
23 CM 9 PO MAX.
PRISE DE
COURANT 6702
EN OPTION
PRISE DE
COURANT 6701
EN OPTION
10 CM
4 PO
MIN.
30,5 CM 12 PO MAX.
2 CM 34 PO MIN.
ENCASTREMENT
MAXIMAL DE
25,4 CM 10 PO
FIGURE5
FIGURE6
CAPUCHON D’ÉVENT
23 CM 9 PO MAX.
30,5 CM 12 PO MIN. AVEC 6703 EN OPTION
UTILISATION DE GRILLE DE DIFFUSION
AVANT DEUX SENS
30,5 CM 12 PO
30,5 CM 12 PO MAX.
46 CM
18 PO
MIN.
PRISE DE
COURANT 6702
EN OPTION
PRISE DE
COURANT
6702 EN
OPTION
CAPUCHON D’ÉVENT

Table of Contents

Related product manuals