EasyManua.ls Logo

COZY DVCF402D - Page 51

COZY DVCF402D
134 pages
Print Icon
To Next Page IconTo Next Page
To Next Page IconTo Next Page
To Previous Page IconTo Previous Page
To Previous Page IconTo Previous Page
Loading...
AÉROTHERME MURAL À GAZ À ÉVACUATION DIRECTE À CONTRE-COURANT 15
support de l’élément chauffant supérieur.
d. Déposez le brûleur et l'ensemble de commande de la
fournaise.
REMARQUE: Fixez les tubes d’évacuation AVANT de monter
la fournaise. Voir les pages13 et 14
2.
Si la fournaise est encastrée dans le mur, enlevez tout débris.
3. Assurez-vous de couper l’alimentation en gaz au niveau
du compteur.
4. Avant de mettre la fournaise en place, retirez l’embase
de la tuyauterie de gaz si nécessaire pour localiser la
fournaise.
5. Une fois les tubes d’évacuation installés, mettez
délicatement la fournaise en place, en vous assurant de
ne pas plier les tubes d’évacuation.
FIXATION DE LA PARTIE INFÉRIEURE DE LA FOURNAISE
(MONTAGE EN SURFACE ET ENCASTRÉ)
REMARQUE: Les fixations ne sont pas fournies en raison des
différentes exigences des divers types de construction murale.
Fixez la fournaise au plancher à travers les trous prévus à
cet effet dans la partie inférieure de la fournaise. Si votre
revêtement de sol est en béton, utilisez une autre méthode
de fixation. Voir page15, figure21
Si le brûleur et l’ensemble de commande ont été déposés,
remplacez-les en suivant les étapes 1a à 1d dans l’ordre
inverse.
IMPORTANT: Lors de la repose du brûleur et de
l’ensemble de commande, assurez-vous que les
broches «B» pénètrent toutes dans les fentes du
support de l’élément chauffant supérieur. Pour éviter
d’endommager le câblage, veillez à ne pas le pincer entre
les composants de la fournaise et à les éloigner de la
surface du bac du brûleur.
FIXATION DE LA PARTIE SUPÉRIEURE DE LA FOURNAISE
(MONTAGE EN SURFACE)
Fixez la partie supérieure de la fournaise au mur à l'aide
de deux (2)ancres métalliques (emballées dans un sac en
plastique avec le thermostat) en les plaçant sur la bride arrière
de la partie supérieure de la fournaise, puis en les vissant au
mur. Reportez-vous à la figure21.
FIXATION DE LA PARTIE SUPÉRIEURE DE LA FOURNAISE
(MONTAGE ENCASTRÉ)
Pour fixer la partie supérieure de la fournaise, percez deux
(2)trous à travers les brides latérales de la partie en question
et fixez-la à l’aide de deux (2)vis ou clous dans les montants
muraux. Reportez-vous à la figure21.
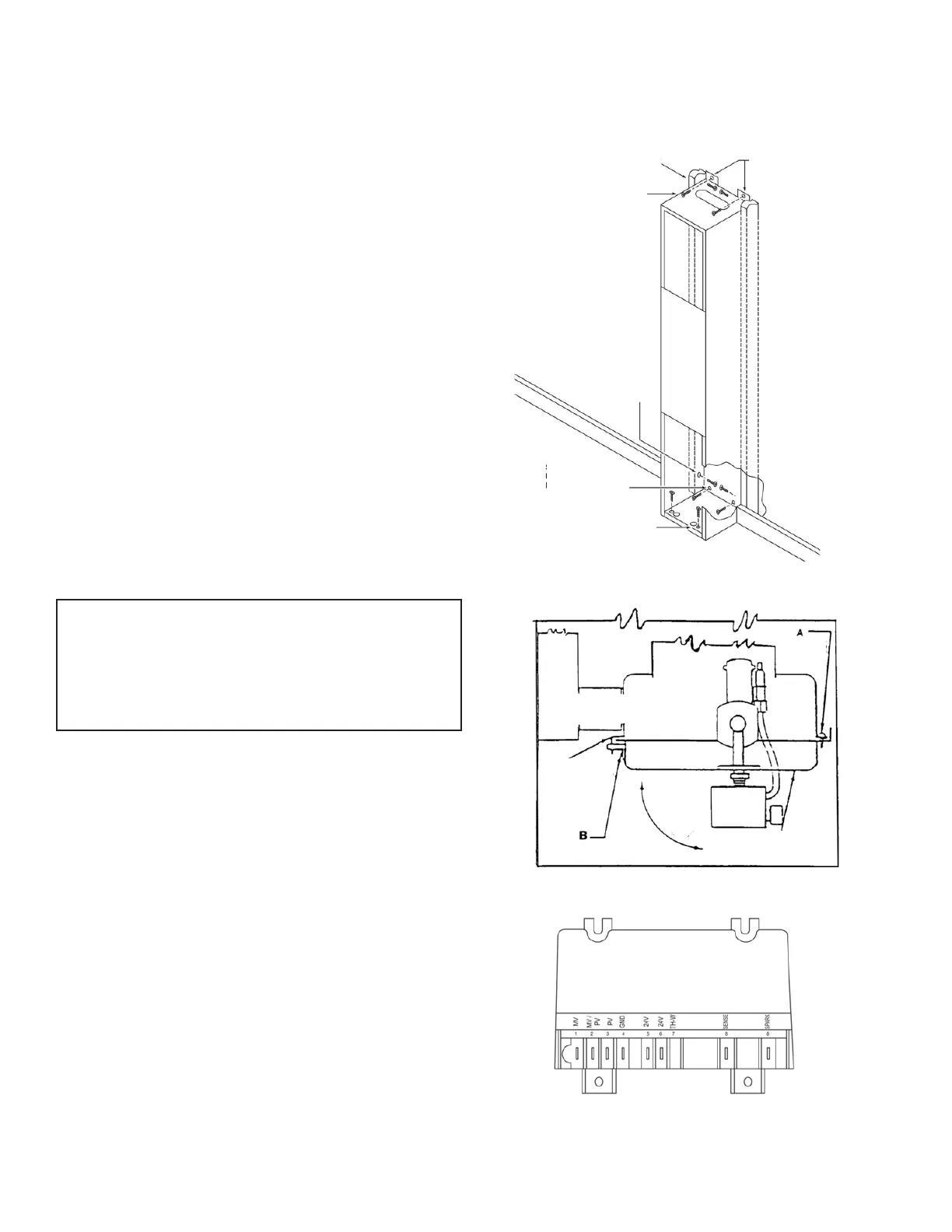
FIGURE21  MONTAGE DE LA FOURNAISE
FIGURE22  BAC DE BRÛLEUR
FIGURE23  COMMANDE D'ALLUMAGE
MISE EN GARDE: Veillez à ne pas endommager les
composants ou le câblage de la fournaise lors du perçage de
trous.
ANCRES MÉTALLIQUES
FIXATION INFÉRIEURE DU
PLANCHER EN BOIS
FIXATION INFÉRIEURE POUR
MONTAGE EN SURFACE EN
CAS DE PLANCHER EN BÉTON
REMARQUE : LES COMPOSANTS
INTERNES ET
L’EXTENSION BLEUE
NE SONT PAS
ILLUSTRÉS POUR
PLUS DE CLARTÉ
FIXATION INFÉRIEURE
POUR MONTAGE
ENCASTRÉ EN CAS
DE PLANCHERS
EN BÉTON
FIXATION
SUPÉRIEURE EN
SURFACE
FIXATION SUPÉRIEURE
ENCASTRÉE
NOTE: DO NOT USE BOTTOM DOOR HOLES FOR MOUNTING
VIS
BAC DU BRÛLEUR
BROCHES
FAIRE
PIVOTER
HGT.
SUPÉRIEUR
SUPPORT
DES
ÉLÉMENTS

Table of Contents

Related product manuals