EasyManua.ls Logo

COZY DVCF402D - Page 83

COZY DVCF402D
134 pages
Print Icon
To Next Page IconTo Next Page
To Next Page IconTo Next Page
To Previous Page IconTo Previous Page
To Previous Page IconTo Previous Page
Loading...
CALEFACTOR DE PARED CON CONTRAFLUJO Y CON VENTILACION DIERCTA 11
2. Haga un agujero de ¼” a través del centro del agujero
hacia el exterior. Corte el agujero de 9 ¼ " a través de la
pared interior. Usando el agujero de ¼” como centro, corte
el agujero correspondiente en la pared exterior. Puede ser
mejor trabajar desde el exterior, sobre todo cuando es a
través de ladrillos, piedra o cerámica.
ABERTURAS PARA EL SUMINISTRO DE GAS Y
ELÉCTRICO
Los agujeros deben ser perforados para la línea de gas y
eléctricas. Los agujeros deben estar ubicados a cada lado
del calefactor, como se muestra en la Figura 10. Perfore
un orificio de 1 ½ pulgadas en el suelo o la pared para la
línea de gas.
La línea de gas se puede ejecutar en este momento
o después de montar el calefactor, véase la sección:
Suministro de gas y tuberías, página 17. Marque el techo
o pared para que coincida con las aberturas del calefactor
y perfore un agujero de 1 " para la fuente de alimentación
y un agujero de ½ " para el cable del termostato. Lleve el
suministro eléctrico y cables de tierra a la abertura. Deje
suficiente longitud para conectar en el la caja de conexión
después de instalar el calefactor. Vea la sección “Cableado
eléctrico”, Página 25.
SALIDA LATERAL OPCIONAL N. 6701
Ponga la base de yeso como se muestra en las Figuras
12 y 13. Las plantilla de yeso extienden el espesor de yeso
normal. Si es un muro seco u otro delgado, los rebordes
deben ser recortados a ras con la superficie de la pared.
Siga cuidadosamente las medidas dadas, y tenga
en cuenta que cuando se utiliza una salida lateral, el
revestimiento de la calefacción debe estar a 4 ” de la
superficie de la pared adyacente, a excepción la
distancia mínima puede ser de ¾ " cuando se utiliza
el kit de rejilla de difusión opcional 6704.
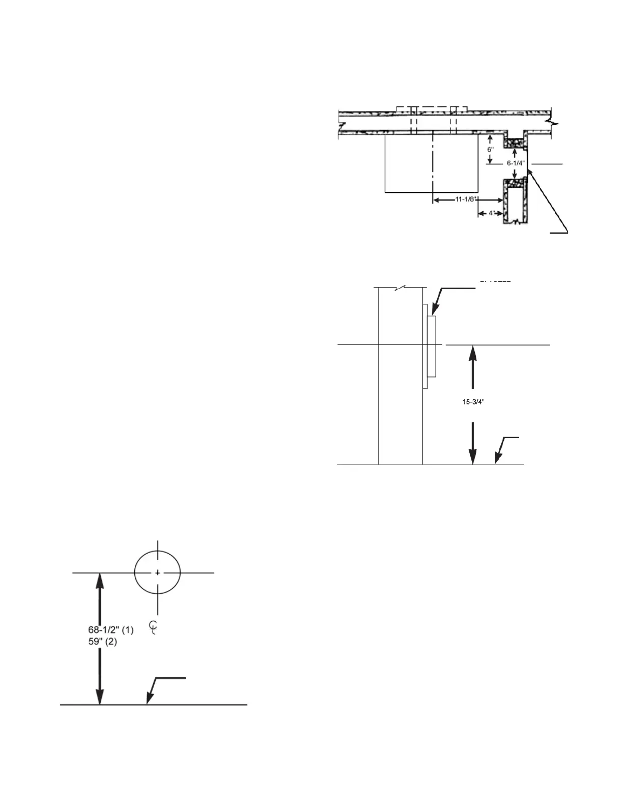
FIGURA 11  ABERTURA DE PARED
MONTAJE SUPERFICIAL
FIGURA 12  INSTALACION DE LA BASE DE YESO
FIGURA 13  INSTALACION DE LA BASE DE YESO
MONTAJE DEL KIT DE REJILLA LATERAL OPCIONAL N.
6701 En referencia a la Fig. 14.
1. Antes de poner el aparato en posición, corte 5” x 7” de
abertura rectangular en la carcasa exterior del
calefactor donde se marca. Vea la página 10, fig. 10.
2. Coloque la junta trípode contra la carcasa con los
rebajes interiores en los bordes de agujero de corte,
marque la ubicación del tornillo, quite la junta y
perfore agujeros del 33 para los tornillos de metal
de hoja.
3. Retire la placa de apoyo y troqueles para los tornillos
de la cubierta interior.
4. Asegure una tira de madera 1 “x 1”(no incluido en este
kit) a la pared al lado de la salida lateral como
seguridad para las tiras de relleno de metal.
5. Fije las tiras de relleno de metal hacia el lado
de la carcasa del calefactor con la superficie frontal
exactamente enfrente de la parte delantera de la
tira de madera de seguridad.
6. Después de que el calefactor se coloca en posición,
coloque la junta trípode a través de la plantilla de yeso
apretada contra la carcasa del calefactor. A
continuación, marque y corte el extremo exterior a
ras con la superficie de la pared.
MODELOS 1:
DVCF60XD
MODELOS 2:
DVCF40XD
PERFORACIÓN DE 9 14 “
DIA Y CALEFACTOR
SUELO
ACABADO
BASE DE YESO LATERAL EXACTAMENTE A 6 "
DE LA PARDE POSTERIOR DEL CALEFACTOR
BASE DE YESO
SUELO

Table of Contents

Related product manuals