EasyManua.ls Logo

Crown Boiler PHNTM080 - Page 19

Crown Boiler PHNTM080
146 pages
Print Icon
To Next Page IconTo Next Page
To Next Page IconTo Next Page
To Previous Page IconTo Previous Page
To Previous Page IconTo Previous Page
Loading...
17
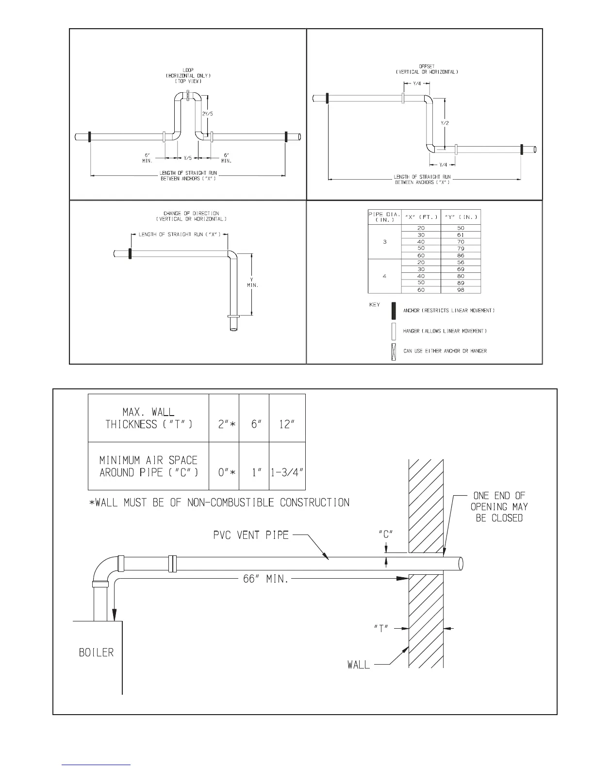
FIGURE 7.3: EXPANSION LOOPS FOR CPVC/PVC PIPE
FIGURE 7.3bFIGURE 7.3a
FIGURE 7.3c
FIGURE 7.4: WALL PENETRATION CLEARANCES FOR PVC VENT PIPE