EasyManua.ls Logo

Culligan Smart Controller HE DF 12 - Page 25

Culligan Smart Controller HE DF 12
71 pages
Print Icon
To Next Page IconTo Next Page
To Next Page IconTo Next Page
To Previous Page IconTo Previous Page
To Previous Page IconTo Previous Page
Loading...
Installation 21
Cat. No. 01024514
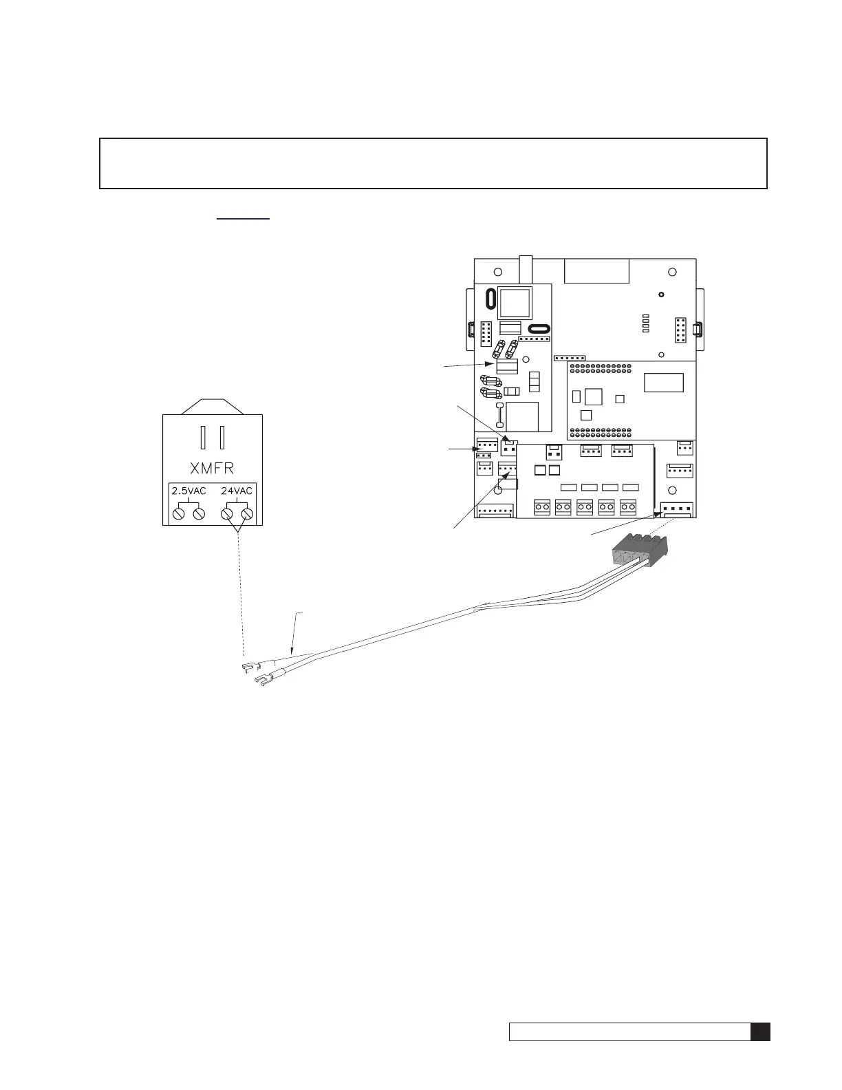
NOTE The wire connectors must be connected to the circuit board properly. The wires must exit the plug-in
connector opposite of the raised white base of the circuit board connector. Failure to properly connect
any of the connectors will result in a malfunction of the circuit board operation.
6. Connect the other end of the power cord, with the spade terminals, to the two 24 Volt terminals on the trans-
former. See Figure 25.
7. Pull any excess cable wire out of the enclosure and route the wiring inside the enclosure to avoid interference.
24VAC
on TRANSFORMER
Power to circuit
board 24V
PHONE
Power Connector
Flow Meter Connector
Position Sensor Connector
Motor Connector
RF Board
Modem Board
Auxiliary Board
Figure 25. 24 Volt power connection.
8. Connect the power supply cord to the circuit board.
Returning the Circuit Board into the Enclosure
1. Angle the circuit board opposite the front enclosure and into the support bracket on the side of the enclosure.
2. Gently push down and rotate forward until you hear a click (the pins on the bottom of the enclosure being insert-
ed into the circuit board).
3. Check to make sure the circuit board is rigidly fastened.

Related product manuals