EasyManua.ls Logo

Culligan Smart Controller HE DF 12 - Page 33

Culligan Smart Controller HE DF 12
71 pages
Print Icon
To Next Page IconTo Next Page
To Next Page IconTo Next Page
To Previous Page IconTo Previous Page
To Previous Page IconTo Previous Page
Loading...
Installing Accessories 29
Cat. No. 01024514
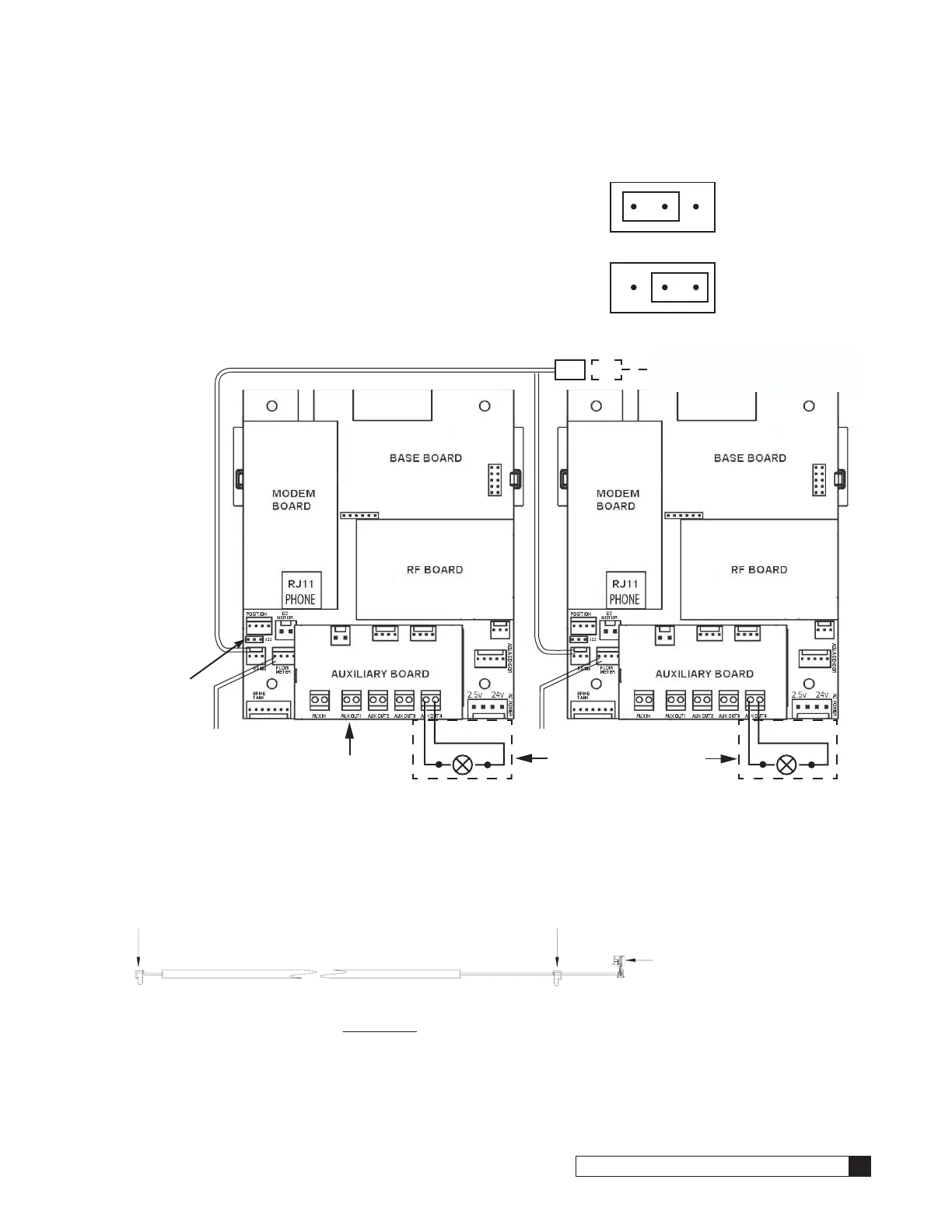
IMPORTANT—Setting the Jumpers for Progressive Flow
For progressive flow to operate properly, the first and last units must have
the jumpers set to pins 1 and 2 on terminal J22 (see Figure 34 at right).
All middle units should have the jumpers on pins 2 and 3. The diagrams
below (Figure 35 and Figure 36) show duplex connections. Repeat the
connections on any additional systems.
To Additional Units
(if necessary)
Communication Cable 01016327
Jumper
Location
Flow Meter Flow Meter
Unit 1 Unit 2
Wiring for EXTERNALLY
BLOCKED Progressive
Flow Solenoids
NOTE: These solenoids are NOT used for
internally blocked progressive flow
An auxiliary board (P/N 01020748) is
required for EXTERNALLY BLOCKED
progressive flow systems ONLY. One
auxiliary board per valve—must be
purchased separately.
Figure 35. Duplex connections.
To
RS 485 Comm Port
on GBE Circuit Board, #1
CABLE 01024360
To RS 485 Comm Port
on GBE Circuit Board, #2
PARALLEL
Additional communication cable
connections are used when there
are three or more controls. Connect
end of second (01024360) cable
to this connector and other end of
cable to RS 485 Comm Port on third
GBE Circuit Board.
Figure 36. Parallel cable for Smart Controller.
Jumper location for
first and last units
(end units).
Jumper location for
middle units.
1 2 3
Figure 34.

Related product manuals