EasyManua.ls Logo

Culligan Smart Controller HE DF 12 - Page 35

Culligan Smart Controller HE DF 12
71 pages
Print Icon
To Next Page IconTo Next Page
To Next Page IconTo Next Page
To Previous Page IconTo Previous Page
To Previous Page IconTo Previous Page
Loading...
Installing Accessories 31
Cat. No. 01024514
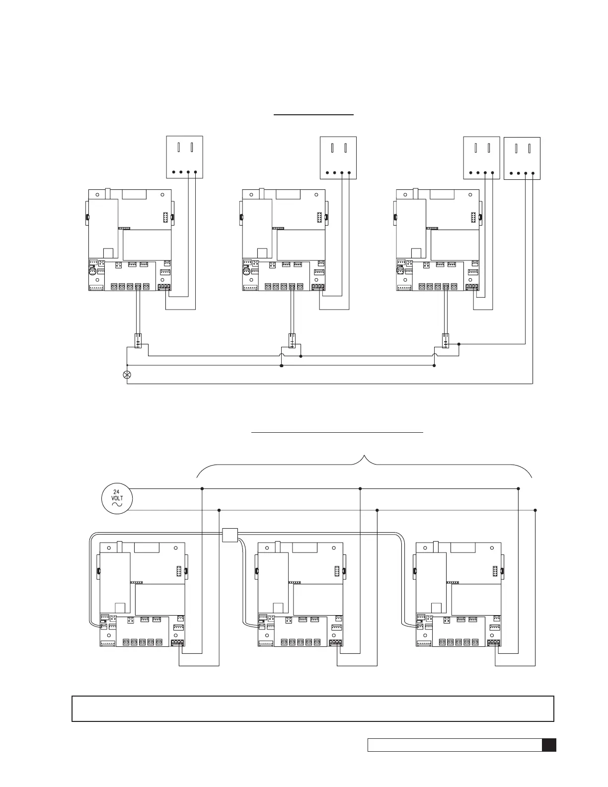
ISOLATION
RELAY
ISOLATION
RELAY
ISOLATION
RELAY
SOLENOID
VALVE
MODEM
BOARD
MODEM
BOARD
MODEM
BOARD
BASE BOARD
BASE BOARD BASE BOARD
RF BOARD RF BOARD RF BOARD
AUXILARY BOARD
AUXILARY BOARD AUXILARY BOARD
RJ11
PHONE
RJ11
PHONE
RJ11
PHONE
FOUR INDIVIDUAL TRANSFORMERS
NO NEED TO MATCH POLARITY
CORRECT
Figure 38. Use of isolation relays to allow multiple GBE boards to control a shared solenoid valve.
P/N 01016327 COMMUNICATION CABLE
RJ11
PHONE
MODEM
BOARD
BASE BOARD
RF BOARD
AUXILARY BOARD
RF BOARD
RF BOARD
MODEM
BOARD
MODEM
BOARD
BASE BOARD BASE BOARD
AUXILARY BOARD AUXILARY BOARD
RJ11
PHONE
RJ11
PHONE
POLARITY IS THE SAME
ON ALL UNITS
NOT RECOMMENDED
Figure 39. Not recommended connections for multiple GBE boards to shared 24VAC.
NOTE This configuration, while correct, should be avoided, since any single polarity change will cause imme-
diate failure of GBE boards and/or transformers.

Related product manuals