EasyManua.ls Logo

Culligan Smart Controller HE DF 12 - Page 36

Culligan Smart Controller HE DF 12
71 pages
Print Icon
To Next Page IconTo Next Page
To Next Page IconTo Next Page
To Previous Page IconTo Previous Page
To Previous Page IconTo Previous Page
Loading...
32 Culligan® High Efficiency 1.5 Water Filter
32 Cat. No. 01024514
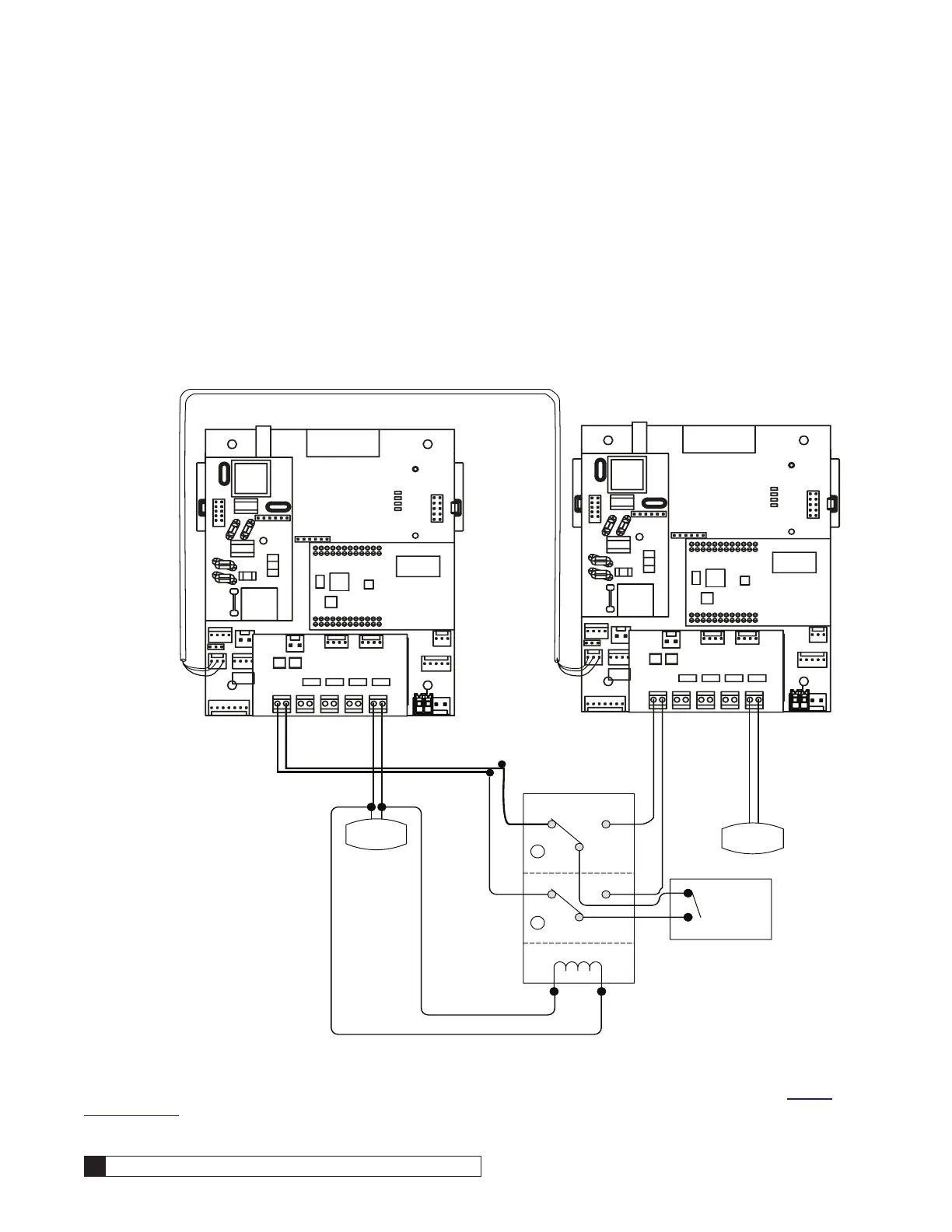
Auxiliary Inputs
One auxiliary input is provided for optional signal devices such as remote push buttons, differential pressure switches,
hardness monitors, turbid meters, etc. for the purpose of receiving a regeneration signal. The Aux Input can also be con-
figured as an external alarm trigger.
To provide a regeneration signal, select an UNPOWERED contact within the remote device that will close when regener-
ation is desired. The duration of the switch closure can be as low as 0 seconds; 6 seconds is the recommended minimum
and default but can be as long as 999 seconds. The contact must automatically open following the start of a regeneration
sequence. Connect this contact to the Aux In terminal shown in Figure 40. The illustration below is an example of how to
use an external source (with duplex alternating current) to initiate regeneration.
To use as external alarm trigger, select an UNPOWERED contact within the remote device that will close when the alarm
condition exists. The duration of the switch closure can be as low as 0 seconds; 6 seconds is the recommended minimum
and default but can be as long as 999 seconds.
NC NO
1
POLE
NC NO
2
POLE
C
C
SOL
Regen Signal
EXTERNAL
SOURCE
24V DPDT
RELAY
DUPLEX ALTERNATING WITH EXTERNAL SOURCE
SOL
Communication Cable
01016327
PHONE
24v
2.5v
PHONE
24v
2.5v
Figure 40. Auxiliary input example: duplex alternating with external source.
Refer to GBE Programming for Commercial Softeners and Filters (except for HFxN) Manual (P/N 01027295) for program-
ming information. This manual can be obtained from your local dealer, C-Port (www.cport.culligan.com) under the Techni-
cal Service Tab or on the Service Tech App.

Related product manuals