EasyManua.ls Logo

Culligan Smart Controller HE DF 12 - Page 38

Culligan Smart Controller HE DF 12
71 pages
Print Icon
To Next Page IconTo Next Page
To Next Page IconTo Next Page
To Previous Page IconTo Previous Page
To Previous Page IconTo Previous Page
Loading...
34 Culligan® High Efficiency 1.5 Water Filter
34 Cat. No. 01024514
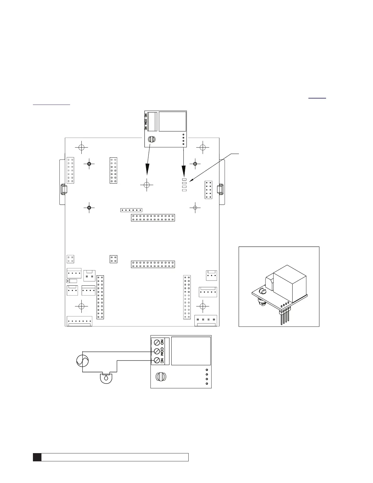
Auxiliary Output 5 Relay Board (P/N 01022238)
The GBE board offers support for the Auxiliary Output 5 Relay board (P/N 01022238). To use the relay board, install it
onto the back of the GBE board.
Refer to GBE Programming for Commercial Softeners and Filters (except for HFxN) Manual (P/N 01027295) for program-
ming information. This manual can be obtained from your local dealer, C-Port (www.cport.culligan.com) under the Techni-
cal Service Tab or on the Service Tech App.
Figure 44. Example of customer wiring to the GBE Alarm Signal Output.
This mode of operation occurs when the relay board is plugged into the GBE board chlorinator socket. When Error Status
is selected on the display, this relay is energized holding the normally closed contact open, and when the GBE board has
power AND there are no errors present the relay is energized. (“Problem Found” is not showing on the Home screen).
The relay is in the de-energized state when the GBE is either powered OFF or when there is an error present on the GBE
board.
On a multiple-tank softener system, such as a twin-alternating, or progressive flow network, the Alarm Signal Output Relay
board must be installed on each Smart Controller that the user wants monitored for errors.
In this example, the circuit is wired to the
Common (Com) Terminal and Normally Closed
(NC) Terminal, which means that when the light
is ON an error has occurred,and when the light
is OFF the circuit is operating normally.
RELAY
LAMP OR BUZZER
24VAC SUPPLY
AUXILIARY OUTPUT 5
RELAY BOARD
BACK OF GBE BOARD
PLUG IN HERE
RELAY BOARD

Related product manuals