EasyManua.ls Logo

Daikin BPMKS048A2U - Wiring Diagrams; Outdoor Unit

Daikin BPMKS048A2U
250 pages
Print Icon
To Next Page IconTo Next Page
To Next Page IconTo Next Page
To Previous Page IconTo Previous Page
To Previous Page IconTo Previous Page
Loading...
SiUS181305E Wiring Diagrams
Appendix 234
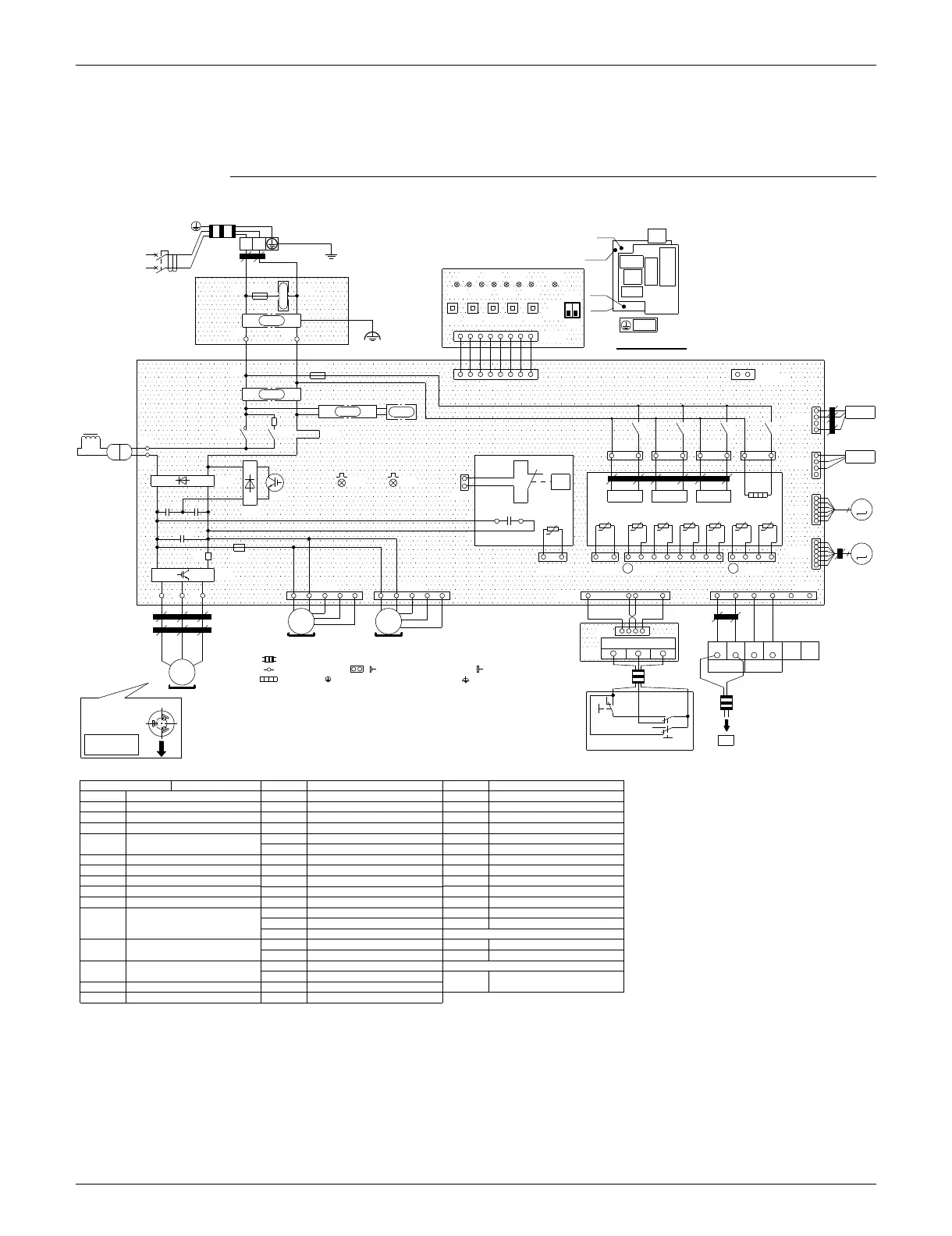
2. Wiring Diagrams
2.1 Outdoor Unit
RMXS48LVJU
C: 3D080424
HBP
L1R
X37A
A2P
A3P
C4
H2P H4P
H8P
H6P
A4P
HAP
X2M
H5PH1P H3P H7P
DS1
ON
OFF
BS4 BS5BS2 BS3BS1
X1M
21
X205A
A2P
EL
,
COMPO
,
BOX
F4U
NC
LC
X37A
NOTE
)
4
X5A
Z4C
Z3F
N=1
S1NPH
X17A
R1
L1R
K1R
K4R
K3R
K2R
K1M
BLU
K5R
WHT
LD
X25A X27AX26A X28A
S1NPL
+
X18A
LE
X2A
S1PH
WHT
V2R
Z3C
P
<
HAP HBP
E1HC
-
+
N=1
Y1E
Y1S Y3SY2S
V1T
X32A
-
6
C3
C2
++
M
+
X21A
FIN
C4
V3R
P
ORG
R5TR4T R7TR3T R6TR1T R2T
TH
+
C1
GRY
Y3E
N
6
M
X22A
R2
F6U
-
+
Z7C
X13A
1
X12A
1
X11A
X111A
V1R
N=1
X107AX106A
X81A
X66A
A1P
Z6C
Z5C
WUV
N=1
M1F
M2F
N=4
X1A
BRN
ORG
RED
YLW
X2M
Z2C
C/H SELECTOR
WHT
RED BLU
N=6
F1 F2F2F1
X1M
BCA
U
W
V
TO OUT/D UNIT
TO BP UNIT
A4P
M1C
HEAT
W
AIR CONTROL
S2S
NOTE
)
8
U
COOL
S1S
V
FAN
COOL/HEAT SELECTOR
(
FRONT
)
POWER SUPPLY
~208/230V 60Hz
A1P
(
BACK
)
MS
3~
MS
3~
MS
3~
THE POSITION OF
COMPRESSOR
TERMINAL
THE ENTRANCE
OF WIRE
BP UNIT
(
F1
) (
F2
)
NOTES
)
1. THIS WIRING DIAGRAM IS APPLIED ONLY TO THE OUTDOOR UNIT.
2. : FIELD WIRING.
3. : TERMINAL STRIP ,
: MOVABLE CONNECTOR : FIXED CONNECTOR
: TERMINAL : PROTECTIVE GROUND
(
SCREW
)
: NOISELESS GROUND
4. WHEN USING THE OPTION ADAPTOR
,
REFER TO THE INSTALLATION MANUAL.
5. REFER TO OPERATION CAUTION LABEL
(
ON BACK OF FRONT PLATE
)
HOW TO USE BS1~BS5 AND DS1 · 2 SWITCH.
6. WHEN OPERATING
,
DON'T SHORT CIRCUIT FOR PROTECTION DEVICE.
(
S1PH
)
7.
COLORS BLU : BLUE BRN : BROWN GRN : GREEN RED : RED WHT : WHITE YLW : YELLOW ORG : ORANGE.
8. REFER TO THE INSTALLATION MANUAL
,
FOR CONNECTION WIRING TO
BP-OUTDOOR TRANSMISSION F1 · F2.
Y1S
Y2S
Y3S
Z1C~7C
Z1F~4F
S1S
S2S
X37A
NOTE
)
4
SOLENOID VALVE
(
4 WAY VALVE
)
SOLENOID VALVE
(
HOT GAS
)
SOLENOID VALVE
(
U/L CIRCUIT
)
NOISE FILTER
(
FERRITE CORE
)
NOISE FILTER
C/H SELECTOR
SELECTOR SWITCH
(
FAN/COOL · HEAT
)
SELECTOR SWITCH
(
COOL/HEAT
)
CONNECTOR OF OPTION ADAPTOR
CONNECTOR
(
OPTION ADAPTOR POWER SUPPLY
)
K2R
K3R
K4R
K5R
L1R
M1C
M1F
M2F
PS
R1
R2
R1T
R2T
R3T
R4T
R5T
R6T
R7T
FINTH
S1NPH
S1NPL
MAGNETIC RELAY
(
Y2S
)
MAGNETIC RELAY
(
Y3S
)
MAGNETIC RELAY
(
E1HC
)
MAGNETIC RELAY
REACTOR
MOTOR
(
COMPRESSOR
)
MOTOR
(
FAN
) (
UPPER
)
MOTOR
(
FAN
) (
LOWER
)
POWER SUPPLY
RESISTOR
RESISTOR
THERMISTOR
(
AIR
)
THERMISTOR
(
M1C DISCHARGE
)
THERMISTOR
(
SUCTION1
)
THERMISTOR
(
COIL
)
THERMISTOR
(
SUCTION2
)
THERMISTOR
(
SUBCOOL
)
THERMISTOR
(
LIQUID
)
THERMISTOR
(
FIN
)
PRESSURE SENSOR
(
HIGH
)
PRESSURE SENSOR
(
LOW
)
S1PH
V1R
V2R
,
V3R
V1T
X1M
X2M
X1M
Y1E
Y3E
PRESSURE SWITCH
(
HIGH
)
POWER MODULE
DIODE MODULE
IGBT
TERMINAL STRIP
(
POWER SUPPLY
)
TERMINAL STRIP
(
CONTROL
)
TERMINAL STRIP
(
C/H SELECTOR
) (
A4P
)
ELECTRONIC EXPANSION VALVE
(
MAIN
)
ELECTRONIC EXPANSION VALVE
(
SUB COOL
)
L1-RED L2-BLU
A1P
A2P
A3P
A4P
BS1~5
C1~4
DS1
E1HC
F1U
,
F4U
F6U
H1P~8P
HAP
HBP
K1M
K1R
PRINTED CIRCUIT BOARD
(
MAIN
)
PRINTED CIRCUIT BOARD
(
SERVICE
)
PRINTED CIRCUIT BOARD
(
NOISE FILTER
)
PRINTED CIRCUIT BOARD
(
C/H SELECTOR
)
PUSH BUTTON SWITCH
(
MODE
,
SET
,
RETURN
,
TEST
,
RESET
)
CAPACITOR
DIP SWITCH
CRANKCASE HEATER
FUSE
(
T 6.3A/250V
)
FUSE
(
T 5.0A/250V
)
PILOT LAMP
(
SERVICE MONITOR-ORANGE
)
H2P: PREPARE
,
TEST------------FLICKERING
MALFUNCTION DETECTION--LIGHT UP
OPERATION PILOT LAMP
(
SERVICE MONITOR-GREEN
) (
A1P
)
INV. PILOT LAMP
(
SERVICE MONITOR-GREEN
) (
A1P
)
MAGNETIC CONTACTOR
MAGNETIC RELAY
(
Y1S
)
GRN/YLW
L2L1X1M
L2
N=1Z1C
L1
BLURED
NA
F1U
LA
GRN
E
A3P
Z1F
NBLB
BLURED
Z
2
F
Z4F
PS

Table of Contents

Related product manuals