EasyManua.ls Logo

Daikin ERRQ 016AAY1 - Wiring Diagrams; Outdoor Unit

Daikin ERRQ 016AAY1
262 pages
Print Icon
To Next Page IconTo Next Page
To Next Page IconTo Next Page
To Previous Page IconTo Previous Page
To Previous Page IconTo Previous Page
Loading...
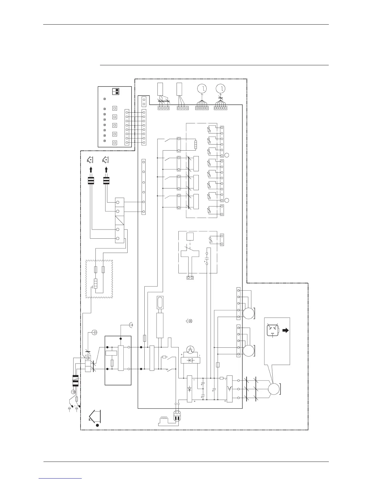
Wiring Diagrams ESIE09-08
216 Appendix
2. Wiring Diagrams
2.1 Outdoor Unit
ERRQ + ERSQ 011/014/016 V1
outdoor
L
L
A3P
GRN
E7H
F7U
F8U
BPH
X2M
A2P
H1P H3P H5P H7P
BS1 BS2 BS3 BS4 BS5
X205A
H4PH2P H6P H8P
DS1
12
ON
OFF
INDOOR
F1, F2
INDOOR BPH
F1
BRN RED
F2
F1U
Z1F
RED BLU
GRN/YLW
ONLY FOR ERRQ* OR OPTION EKBPHTH16A
N
N
Q1DI
X1M
Z1C
N=1
LA
LB
LC
R1
R2
UVW
U
U
V
V
W
W
MS
POSITION OF
COMPRESSOR
TERMINAL
WIRE ENTRANCE
3~
MS
3~
MS
3~
LD
LE
C2 C3
C1
K1M
V2R
V1T
X32A
S1PH
FINTH
X111A X11A
11
R1T R2T R3T R4T R5T R6T R7T R8T
X12A X13A
P
C4
P<
ORG
GRY
N
HAP
V3R
V1R
X106A X107A
F6U
K5R
BLU
Z3F
Z4F PS
RED
A1P
L1R
X2A
WHT
WHT
BLU
NB
NC
F4U
NA
E
Z8C
N=1
1N~50Hz
220-240V
Z
2
F
Z6C
RED
M1F M2F
WHT BLU
N=1
Z2C
M1C
N=6
Z3C
X25A
X81A
X5A
X37A
S1NPH
S1NPL
M
M
X17A
6
6
X18A
Y1E
Y3E
X21A
X22A
(NOTE 4)
X26A X27A X28A
Y2S
Y1S
Y3S
E1HC
N=1
K1R
K2R
K3R
K4R
Z4C
N=1
Z7C
N=1

Table of Contents

Related product manuals