EasyManua.ls Logo

Daikin ERRQ 016AAY1 - Switch Box Layout - Indoor Unit EKHBRD

Daikin ERRQ 016AAY1
262 pages
Print Icon
To Next Page IconTo Next Page
To Next Page IconTo Next Page
To Previous Page IconTo Previous Page
To Previous Page IconTo Previous Page
Loading...
Switch Box Layout - Indoor Unit EKHBRD ESIE09-08
28 Refrigerant Circuit
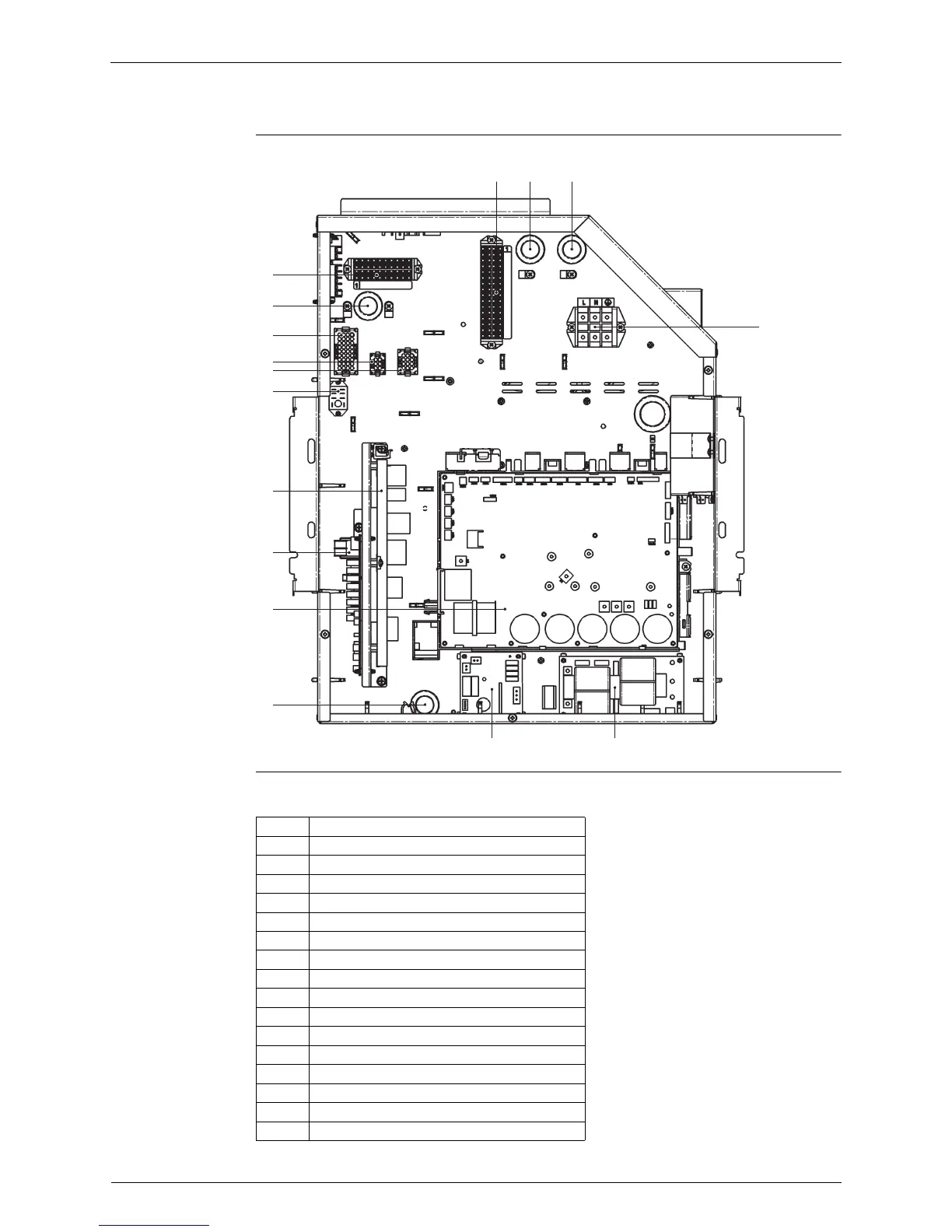
1. Switch Box Layout - Indoor Unit EKHBRD
EKHBRD 011/014/016 AAV1
Legend
8
6
7D C
1
2
3
B
A
9
11
12
10
45
No. Name
1 Main PCB (A1P)
2 Control PCB (A3P)
3 Inverter PCB (A4P)
4 QA PCB (A5P)
5 Filter PCB (A6P)
6 Terminal block X1M: Main power supply
7 Terminal block X2M: AC connections
8 Terminal block X3M: DC connections
9 DC connector X1Y
10 Pump connector X2Y
11 AC connector X3Y
12 Interface relay K1A
A DC field wiring entry
B Compressor cable entry
C Power wiring entry
D AC field wiring entry

Table of Contents

Related product manuals