EasyManua.ls Logo

Daikin ERRQ 016AAY1 - Outdoor Unit PC Board Layout

Daikin ERRQ 016AAY1
262 pages
Print Icon
To Next Page IconTo Next Page
To Next Page IconTo Next Page
To Previous Page IconTo Previous Page
To Previous Page IconTo Previous Page
Loading...
Outdoor Unit PC Board Layout ESIE09-08
80 Test Operation
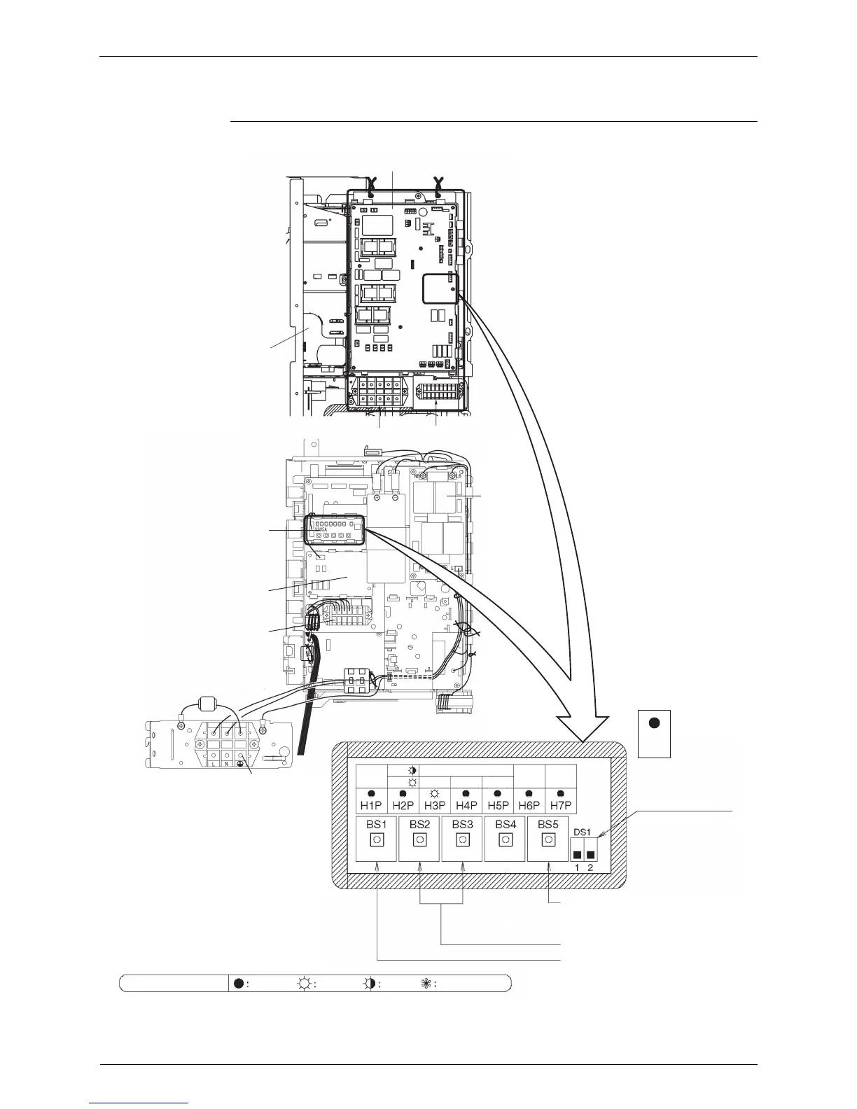
2. Outdoor Unit PC Board Layout
A3P
A2P
A4P
X2M
X1M
ER(S/R)Q (011/014/016) AAY1
ER(S/R)Q (011/014/016) AAV1
X2M
X1M
A2P
A1P
Page
MODE SET TEST RESET
ON
OFF
RETURN
Test
Error
Changeover between
cooling and heating
Individual
Batch
(master)
Batch
(slave)
Demand
Low
noise
DIP switches
(DS1-1 and DS1-2)
Sets the address again when the wiring
is changed or an indoor unit is added.
Used at field set.
Changes the set mode.
(The LED indicator status shown at left indicates the status at factory set.)
LED indicator status Turn off Turn on Flicker Turn on or off
H8P

Table of Contents

Related product manuals