EasyManua.ls Logo

Daikin ERRQ 016AAY1 - Field Wiring Connection Diagram

Daikin ERRQ 016AAY1
262 pages
Print Icon
To Next Page IconTo Next Page
To Next Page IconTo Next Page
To Previous Page IconTo Previous Page
To Previous Page IconTo Previous Page
Loading...
Wiring Diagrams ESIE09-08
220 Appendix
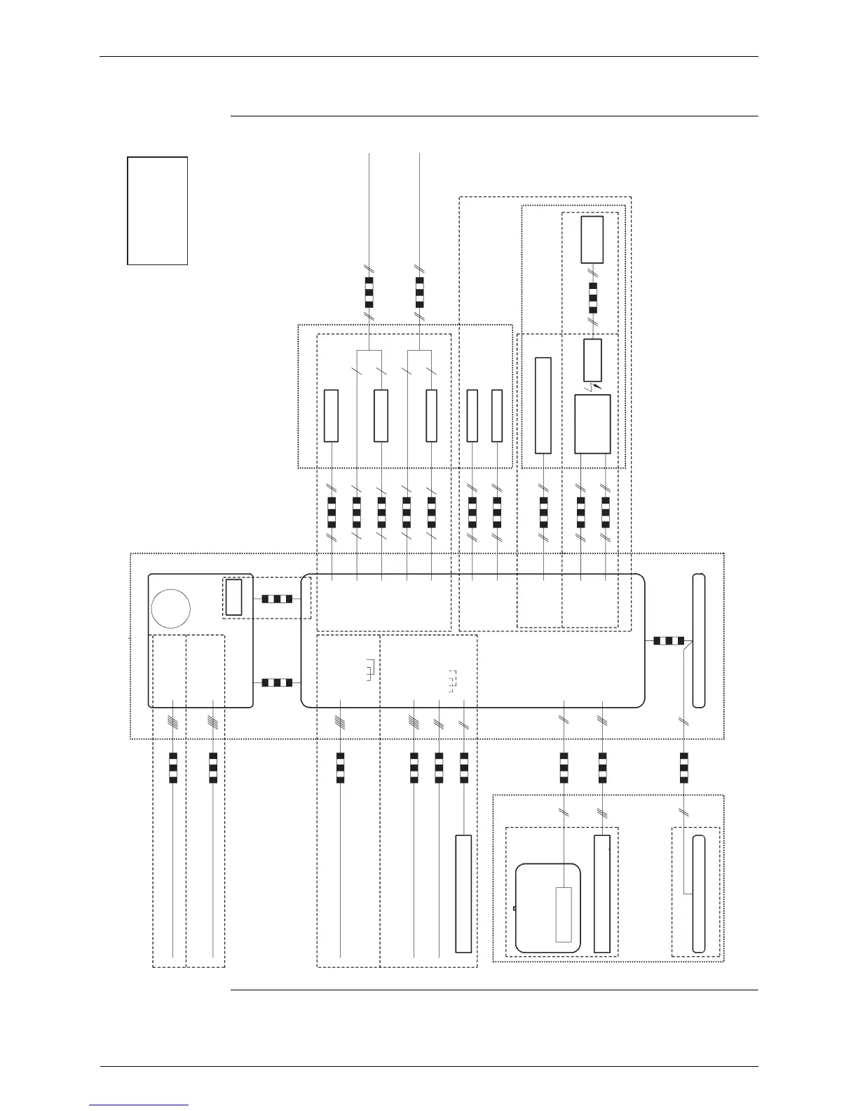
2.2 Field Wiring Connection Diagram
ERRQ + ERSQ 011/014/016 A(V1)/(Y1) in combination with EKHBRD*
Outdoor unit power supply
POSSIBILITY 1:
ONLY FOR NORMAL POWER SUPPLY INSTALLATION
POSSIBILITY 1:
ONLY FOR NORMAL POWER SUPPLY INSTALLATION
POSSIBILITY 2:
ONLY FOR BENEFIT kWh RATE POWER SUPPLY INSTALLATION
380V - 415V or 220V - 240V + earth
X1M: L1-L2-L3-N-
earth or L-N-earth
X1M: L1-L2-L3-N-
earth or L-N-earth
X2M: 8-9-10-11-1
X1M: L1-L2-L3-N-
earth or L-N-earth
X2M: 8-9-10-11-1
* Remove
wire bridges
bottom plate
heater option
X1M: L1-L2-L3-N-
earth or L-N-earth
X2M: F1-F2 X2M: BPH
A7P: Y1-YC
A10P: X1M: H-COM
A11P: X1M: H-COM
A10P: X1M: 1-3
A11P: X2M: L-N
A8P: X801M: 3-5
A8P: X801M: 4-5
POSSIBILITY 1
A8P: X801M: 1-5
POSSIBILITY 2
A8P: X801M: 1-5
A7P: X1
A7P: X2
A7P: X3
A7P: X4
X2M: 6-7
X3M: F1-F2
X3M: 7-8
X2M: 3-4-5
X3M: P1-P2
A3P: X11A
X2M: 12-13
Benefit kWh rate power supply:
380V - 415V or 220V - 240V + earth
5 or 3 core
380V - 415V or 220V - 240V + earth
5 or 3 core
5 or 3 core
POSSIBILITY 2:
ONLY FOR BENEFIT kWh RATE POWER SUPPLY INSTALLATION
Benefit kWh rate power supply:
380V - 415V or 220V - 240V + earth
Benefit kWh rate power supply contact
R2T - Thermistor
water temperature
P1-P2
K1S (when EKHTS* is installed)
selection domestic hot water - heating
Optional parts
Standard parts
3 way valve
DOMESTIC HOT
WATER TANK
OUTDOOR UNIT
INDOOR
UNIT
USER INTERFACE
P1-P2
USER INTERFACE
ONLY FOR EKHTS*
ROOM
THERMOSTAT
ONLY FOR ERRQ*,
EKBPHTH16A
ONLY FOR EKRUAHTA
5 or 3 core
Normal kWh rate power supply:
220V - 240V + earth
3 core
2 core
signal
2 core
signal
2 core
communication
2 core
communication
2 core
communication
2 core
220V - 240V
3 core
220V - 240V
Indoor unit power supply
2 core
Sanitary mode
Cooling/heating
on/off output
Alarm output
Mixing station 1
Optional power supply:
cooling/heating on/off output
Optional power supply:
alarm output
R2T
External sensor
(floor or ambient)
Mixing station 2
on/off output
220V - 240V
2 core (3m included)
signal
2 core
signal
2 core
signal
2 core
signal
2 core
signal
2 core
220V - 240V
2 core
220V - 240V
2 core
220V - 240V
1 core
220V - 240V
1 core
220V - 240V
1 core
220V - 240V
1 core
220V - 240V
Field supply
Optional parts
ONLY FOR EKRP1HBAA
ONLY FOR EKRP1AHTA
ONLY FOR EKRTETS
ONLY FOR EKRTW (wired room thermostat)
ONLY FOR EKRTR (wireless roomthermostat)
NOTE:
In case of signal cable or
communication cable,
keep minimum distance
to power cables > 5cm

Table of Contents

Related product manuals